Vuokrataan toimistotilat - Espoo
Lars Sonckin Kaari 10-16, Leppävaara, 02600 Espoo #10832889
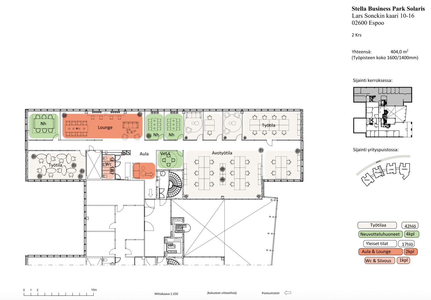
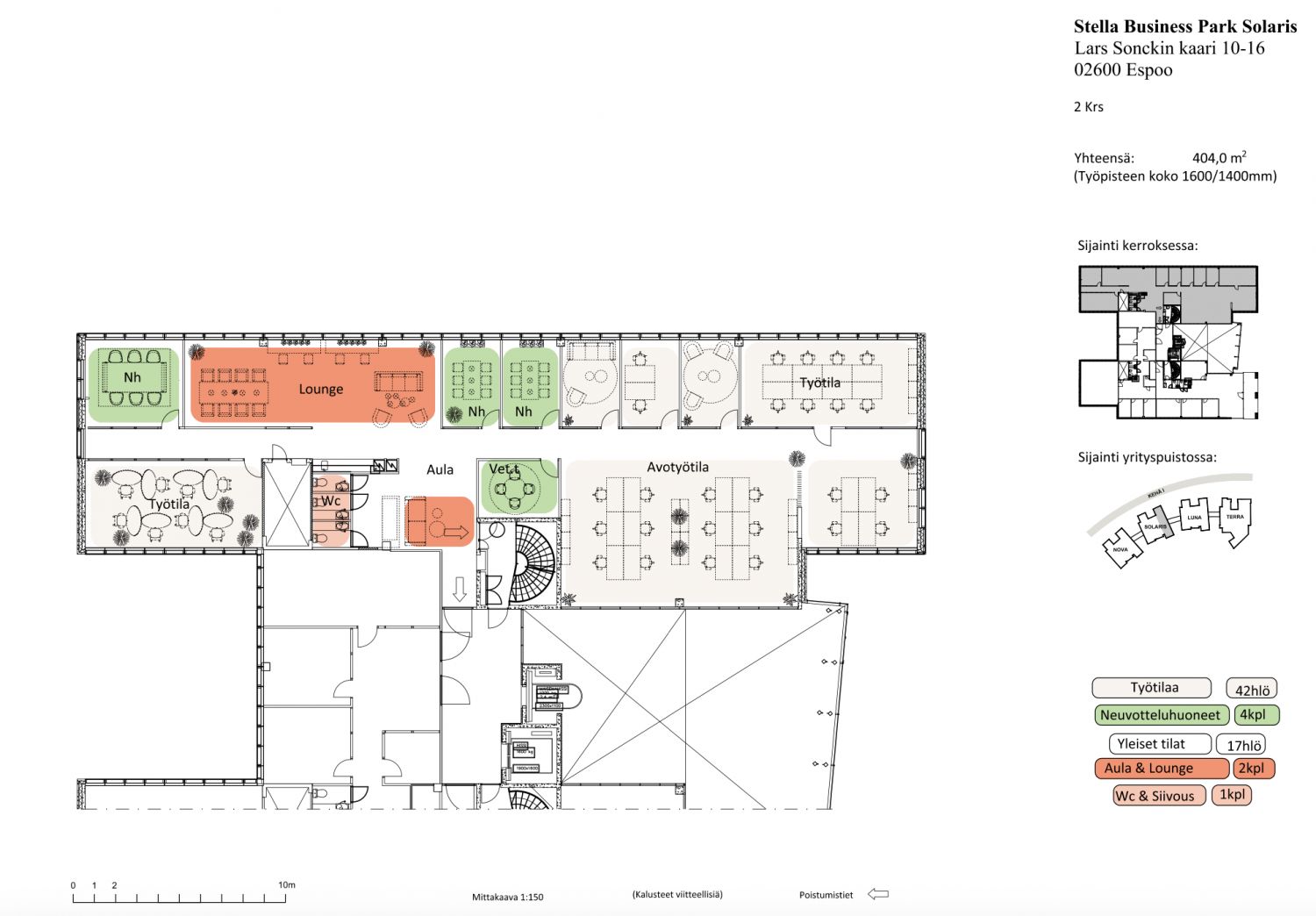
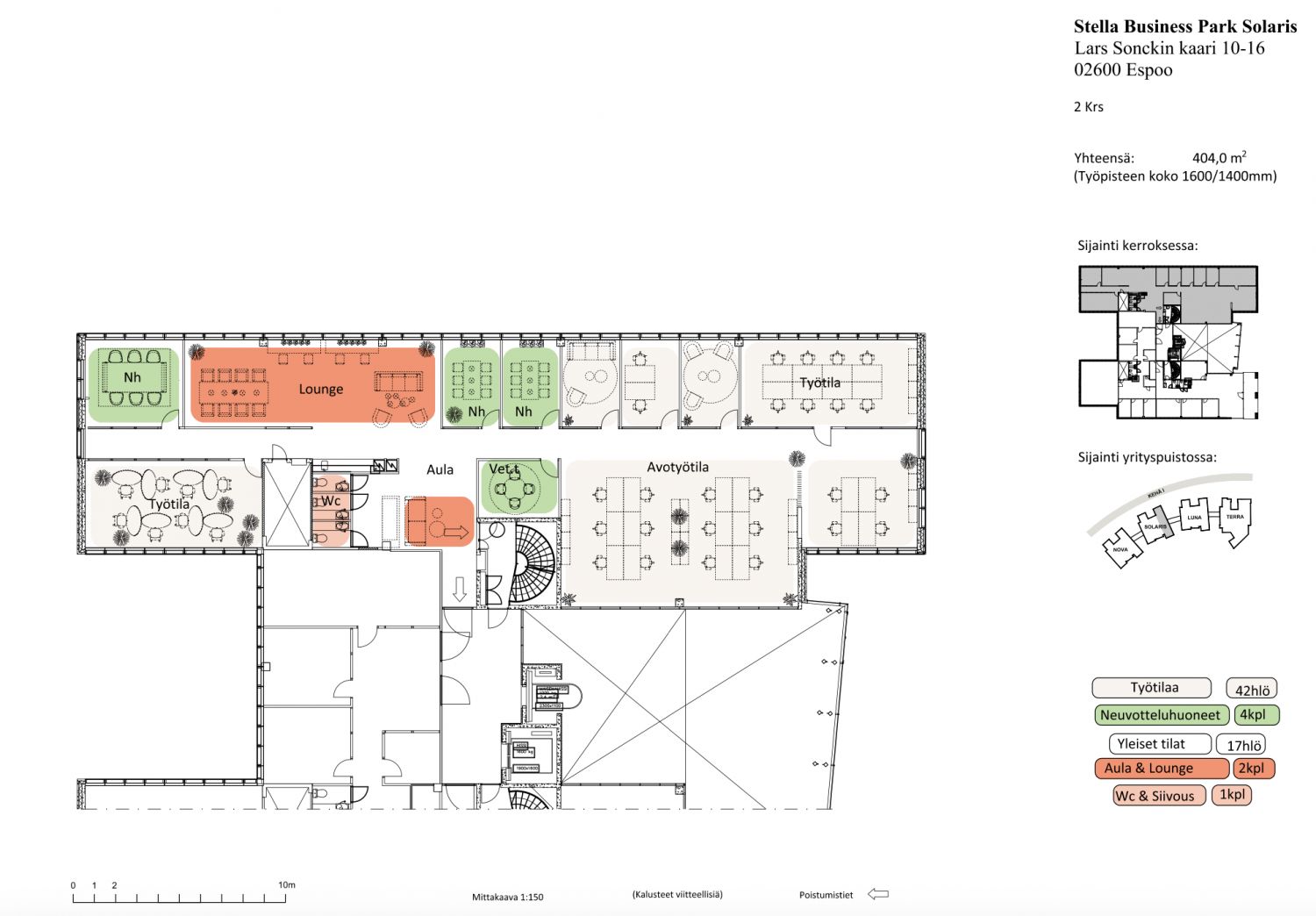
Vuokrattavana valoisa ja avara 3. kerroksen läpitalon toimisto.
Tähän tilaan on helppo ihastua, sillä neljään suuntaan avautuvat näkymät sekä vaaleiden pintojen ja lasiseinien tuoma avaruus lisäävät tilan tuntua ja viihtyvyyttä. Tilaan voi muuttaa joko sellaisenaan tai siitä voi räätälöidä yrityksellenne täydellisesti sopivan kokonaisuuden. Tästä tilasta saa näkyvyyden vehreiden näkymien lisäksi osittain myös yrityspuiston aulaan, joten myös vieraiden on helppo löytää perille.
Yrityspuiston monipuoliset palvelut varmistavat, että työpäivien lomassa nautit herkulliset lounaat, pesetät autosi ja huollat kehoasi kuntosalilla tai kiropraktikon käsittelyssä. Voit jopa istahtaa etäpalaverin ajaksi parturi-kampaamon hellään huomaan tai järjestää kattokerroksen saunatiloissa yrityksenne afterworkit.
Erinomaisella paikalla Leppävaarassa, Kehä I:n varrella sijaitsevasta Stellasta löytyvät mm. aulapalvelu, vuokrattavia neuvottelutiloja, auditorio, kaksi lounasravintolaa, kampaamo, kuntosali, saunaosasto, varatotilaa, autopesula sekä pihalla lastaustila.
Lisätiedot 020 7290 710 ja lisää kohteita premises.fi
Kohteella ei ole lain edellyttämää energiatodistusta tai energialuokka ei tiedossa.Kerros: 3
CRE PREMISES
Puh. Näytä puhelinnumero 020 7290 710
Vantaankoskentie 14
01670 VANTAA
