Vuokrataan toimistotilat - Jyväskylä
Itä-Päijänteentie 55, Seppälä, 40320 Jyväskylä #10832779
Siistiä ja korkeatasoista toimistotilaa hyvällä sijainnilla lähellä palveluita
Osoite
Itä-Päijänteentie 55, 40320 Jyväskylä
Tilatyyppi
Toimistotilaa
502 m2
Muuta
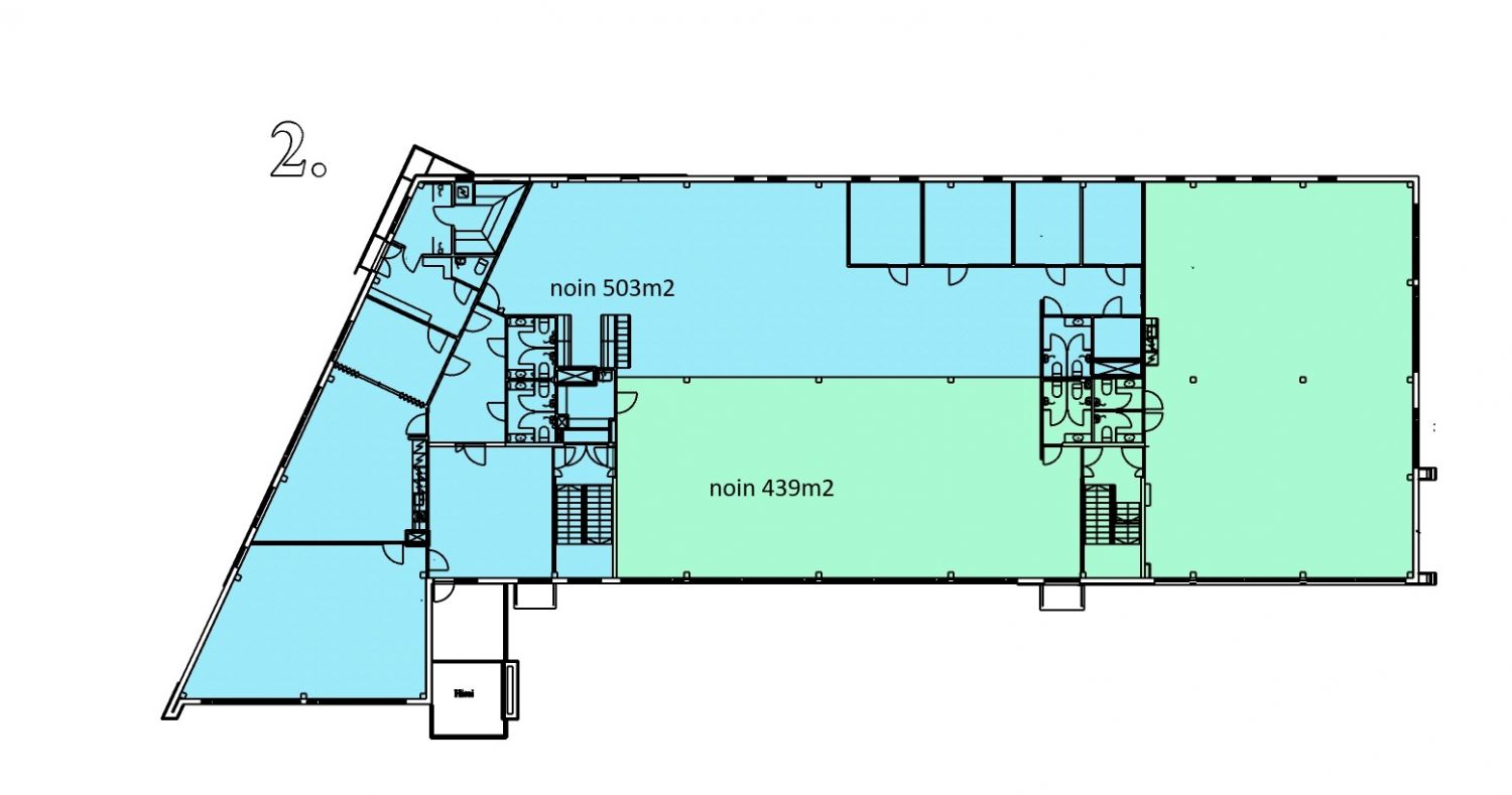
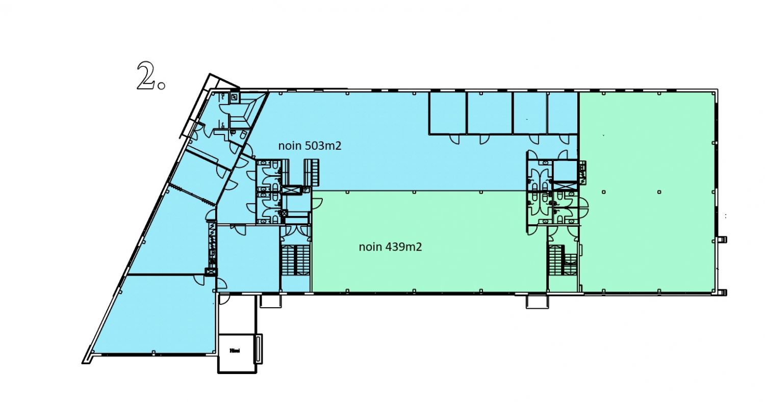
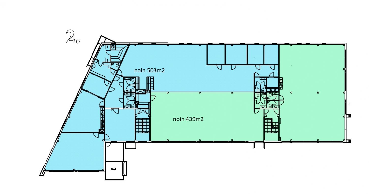
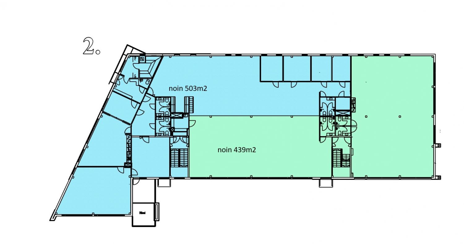
Toisen kerroksen toimistot vuokrattavana. Kerroksen pinta-ala noin 942m2 joka voidaan tarvittaessa jakaa monipuolisesti 2-4 toimijalle. Jaettuna neliöt vaihtelevat 290m2 - 651m2 välillä. Kiinteistön katutasossa toimii yksityinen lääkäriasema.
Avoimet toimistotilat on varustettu nykyaikaisella talotekniikalla ml. jäähdytys ja koneellinen ilmanvaihto sekä kuituyhteydet. Pääsisäänkäynnin yhteydessä sijaitsee iso taukotila, neuvottelu-/koulutustila sekä pukuhuone, suihkut ja oma saunatila. Aulan yhteydessä myös aurinkoisille päiville oma parveke.
Tila on heti vapaa ja sitä voidaan muokata yrityksesi tarpeiden mukaisesti, ota yhteyttä niin käydään katsomassa millainen ratkaisu palvelee teitä parhaiten!
Avoimet toimistotilat on varustettu nykyaikaisella talotekniikalla ml. jäähdytys ja koneellinen ilmanvaihto sekä kuituyhteydet. Pääsisäänkäynnin yhteydessä sijaitsee iso taukotila, neuvottelu-/koulutustila sekä pukuhuone, suihkut ja oma saunatila. Aulan yhteydessä myös aurinkoisille päiville oma parveke.
Tila on heti vapaa ja sitä voidaan muokata yrityksesi tarpeiden mukaisesti, ota yhteyttä niin käydään katsomassa millainen ratkaisu palvelee teitä parhaiten!
Vapautuu
01.07.2025
Rakennusvuosi
2013
Kerros
2
Ota yhteyttä
Infonia Oy
Kauppakatu 18 A, 40100 Jyväskylä
Näytä puhelinnumero
+358 407579731
Mikko Hirvi
Näytä puhelinnumero
+358 407579731
Pyydä lisätietoa
