Vuokrataan liiketilat - Pirkkala
Autokeskuksentie 12, Linnakallio, 33960 Pirkkala #10832754
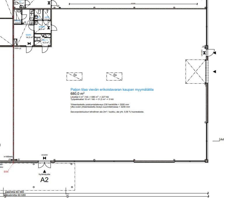
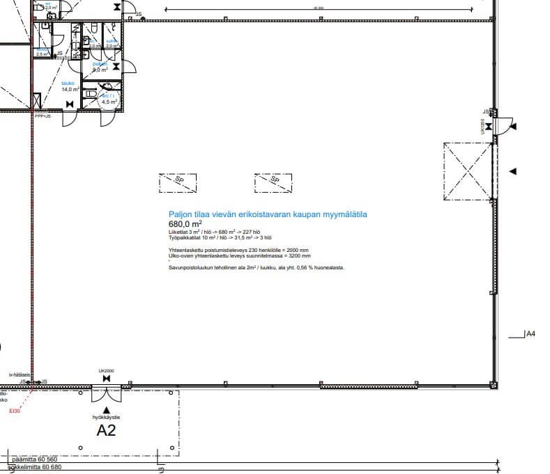
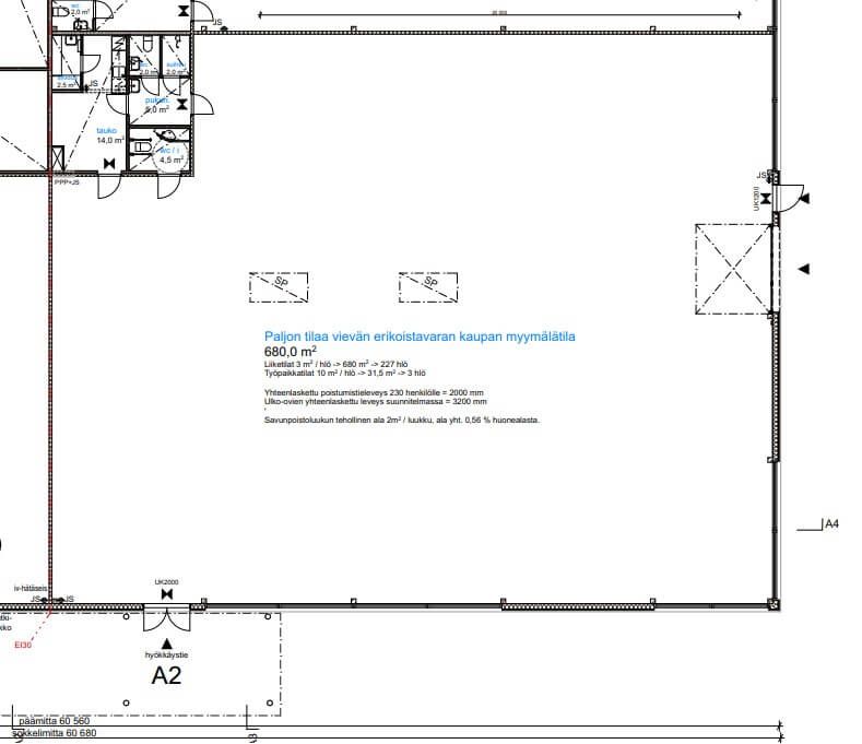
Vapautumassa vuokrattavaksi 1.5.2026 alkaen näyttävä liiketila. Toimitila on katutasossa ja se sisältää pienet sosiaalitilat. Tilassa on nosto-ovi sekä erillinen sisäänkäynti. Kohteella on pihatilaa runsaasti.
Osoite
Autokeskuksentie 12, 33960 Pirkkala
Tilatyyppi
Liiketilaa
735 m2
Kiinteistö
Toimitilat Pirkkala
vuokrataan liiketila 735 m²
Vapautumassa vuokrattavaksi 1.5.2026 alkaen näyttävä liiketila. Toimitila on katutasossa ja se sisältää pienet sosiaalitilat. Tilassa on nosto-ovi sekä erillinen sisäänkäynti. Kohteella on pihatilaa runsaasti. Toimitila soveltuu hyvin showroom/liiketilakäyttöön, varastoksi tai pientuotannon käyttöön.
vuokrataan liiketila 735 m²
Vapautumassa vuokrattavaksi 1.5.2026 alkaen näyttävä liiketila. Toimitila on katutasossa ja se sisältää pienet sosiaalitilat. Tilassa on nosto-ovi sekä erillinen sisäänkäynti. Kohteella on pihatilaa runsaasti. Toimitila soveltuu hyvin showroom/liiketilakäyttöön, varastoksi tai pientuotannon käyttöön.
Vapautuu
Kysy
Ota yhteyttä
Sagax Finland
Aleksanterinkatu
Näytä puhelinnumero
19 00100
HELSINKI
Näytä puhelinnumero
010 3200 320
Pyydä lisätietoa
