Vuokrataan/myydään tuotantotilat, varastotilat, työtilat, autotalli/-hallitilat - Mynämäki

Asentajantie 1 (336m²), Asentajantie 1, 23100 Mynämäki #10832741

Halli 336 m² Mynämäellä E8-tien varrella – jaettuna kahteen tilaan

Rauhallisella paikalla, E8-tien varressa sijaitseva halli (336 m²), joka on jaettu isompaan tilaan (248,5 m²) ja pienempään tilaan (87,5 m²).

Erinomainen mahdollisuus omaan käyttöön tai vuokrakäyttöön.

Iso sorapiha ja 3 900 m² tontti tarjoavat runsaasti tilaa pysäköintiin ja ulkovarastointiin.

Osoite
Asentajantie 1, 23100 Mynämäki
Tilatyyppi
Tuotantotilaa
336 m2
Varastotilaa
336 m2
Työtilaa
336 m2
Autotalli/-hallitilaa
336 m2
Yhteensä
336 m2
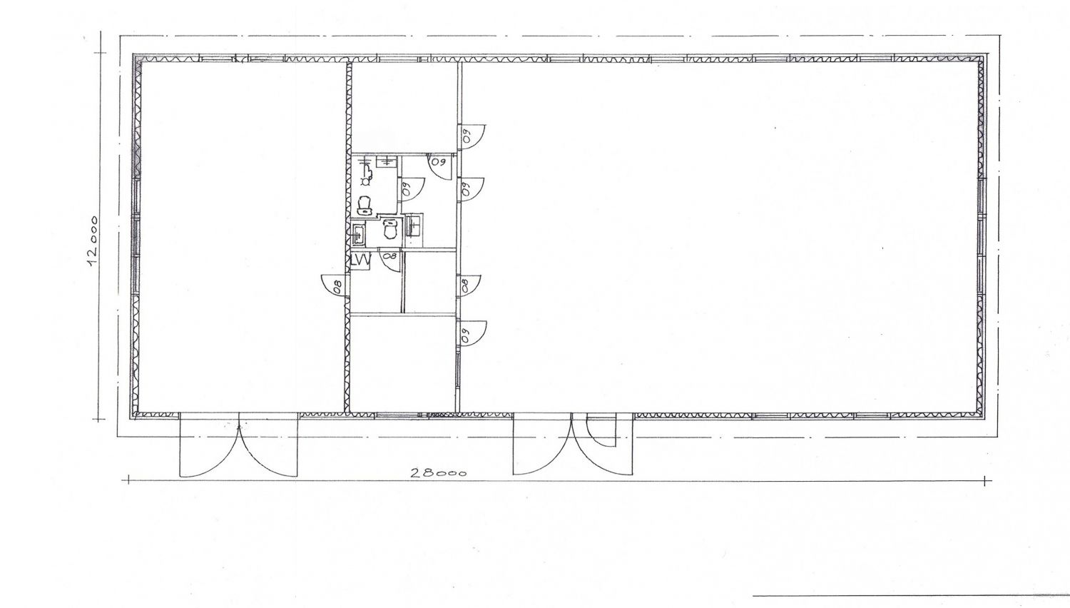
Tilajako
Halli (336 m²), joka on jaettu isompaan tilaan (248,5 m²) ja pienempään tilaan (87,5 m²).
Pohjapiirros
Tila soveltuu
Autokorjaamo, bändikämppä, tulityötila
Vuokra
tila 1A(87,5m²) 449€/kk - Tila 1B (248,5m²) 1190€/kk
Myyntihinta
Hinta: 219 000 € – myös vaihtomahdollisuus
Kiinteistö
Hinta: 219 000 € – myös vaihtomahdollisuus

Monikäyttöinen hallikiinteistö 336 m² – kahteen osaan jaettuna

Myydään hallikiinteistö pinta-alaltaan 336 m², joka on jaettu kahteen tilaan:

Suurempi tila 248,5 m²

Pienempi tila 87,5 m²

Tämä mahdollistaa joustavan käytön – voit hyödyntää toisen tiloista itse ja vuokrata toisen eteenpäin.
Vuokratuloilla voidaan helposti kattaa osa tai koko lainanhoitokuluista.
Sijainti
E8 tien varressa rauhallisella paikalla.

11,2 km Maskuun (8min)

3.4 km Mynämäen keskustaan (5min)

21.8 km Raisioon (15min)

28,8 km Turkuun (25min)
Ympäristö
Kiinteistö sijaitsee teollisuusalueella, jossa on runsaasti muita halleja ja yritystoimintaa ympärillä.
Erinomainen sijainti esimerkiksi varastointiin, korjaamotoimintaan, pienyritykselle tai sijoituskohteeksi.
Pysäköinti
Iso, tasainen sorapiha tarjoaa runsaasti tilaa pysäköintiin, peräkärryille, pakettiautoille tai ulkovarastointiin.
Palvelut
Kaupat mynämäen keskustassa 4 km (Tokmanni, K-Supermarket, S-market)

Rautakauppa 3 km
Kulkuyhteydet
Loistavat kulkuyhteydet autolla.
Vapautuu
Heti
Rakennusvuosi
1990
Kerros
1 / 1
Energiatehokkuusluokka
Ei lain edellyttämää energiatodistusta

Katutasossa

Ota yhteyttä

A-Välitys

Miro Kankaristo, Näytä puhelinnumero 0400 268 536
miro.kankaristo@gmail.com

A-välitys /Tero Kankaristo LKV
Kakolankatu 1, 20100 Turku

  http://www.a-valitys.fi
Pyydä lisätietoa

Kohteesta Asentajantie 1, Mynämäki

 

B2B palvelut

LASTAUSRATKAISUT

Mainos
Lastauksien ratkaisut tehokkaammin ja turvallisemmin

MARKKINOINTI

Tavoita oikea kohderyhmä!