Vuokrataan toimistotilat - Helsinki
Elimäenkatu 5, Vallila, 00510 Helsinki #10832693
Toimistotilaa Helsingin Vallilassa.
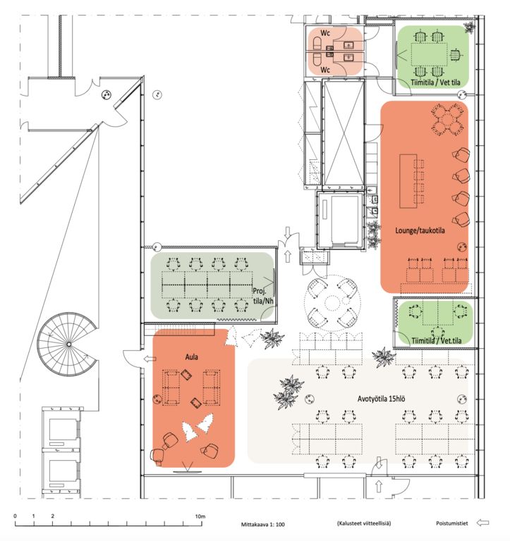
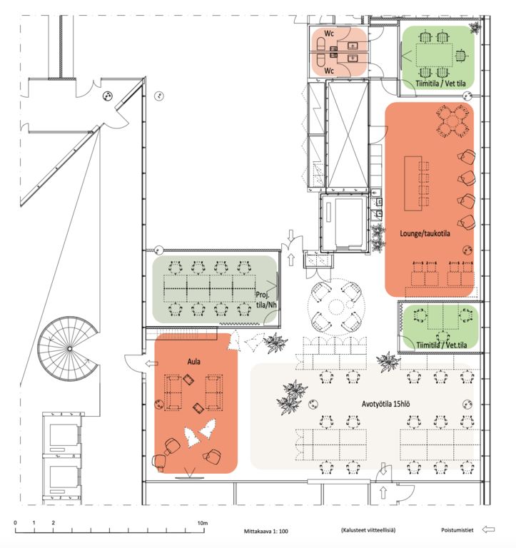
Tämä 291 m² tila sijaitsee kiinteistön 5. kerroksessa, ja se kuuluu Aina Valmis-konseptin tiloihin. Toimistossa on avotilaa, neuvotteluhuoneita, työhuone, lounge-/taukotila sekä omat wc-tilat. Tila on suunniteltu ja remontoitu valmiiksi laadukkaita ja kestäviä materiaaleja käyttäen. Avaimet saa käteen vaikka heti seuraavana päivänä. Aina Valmis-toimistotilojen hiilijalanjälki on tehty mahdollisimman pieneksi ja remontit on toteutettu vastuullisesti. Kuvat ovat havainne- ja yleiskuvia kiinteistön tiloista.
Elimäenkatu 5 on moderni, kuusikerroksinen, vuonna 2002 rakennettu toimistokiinteistö erinomaisella paikalla Helsingin Vallilassa. Sen tilat ovat avaria ja valoisia sen lasiseinien ansiosta. Nämä toimitilat ovat muokattavissa vuokralaisen tarpeiden mukaan. Kiinteistössä on monipuoliset Business Park-tason palvelut, joihin lukeutuvat mm. aulapalvelu, lounasravintola, neuvottelukeskus ja edustussaunat.
Elimäenkatu 5 sijaitsee Vallilassa, Pasilan ja Kalasataman välissä. Se on helposti saavutettavissa niin omalla autolla kuin julkisella liikenteellä. Kiinteistössä oma pysäköintihalli. Lisäksi työmatkapyöräiljöille on omat pukuhuone- ja suihkutilat.
Kysy lisää numerosta 044 723 4700 tai info@bref.fi. Palvelumme on tilanhakijoille ilmainen.
Hissi
Bureau Real Estate Finland Oy
Lars Sonckin kaari 16, 02600 Espoo
Näytä puhelinnumero
0447234700
Bureau Real Estate Finland Oy
https://www.bref.fi