Vuokrataan toimistotilat - Helsinki
Valimotie 21, Pitäjänmäki, 00380 Helsinki #10832691
Hyväkuntoista toimistotilaa Pitäjänmäellä, näkyvällä paikalla Vihdintien varrella.
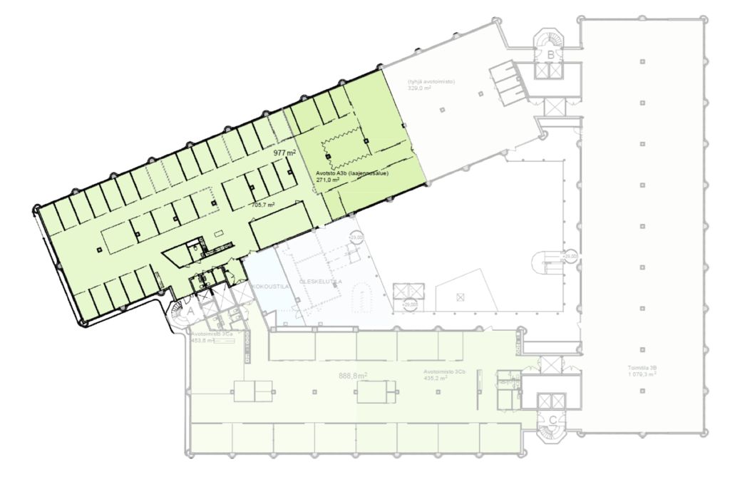
Tämä tehokas ja tilava 271 m² toimisto sijaitsee kiinteistön 3. kerroksessa, ja on osa 977m² tilakokonaisuutta.
Valimotie 21 on toimistokiinteistö Pitäjänmäellä, jonka tilat uusittu täysin ja ne valmistuivat loppuvuodesta 2018. Kohteessa on mm. kahvila- ja baristapalveluja sekä laadukasta lounasruokaa. Kiinteistössä on myös vuokrattavia neuvottelutiloja, aulapalvelu ja auditorio. Tämä kiinteistö on ehdottomasti yksi Pitäjänmäen alueen tyylikkäimmistä toimistokohteista.
Kiinteistön jokaisessa rappukäytävässä on tavarahissi, joten tavaran lastaus tiloihin on helppoa. Tiloja on mahdollista muunnella yrityksen tarpeiden mukaan. Parkkipaikkoja on sekä pihalla ja kellarissa.
Kysy lisää numerosta 044 723 4700 tai info@bref.fi. Palvelumme on tilanhakijoille ilmainen.
Hissi
Bureau Real Estate Finland Oy
Lars Sonckin kaari 16, 02600 Espoo
Näytä puhelinnumero
0447234700
Bureau Real Estate Finland Oy
https://www.bref.fi