Vuokrataan toimistotilat - Espoo
Metsänpojankuja 1, Pohjois-Tapiola, 02130 Espoo #10832630
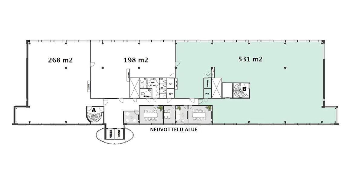
Vuokrattavana täysin uudistettu toimistotila.
-Lounasravintola
-Vuokrattavat neuvottelutilat
-Bussi
-Oma auto
Näkyvällä paikalla
Hissi
REALIUM OY LKV
Tammasaarenkatu 1, 00180 Helsinki
Vaihde:
Näytä puhelinnumero
+358 (0) 10 3263 466
Tuomo Mäkelä
tuomo.makela@realium.fi
p.
Näytä puhelinnumero
044 050 1158
Joel Keto
joel.keto@realium.fi
p.
Näytä puhelinnumero
045 317 0330
KAIKKI TILAVAIHTOEHDOT KERRALLA!
SOITA - MEILAA JA TILAA NÄYTTÖ!
Ilmainen palvelu tilanhakijoille.
Kartoitamme parhaat tilavaihtoehdot.
Kaikki kohteet eivät ole netissä.
Realium toimitilat on pääkaupunkiseudulla toimiva toimitilojen asiantuntijayritys. Tavoitteenamme on löytää yrityksellesi uudet toimitilat, jotka soveltuvat teidän tarpeisiin parhaiten ja tukevat liiketoimintanne menestymistä. Autamme yrityksiä löytämään parhaat toimisto-, liike-, tuotanto-, varasto- ja logistiikkatilat nopeasti, tehokkaasti ja helposti. Realium tuntee pääkaupunkiseudun vapaiden toimitilojen tarjonnan syvällisesti. Palvelumme ovat toimitilojen hakijoille ilmaisia.
http://www.realium.fi