Vuokrataan toimistotilat - Helsinki
Mikonkatu 7, Keskusta, 00100 Helsinki #10832588
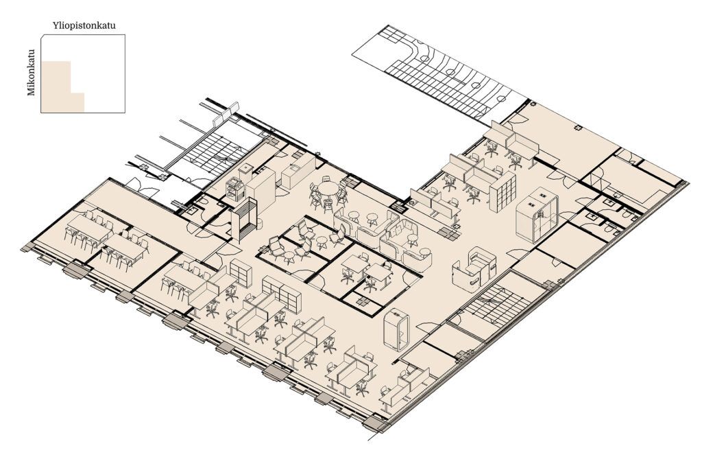
Vuokrattava toimistotila 358 m², näyttävässä ja täysin peruskorjatussa kiinteistössä loistosijainnilla ja kattavilla palveluilla. Mahdollista vuokrata myös viereinen tila samasta kerroksesta, jolloin toimistotilaa on yhteensä 885 m2.
Osoite
Mikonkatu 7, 00100 Helsinki
Tilatyyppi
Toimistotilaa
358 m2
Pohjapiirros
Vapautuu
Kysy
Rakennusvuosi
1910
Saneerausvuosi
2021
Kerros
3
Liitetiedostot
Ota yhteyttä
Ilmarinen
Ilmarinen, 00018 Ilmarinen
Näytä puhelinnumero
010 28 400
Pyydä lisätietoa
