Vuokrataan toimistotilat - Tampere
Finlaysoninkatu 5, 33210 Tampere #10832585
Valoisa 524 m² toimistotila Tammerkosken kupeessa
Osoite
Finlaysoninkatu 5, 33210 Tampere
Tilatyyppi
Toimistotilaa
524 m2
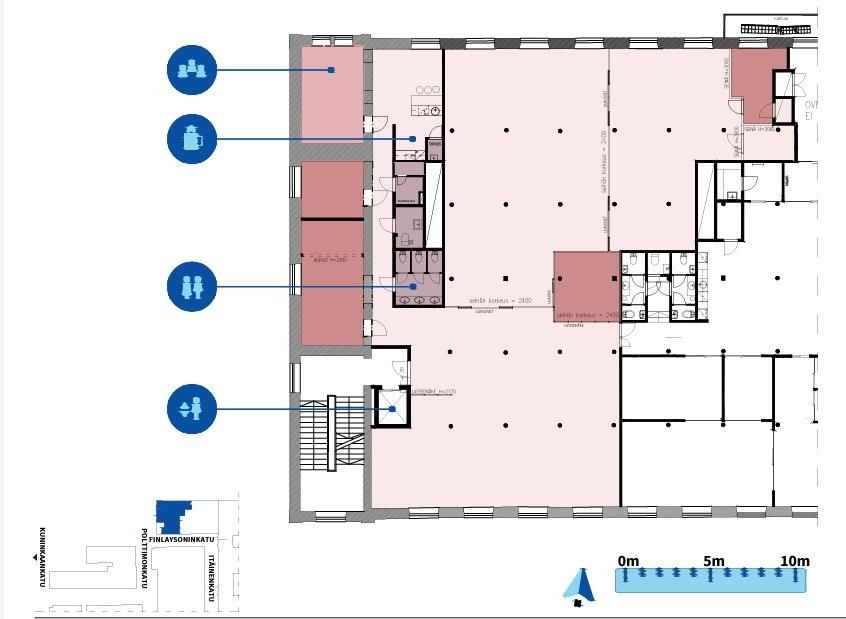
Pohjapiirros
Kiinteistö
Viihtyisä ja monipuolinen 524 m² toimistotila Finlaysonin arvostetulla alueella, aivan Tampereen keskustan tuntumassa. Kolmannen kerroksen tilasta avautuu näkymät kolmeen suuntaan, mikä tuo runsaasti luonnonvaloa ja avaruutta työskentelyyn.
Tila on tällä hetkellä jaettu kolmeen suurempaan toimistoalueeseen, joita täydentävät käytännölliset neuvotteluhuoneet, oma keittiö ja useampi WC. Tilaratkaisu suunnitellaan joustavasti uuden vuokralaisen tarpeiden mukaan, mikä mahdollistaa toimivan kokonaisuuden niin avotoimistoksi kuin huoneisiin jaetuksi tilaksi.
Finlaysonin perinteikäs alue on ainutlaatuinen yhdistelmä historiaa ja nykyaikaa. Se on vireä liike-elämän, vapaa-ajan ja kulttuuritapahtumien keskus, jossa toimii yli 100 yritystä ja jossa työskentelee ja asioi päivittäin tuhansia ihmisiä. Alueen viehättävät ravintolat ja kahvilat kutsuvat nauttimaan lounaasta tai kahvihetkestä inspiroivassa miljöössä. Vanhoista tehdasrakennuksista huokuu historiaa ja tunnelmaa, ja ne tarjoavat yrityksellesi uniikin toimintaympäristön Tammerkosken maisemissa. Kiinteistö on BREEAM In-Use -ympäristösertifioitu, mikä kertoo vastuullisuudesta ja kestävän kehityksen periaatteiden mukaisesta toiminnasta.
Finlaysonin alue on helposti saavutettavissa niin omalla autolla, julkisilla kulkuvälineillä kuin kevyen liikenteen väyliä pitkin. Keskustori ja rautatieasema ovat vain kävelymatkan päässä, mikä tekee liikkumisesta helppoa ja sujuvaa kaikille.
Tila on tällä hetkellä jaettu kolmeen suurempaan toimistoalueeseen, joita täydentävät käytännölliset neuvotteluhuoneet, oma keittiö ja useampi WC. Tilaratkaisu suunnitellaan joustavasti uuden vuokralaisen tarpeiden mukaan, mikä mahdollistaa toimivan kokonaisuuden niin avotoimistoksi kuin huoneisiin jaetuksi tilaksi.
Finlaysonin perinteikäs alue on ainutlaatuinen yhdistelmä historiaa ja nykyaikaa. Se on vireä liike-elämän, vapaa-ajan ja kulttuuritapahtumien keskus, jossa toimii yli 100 yritystä ja jossa työskentelee ja asioi päivittäin tuhansia ihmisiä. Alueen viehättävät ravintolat ja kahvilat kutsuvat nauttimaan lounaasta tai kahvihetkestä inspiroivassa miljöössä. Vanhoista tehdasrakennuksista huokuu historiaa ja tunnelmaa, ja ne tarjoavat yrityksellesi uniikin toimintaympäristön Tammerkosken maisemissa. Kiinteistö on BREEAM In-Use -ympäristösertifioitu, mikä kertoo vastuullisuudesta ja kestävän kehityksen periaatteiden mukaisesta toiminnasta.
Finlaysonin alue on helposti saavutettavissa niin omalla autolla, julkisilla kulkuvälineillä kuin kevyen liikenteen väyliä pitkin. Keskustori ja rautatieasema ovat vain kävelymatkan päässä, mikä tekee liikkumisesta helppoa ja sujuvaa kaikille.
Vapautuu
Heti
Rakennusvuosi
1891
Kerros
3
Energiatehokkuusluokka
Ei lain edellyttämää energiatodistusta
Näkyvällä paikalla
Ota yhteyttä
ScanReal Oy LKV
Opus Business Park
Hitsaajankatu 24
00810 Helsinki
info@scanreal.fi
Puh:
Näytä puhelinnumero
020 730 8830
Sopivat toimitilat yhdellä otolla!
Kartoitamme toimitilatarpeesi ja etsimme yrityksellesi parhaiten sopivat vapaat toimitilat. Koska vuokranantajat maksavat palvelumme, on tämä yrityksellesi veloituksetonta.
Palvelumme on tilanhakijalle ilmainen
Pyydä lisätietoa
