Vuokrataan - Helsinki
Tammasaarenkatu 1, Ruoholahti, 00180 Helsinki #10832464
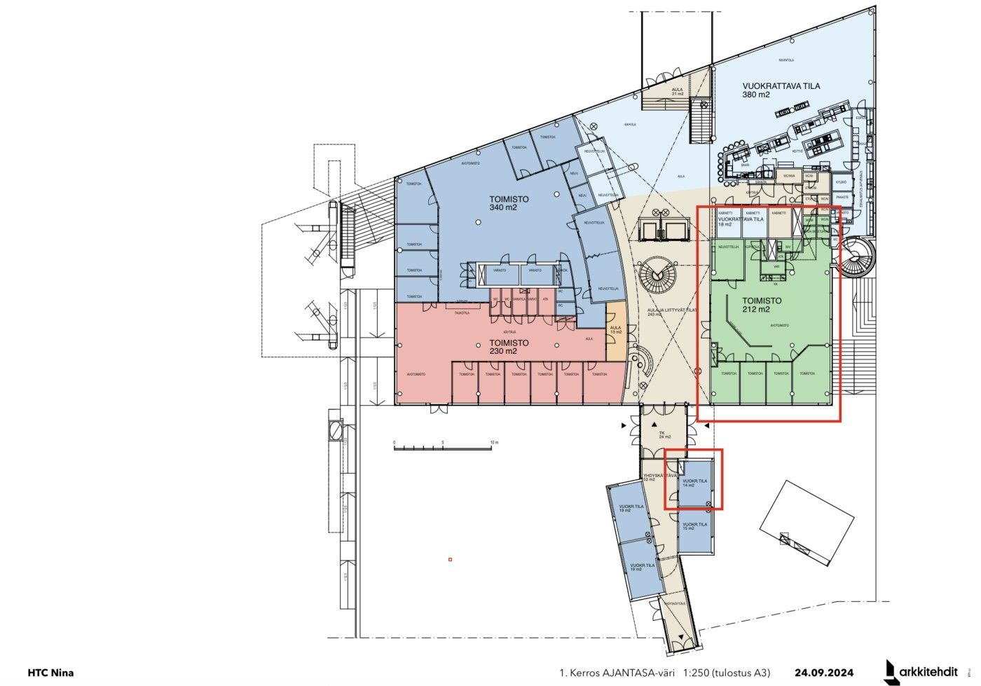
Vuokrattavana katutason 212m2 toimisto-/liiketila Ruoholahdessa, meren äärellä!
Tarjolla monipuolinen ja toimiva katutason 212m2 liiketila arvostetulla sijainnilla Ruoholahdessa, aivan meren läheisyydessä. Tilassa on neljä erillistä huonetta, neuvotteluhuone, avotoimistoaluetta, minikeittiö sekä kaksi wc:tä. Sisäänkäynti tilaan tapahtuu kiinteistön sisäkäytävältä.
Tila soveltuu erinomaisesti esimerkiksi asiantuntijaorganisaation toimitilaksi tai liiketilaksi, jossa tarvitaan sekä vastaanotto- että työskentelyalueita. Kiinteistö sijaitsee hyvien liikenneyhteyksien ja palveluiden äärellä, merellisessä ja arvostetussa ympäristössä.
Kysy lisää: jouko.raitanen@rhg.fi/0504695444
RHG Real Estate
Hämeenkatu 2 B20, 20500 Turku
Näytä puhelinnumero
020 734 4020
Jouko Raitanen
Näytä puhelinnumero
050 469 5444
