Vuokrataan - Helsinki
Tammasaarenkatu 1, Ruoholahti, 00180 Helsinki #10832463
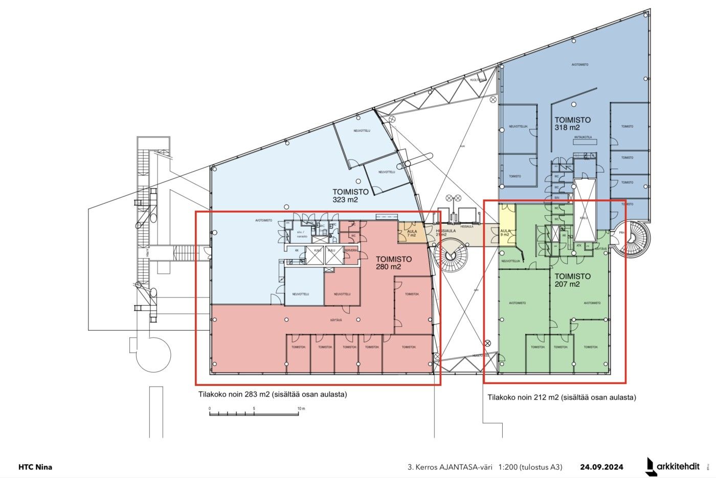
Vuokrattavana 212m2 toimistotila merellisessä Ruoholahdessa!
Tarjolla 3. kerroksen viihtyisä ja toimiva 212m2 toimistotila, joka koostuu avotoimistosta, minikeittiöstä sekä kahdesta WC:stä. Tilassa on runsaasti luonnonvaloa, ja ikkunoista avautuvat näkymät pääosin Kaapelitehtaan suuntaan.
Kiinteistö sijaitsee erinomaisella paikalla Ruoholahdessa, aivan meren äärellä, hyvien liikenneyhteyksien ja palveluiden välittömässä läheisyydessä.
Kysy lisää: jouko.raitanen@rhg.fi/0504695444
RHG Real Estate
Hämeenkatu 2 B20, 20500 Turku
Näytä puhelinnumero
020 734 4020
Jouko Raitanen
Näytä puhelinnumero
050 469 5444
