Lataa liitetiedosto [PDF]
Liitetiedosto
Lataa liitetiedosto [PDF]
Liitetiedosto
Lataa liitetiedosto [PDF]
Liitetiedosto
Vuokrataan toimistotilat - Iisalmi
Paloisvirran Sonaatti, Luuniemenkatu 3, 74100 Iisalmi #10832436
Toimistotilaa huonekohtaisella jäähdytyksellä entisessä Virastotalossa Iisalmen keskustassa virran rannalla. Useita erikokoisia tiloja alk n.100m2.
Osoite
Luuniemenkatu 3, 74100 Iisalmi
Tilatyyppi
Toimistotilaa
1700 - 3377 m2
Tilajako
Jaettavissa
Kiinteistö
Entinen virastotalo, jossa toiminut ajan saatossa useita eri alojen toimijoita.
Sijainti
Iisalmen keskustassa Torin läheisyydessä.
Ympäristö
Puistomainen ympäristö Paloisvirran rannalla. Pohjoispuolella Kauppakeskus Torikulma, Puuilo ja tori. Eteläpuolella Luuniemen ulkoilualue.
Pysäköinti
Runsaasti lämpötolpallisia parkkiruutuja työntekijöille ja paikoitustilaa asiakkaille.
Palvelut
Iisalmen keskustassa.
Vuokralaisia
Mehiläinen
Suomen Terveystalo
Asianajotoimisto Jari Kääriäinen Oy
Päiväkoti Pikkukenguru Oy
Leipomo Keisarin Korvapuusti
Sol Siivouspalvelut
Iisalmen Kaupunki
Suomen Terveystalo
Asianajotoimisto Jari Kääriäinen Oy
Päiväkoti Pikkukenguru Oy
Leipomo Keisarin Korvapuusti
Sol Siivouspalvelut
Iisalmen Kaupunki
Muuta
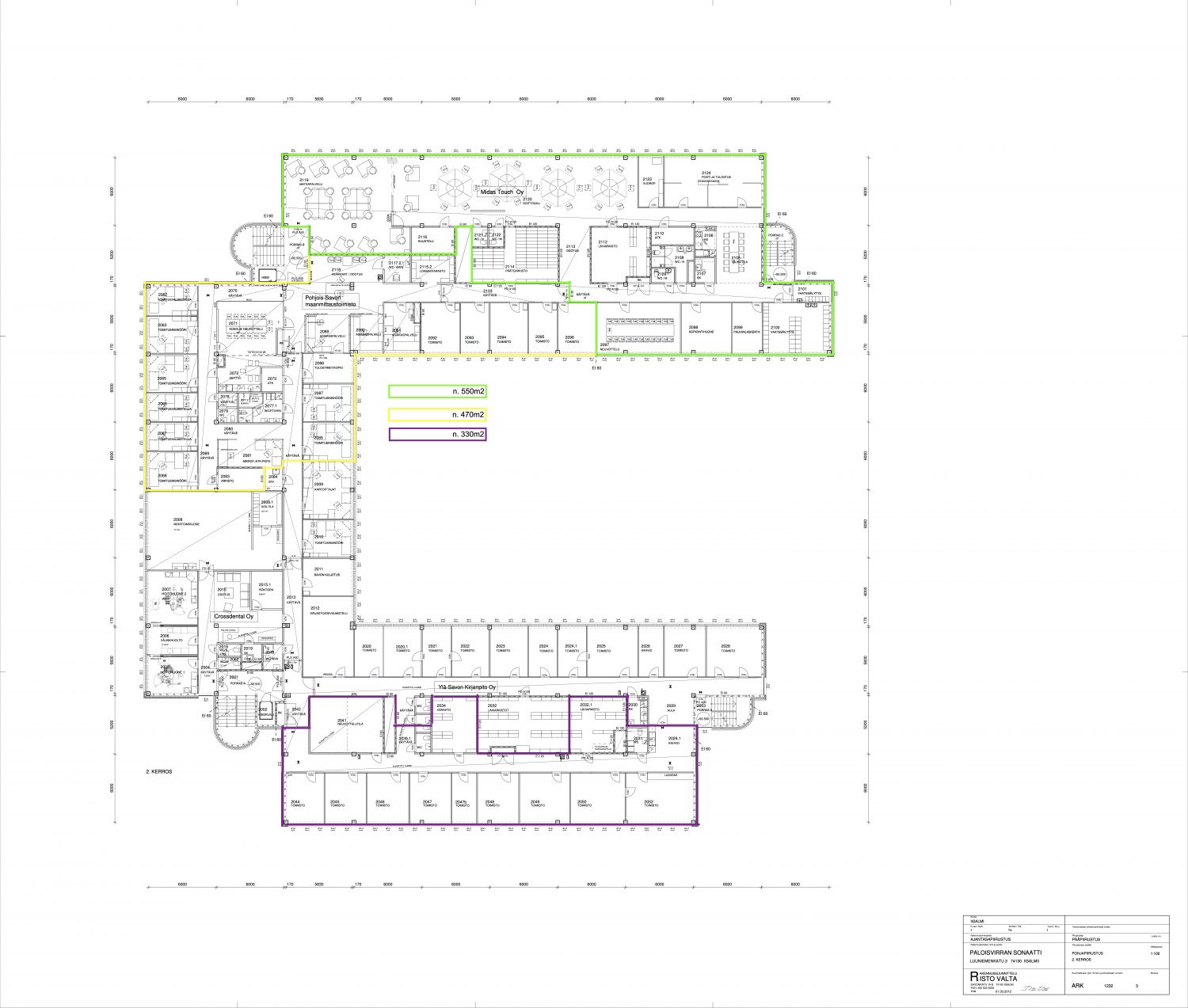
Nykyiset tilat jaettuna noin:
120m2 3krs vapautuu 12/25
140m2 1krs vapautuu 9/25
330m2 2krs vapautuu 12/25
410m2 1krs vapaa
470m2 2krs vapaa
550m2 2krs vapaa
640m2 3krs vapautuu 12/25
720m2 3krs vapaa
120m2 3krs vapautuu 12/25
140m2 1krs vapautuu 9/25
330m2 2krs vapautuu 12/25
410m2 1krs vapaa
470m2 2krs vapaa
550m2 2krs vapaa
640m2 3krs vapautuu 12/25
720m2 3krs vapaa
Vapautuu
Kysy
Kerros
1-3 / 3
Jaettavissa
Liitetiedostot
Ota yhteyttä
Joona Kuosmanen /
Näytä puhelinnumero
+358 44 355 56 50
Jouko Kuosmanen /
Näytä puhelinnumero
+358 44 586 00 49
Katso kaikki kohteemme
https://iisalmi.toimitilapalvelut.fi/fi/toimitilat/?organisaatiot=5
Pyydä lisätietoa