Vuokrataan toimistotilat - Helsinki
Fredrikinkatu 34, Keskusta, 00100 Helsinki #10832393
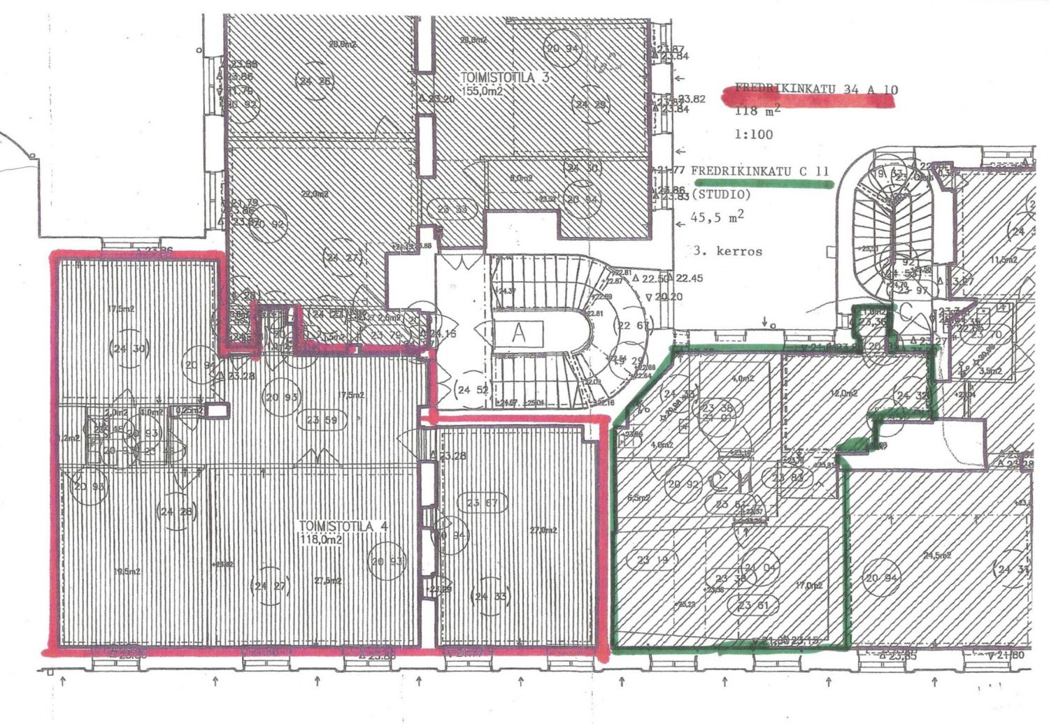
Vuokrattavana 3. kerroksen hyvätasoista, asiallista ja siistiä toimistotilaa erinomaisella sijainnilla.
Osoite
Fredrikinkatu 34, 00100 Helsinki
Tilatyyppi
Toimistotilaa
118 m2
Kiinteistö
Vuokrattavana 3. kerroksen hyvätasoista, asiallista ja siistiä toimistotilaa erinomaisella sijainnilla. Toimistossa on 5 työhuoneetta, oma keittiö ja sosiaalitilat.
Sijainti
Helsingin keskusta.
Pysäköinti
Alueen pysäköintilaitokset ja yrityspysäköintitunnus.
Palvelut
Kaikki palvelut lähialueella.
Kulkuyhteydet
-Bussi
-Raitiovaunu
-Metro
-Oma auto
-Raitiovaunu
-Metro
-Oma auto
Vapautuu
Heti
Kerros
3
Energiatehokkuusluokka
Ei lain edellyttämää energiatodistusta
Näkyvällä paikalla
Hissi
Ota yhteyttä
REALIUM OY LKV
Tammasaarenkatu 1, 00180 Helsinki
Vaihde:
Näytä puhelinnumero
010 326 346
Tuomo Mäkelä
tuomo.makela@realium.fi
p.
Näytä puhelinnumero
044 050 1158
Joel Keto
joel.keto@realium.fi
p.
Näytä puhelinnumero
045 317 0330
KAIKKI TILAVAIHTOEHDOT KERRALLA!
SOITA - MEILAA JA TILAA NÄYTTÖ!
Ilmainen palvelu tilanhakijoille.
Kartoitamme parhaat tilavaihtoehdot.
Kaikki kohteet eivät ole netissä.
Pyydä lisätietoa
