Vuokrataan toimistotilat - Tampere
Peltokatu 26, Keskusta, 33100 Tampere #10832368
Modernia toimistotilaa Tampereelta
Osoite
Peltokatu 26, 33100 Tampere
Tilatyyppi
Toimistotilaa
419 m2
Pysäköinti
Kyllä
Muuta
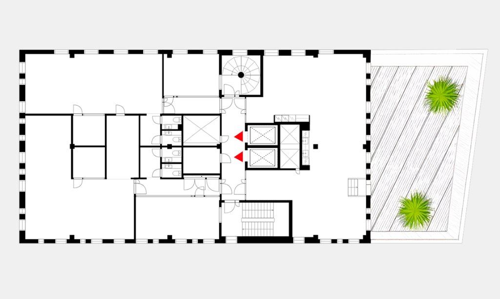
Vuokrattavana korkeatasoinen 419 m² toimistotila Tampereen keskustassa, Technopolis Asemakeskuksen 8. kerroksessa osoitteessa Peltokatu 26. Tila tarjoaa upeat näkymät yli kaupungin kattojen ja sisältää oman suuren terassin, joka soveltuu erinomaisesti esimerkiksi asiakastilaisuuksiin tai henkilöstön virkistykseen.
Toimisto jakautuu julkiseen ja yksityiseen puoleen. Julkisella puolella on avara lounge-tila sekä useita neuvotteluhuoneita. Yksityisellä puolella on tilat 20â30 työpisteelle, mikä mahdollistaa tehokkaan ja viihtyisän työskentely-ympäristön.
Technopolis Asemakeskus tarjoaa vuokralaisilleen monipuoliset palvelut, kuten aulapalvelun, modernit kokoustilat, ravintolan, VIP- ja saunatilat sekä kuntosalin. Kampuksella on myös pysäköintimahdollisuus sekä sähköautojen latauspisteitä. Sijainti on erinomainen, vain noin 10 minuutin kävelymatkan päässä Tampereen rautatieasemalta.
Tervetuloa tutustumaan, varaathan välittäjältä oman esittelyaikasi. Voit kysyä meiltä myös muita sopivia vaihtoehtoja, kauttamme löydät juuri Teidän tarpeisiinne sopivat tilat. Palvelumme on tilanhakijalle veloitukseton!
Toimisto jakautuu julkiseen ja yksityiseen puoleen. Julkisella puolella on avara lounge-tila sekä useita neuvotteluhuoneita. Yksityisellä puolella on tilat 20â30 työpisteelle, mikä mahdollistaa tehokkaan ja viihtyisän työskentely-ympäristön.
Technopolis Asemakeskus tarjoaa vuokralaisilleen monipuoliset palvelut, kuten aulapalvelun, modernit kokoustilat, ravintolan, VIP- ja saunatilat sekä kuntosalin. Kampuksella on myös pysäköintimahdollisuus sekä sähköautojen latauspisteitä. Sijainti on erinomainen, vain noin 10 minuutin kävelymatkan päässä Tampereen rautatieasemalta.
Tervetuloa tutustumaan, varaathan välittäjältä oman esittelyaikasi. Voit kysyä meiltä myös muita sopivia vaihtoehtoja, kauttamme löydät juuri Teidän tarpeisiinne sopivat tilat. Palvelumme on tilanhakijalle veloitukseton!
Vapautuu
Kysy
Kerros
8
Ota yhteyttä
Tuloskiinteistöt Oy
Finlaysoninkatu 4, 33210 Tampere
Näytä puhelinnumero
050 502 4639
Sanna Eerilä-Vänni
Director, Partner
Näytä puhelinnumero
+358 50 5024639
Pyydä lisätietoa
