Vuokrataan tuotantotilat, varastotilat, autotalli/-hallitilat - Tampere
Rasulankatu 9, Vehmainen, 33730 Tampere #10832365
Monikäyttöinen tila varastointiin tai pientuotantoon
Osoite
Rasulankatu 9, 33730 Tampere
Tilatyyppi
Tuotantotilaa
269 m2
Varastotilaa
269 m2
Autotalli/-hallitilaa
269 m2
Yhteensä
269 m2
Muuta
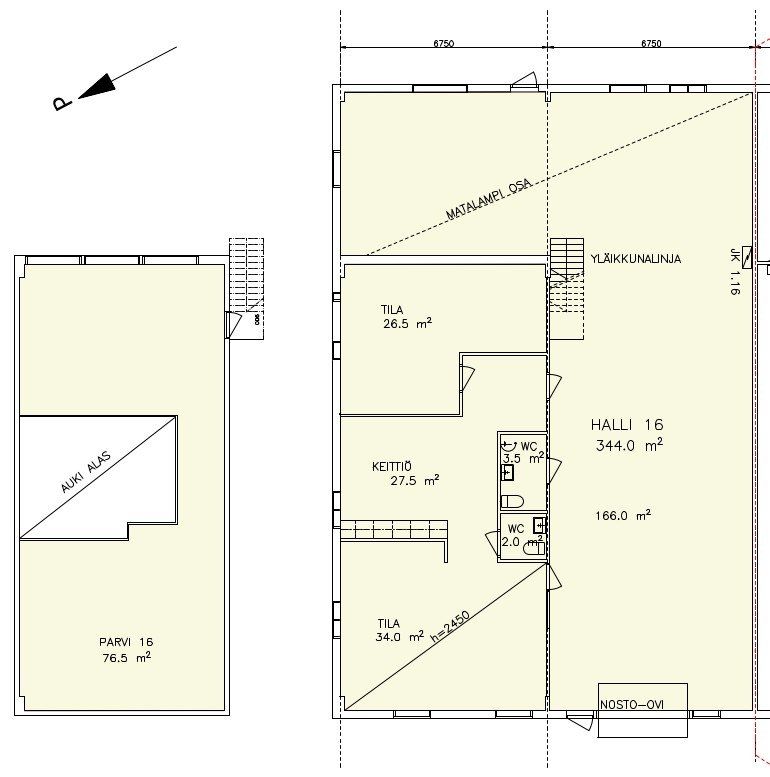
Vuokrattavana Tampereen Vehmaisissa sijaitseva 344 m² kokoinen varasto- ja tuotantotila.
Sijainti on logistisesti keskeinen â nopeat yhteydet kehätielle ja keskustaan. Tila on heti vapaa ja sopii monenlaiseen yritystoimintaan. Hallissa on nosto-ovi ja tilan korkeus on noin 4 metriä, mikä mahdollistaa myös suuremman kaluston tai materiaalien käsittelyn.
Tilassa on keittiö- ja toimistotilaa sekä kaksi wc:tä. Tila soveltuu hyvin yhdistettyyn tuotanto- ja toimistokäyttöön. Tilassa ei ole lattiakaivoa.
Tervetuloa tutustumaan, varaathan välittäjältä oman esittelyaikasi. Voit kysyä meiltä myös muita sopivia vaihtoehtoja, kauttamme löydät juuri Teidän tarpeisiinne sopivat tilat. Palvelumme on tilanhakijalle veloitukseton!
Sijainti on logistisesti keskeinen â nopeat yhteydet kehätielle ja keskustaan. Tila on heti vapaa ja sopii monenlaiseen yritystoimintaan. Hallissa on nosto-ovi ja tilan korkeus on noin 4 metriä, mikä mahdollistaa myös suuremman kaluston tai materiaalien käsittelyn.
Tilassa on keittiö- ja toimistotilaa sekä kaksi wc:tä. Tila soveltuu hyvin yhdistettyyn tuotanto- ja toimistokäyttöön. Tilassa ei ole lattiakaivoa.
Tervetuloa tutustumaan, varaathan välittäjältä oman esittelyaikasi. Voit kysyä meiltä myös muita sopivia vaihtoehtoja, kauttamme löydät juuri Teidän tarpeisiinne sopivat tilat. Palvelumme on tilanhakijalle veloitukseton!
Vapautuu
Kysy
Kerros
1
Ota yhteyttä
Tuloskiinteistöt Oy
Finlaysoninkatu 4, 33210 Tampere
Näytä puhelinnumero
050 502 4639
Sanna Eerilä-Vänni
Director, Partner
Näytä puhelinnumero
+358 50 5024639
Pyydä lisätietoa
