Vuokrataan liiketilat - Helsinki
Katajanokan Laituri, Katajanokanlaituri 4, Katajanokka, 00160 Helsinki #10832317
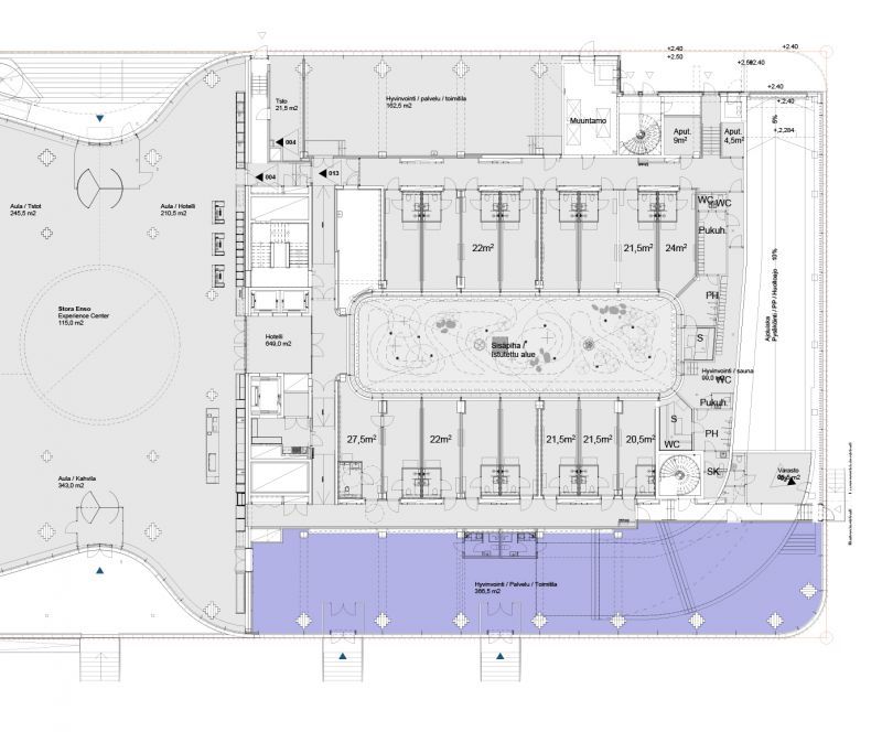
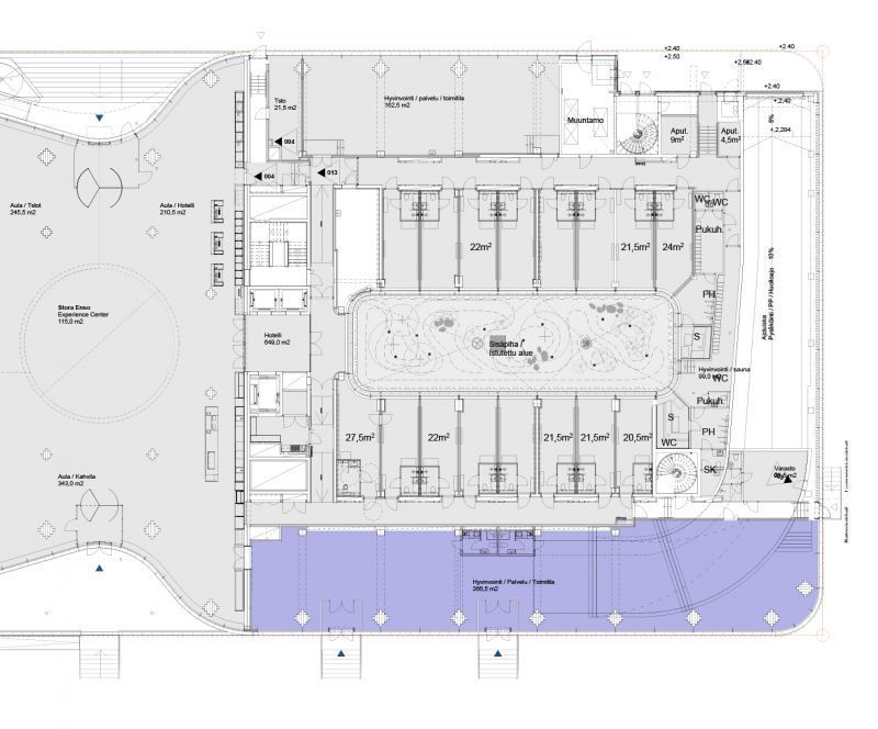
Uniikista, aivan Katajanokan merenrannalta sijaitsevasta uudiskohteesta upea katutason 367 m² liiketila.
Katajanokan Laituri on kesällä 2024 valmistunut puurakenteinen toimitalo, joka sijaitsee keskeisellä paikalla Helsingin Katajanokalla meren rannalla. Merkittävään kulttuuriympäristöön sijoittuvaan kiinteistöön tuli myös julkisia tiloja, jolloin se palvelee myös merellisestä sijainnista nauttivia kaupunkilaisia ja matkailijoita. Puurakenne sekä rakennuksen persoonallinen muotoilu toimivat vahvoina erottautumistekijöinä alueen muista kiinteistöistä. Kiinteistölle tullaan hakemaan LEED Platinum -ympäristösertifikaattia.
Katajanokan Laiturista valmistui kaupunkikuvallisesti ympäristöönsä sulautuva toimitila, joka on ympäristöarvoiltaan ja ilmastotavoitteiltaan edistyksellinen.
Uudiskohde
Katutasossa
Näkyvällä paikalla
ScanReal Oy LKV
Opus Business Park
Hitsaajankatu 24
00810 Helsinki
info@scanreal.fi
Puh:
Näytä puhelinnumero
020 730 8830
Sopivat toimitilat yhdellä otolla!
Kartoitamme toimitilatarpeesi ja etsimme yrityksellesi parhaiten sopivat vapaat toimitilat. Koska vuokranantajat maksavat palvelumme, on tämä yrityksellesi veloituksetonta.
OTA YHTEYTTÄ - SOVI NÄYTTÖ!
Kaikki kohteemme eivät ole netissä, kerro tilatarpeesi niin kartoitamme vaihtoehdot.
Palvelumme on tilanhakijalle ilmainen
