Vuokrataan liiketilat - Oulu
Hallituskatu 36 Teletalo, Keskusta, 90100 Oulu #10832314
Osoite
Hallituskatu 36 Teletalo, 90100 Oulu
Tilatyyppi
Liiketilaa
799 m2
Muuta
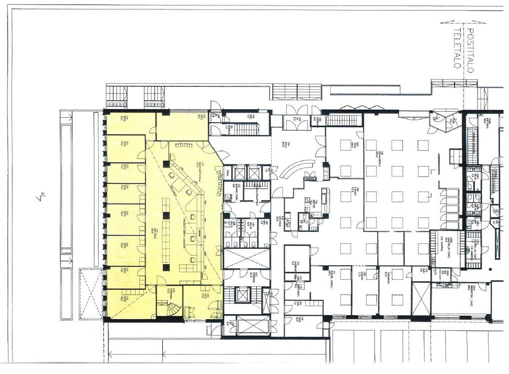
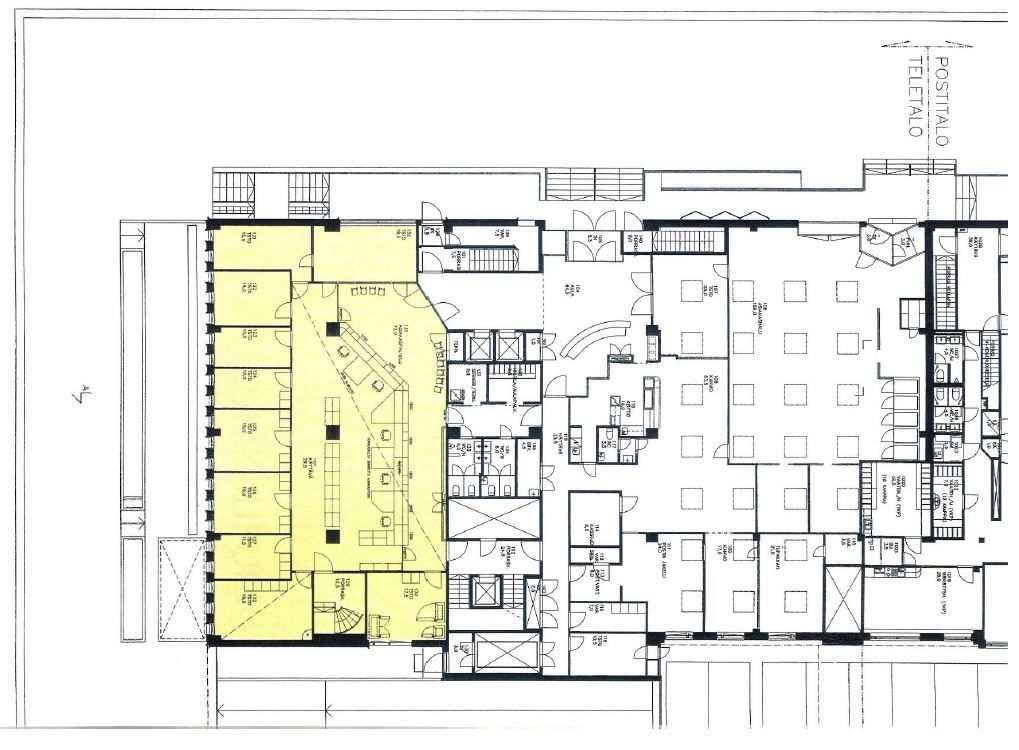
Vuokrattavana Oulun Teletalosta,
Hallituskatu 36, 90100 Oulu, toimistotilaa.
Teletalon 1. krs. yht. n. 799 m2, joka on jaettavissa 254/456 m2.
Vapaana myös 2. kerroksen tilan pinta-ala on n. 1372 m2
Teletalon 3. - 6. krs ovat vuokrattu.
Vuokra: 18e/m2 nykykunnossa.
Tilat voidaan remontoidaan yhteistyössä vuokralaisen kanssa, jolloin lopullinen vuokrataso määräytyy tehtyjen muutostöiden, vuokrattavan pinta-alan ja sopimuspituuden mukaan.
Vuokrauksesta laaditaan erillinen tarjous vuokrauskohtaisesti.
Teletalossa on julkisivusaneeraus menossa, ikkunaremontti tehty ja ilmanvaihto peruskorjataan.
Pyydä lisätiedot ja katselmus kohteeseen!
Hallituskatu 36, 90100 Oulu, toimistotilaa.
Teletalon 1. krs. yht. n. 799 m2, joka on jaettavissa 254/456 m2.
Vapaana myös 2. kerroksen tilan pinta-ala on n. 1372 m2
Teletalon 3. - 6. krs ovat vuokrattu.
Vuokra: 18e/m2 nykykunnossa.
Tilat voidaan remontoidaan yhteistyössä vuokralaisen kanssa, jolloin lopullinen vuokrataso määräytyy tehtyjen muutostöiden, vuokrattavan pinta-alan ja sopimuspituuden mukaan.
Vuokrauksesta laaditaan erillinen tarjous vuokrauskohtaisesti.
Teletalossa on julkisivusaneeraus menossa, ikkunaremontti tehty ja ilmanvaihto peruskorjataan.
Pyydä lisätiedot ja katselmus kohteeseen!
Vapautuu
Kysy
Kerros
1
Ota yhteyttä
Catella Property Oy
Kirkkokatu 6, 5. krs, 90100 OULU
Näytä puhelinnumero
010 5220 100
Pekka Laurila-Harju
Näytä puhelinnumero
010 5220 603
Pyydä lisätietoa
