Vuokrataan toimistotilat, näyttelytilat, varastotilat - Helsinki
Holkkitie 6, Roihupelto, 00880 Helsinki #10832303
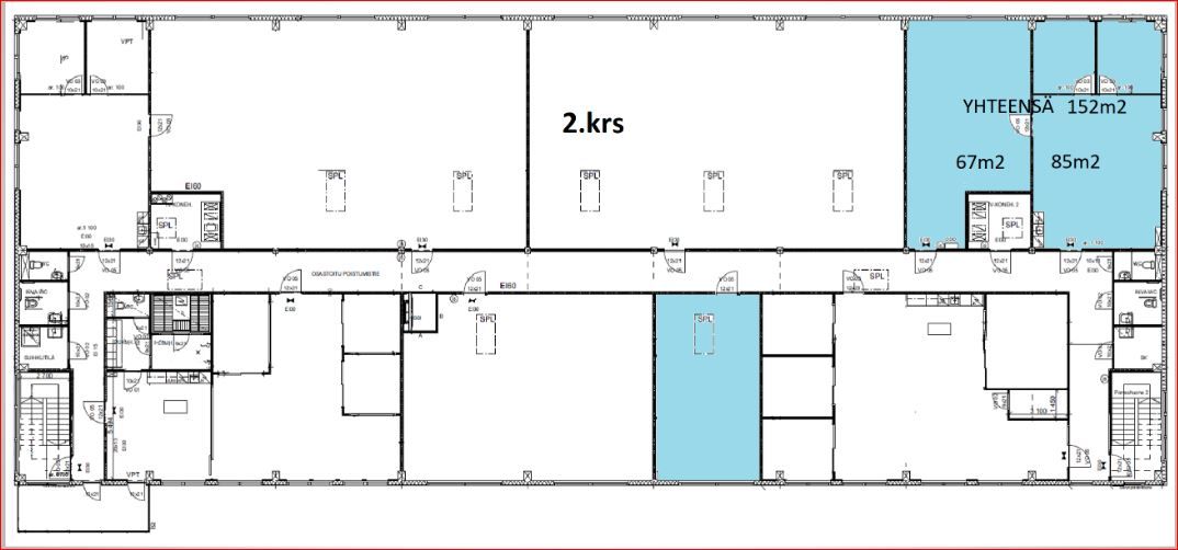
Modernia uutta toimivaa varasto-ja toimistotila Roihupellossa 662m2 + 152m2 ja avotila 70m2
Pihatason korkea varasto yht. 662m2 ja 2 krs toimisto 152m2 ja avotila 70m2. Varastoon 4 kpl nosto-ovea ja pihataso. Toimistossa tyylikästä avotilaa ja huoneita, tehokas pohjaratkaisu. Avotila on 70m2 moneen käyttöön.
Osoite: Holkkitie 6, 00880 Helsinki. Teollisuus- ja varastokiinteistö on valmistunut 2020. Kiinteistössä on 2 kerrosta, hissi, maalämpö, kameravalvonta, aidattu asfaltoitut piha, sähkötoimisella portti. Sijaitsee Roihupellon teollisuusalueella. Itäkeskus 2 km, Siilitien metroasema 1,6km. Tontin vieressä raidejokeripysäkki.
Vapaat tilata:
1. Krs 662 m2 nosto-ovet varasto- / tuotantotila. Koostuu 4 kpl n. 170m2 tilasta.
2. kerroksessa kaksi eri tilakokonaisuutta.
2.Krs 152 m2 kulmahuoneellinen toimistotila jossa erillinen tila väliovella toimisto tai varastokäyttöön.
2. Krs 70 m2 avointa korkeaa tilaa.
Vuokrataso on edullinen.
Kysy lisätietoja kohteesta:
Juselius Harry KTM, LKV, Kjs
0400 208 419
harry.juselius@toimitilapalvelu.fi
Kaartinen Pentti Ekonomi
050 337 8148
pentti.kaartinen@toimitilapalvelu.fi
Aarno Toffer Merkonomi
044 978 1393
aarno.toffer@toimitilapalvelu.fi
www.toimitilapalvelu.fi
Katutasossa
Hissi
Toimitilapalvelu FNTC LKV
Käenkuja 8 A 45, 00500 Helsinki
Tehokasta toimitilavälitystä pääkaupunkiseudulla hyviä ja kohtuuhintaisia toimitilavuokrakohteita.
http://www.toimitilapalvelu.fi