Vuokrataan varastotilat - Lieto
Vakiotie 5, Avanti, 21420 Lieto #10832273
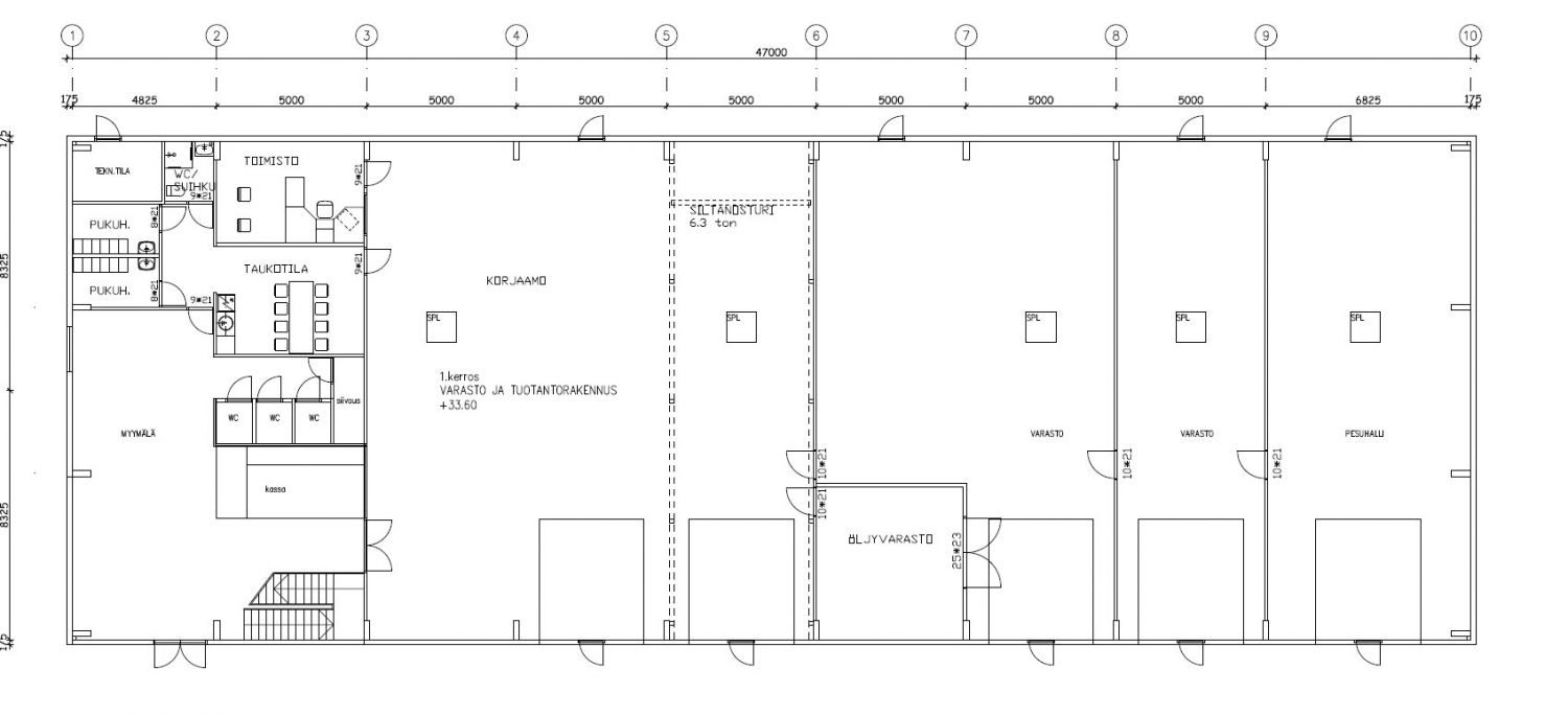
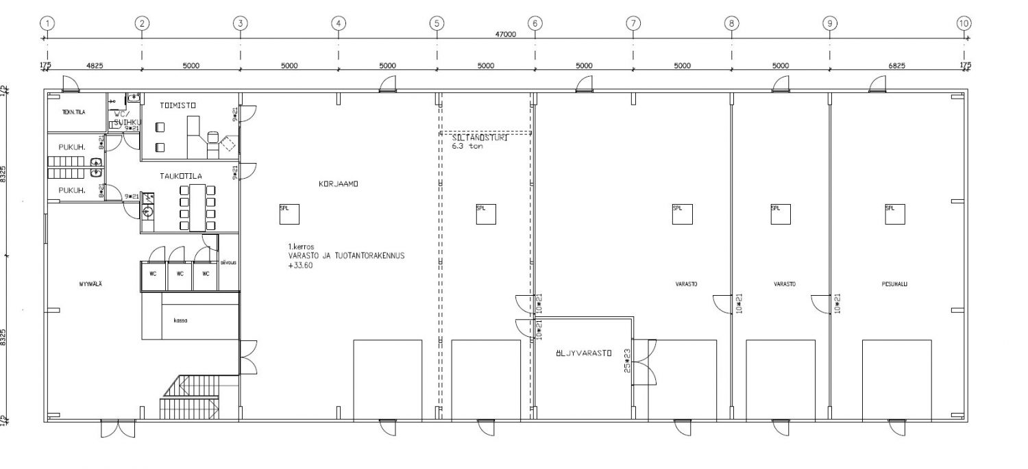
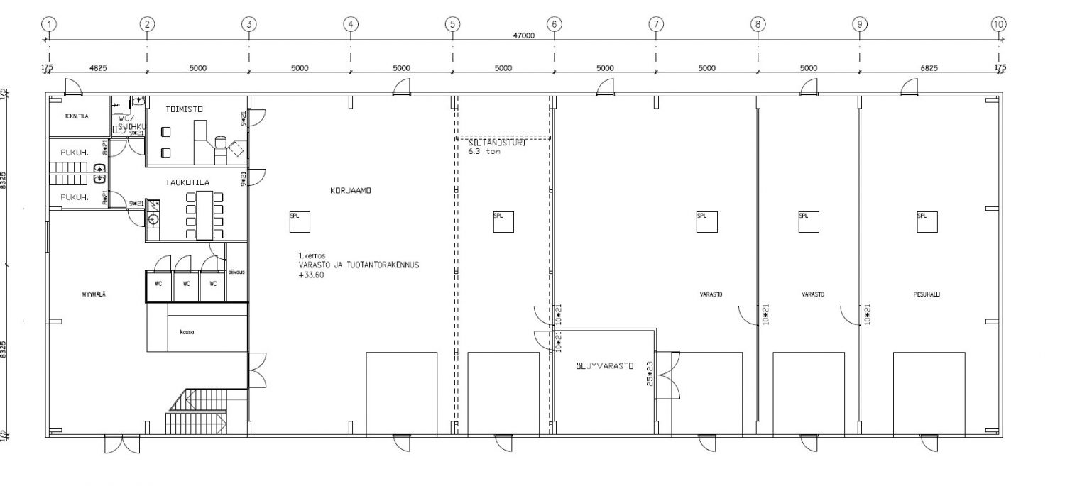
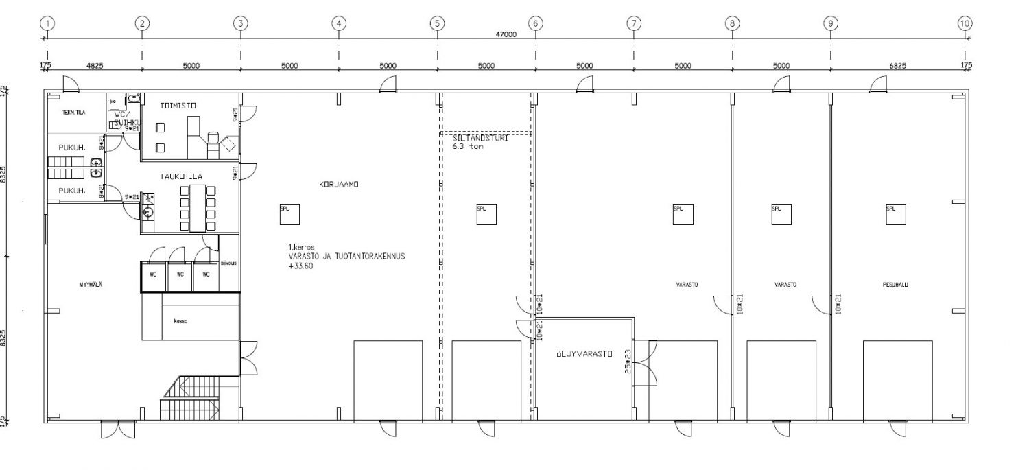
Vuokrataan upealta ja näkyvältä paikalta Liedon Avantista n. 600m2 uudiskohde, joka mahdollistaa varasto, tuotanto, huolto ja myymälätilan käyttötarkoituksen.
Voit valita hallin kahdesta osasta, missä toisessa selkeää myymälä ja toimistotilaa varastoineen tai vaihtoehtoisesti varasto ja tuotantotilaa hallin toisella puolella.
Kohde tarjoaa kaiken mitä liiketoimintasi toimitiloilta tarvitsee. Loistava näkyvyys Turun Kehätien vieressä ja hyvät liikenne yhteydet täyttää kaupallisesti edellytykset onnistumiselle.
Kohde itsessään on varusteltu hyvin mm. suurilla nosto-ovilla, toimisto ja sosiaalitiloilla, öljynerotuskaivoilla ja nykyaikaisella valaistuksella. Tilan vapaa korkeus n. 6,5m ja suuret nosto-ovet mahdollistavat suuremmallakin kalustolla sisäänajon. Kohde on myös mahdollista räätälöidä omiin tarpeisiin ja ilmoituksen pohjakuva ja pinta-ala onkin suuntaa-antava. Mahdollisuus vuokrata koko rakennus tai pienempi osa. Kohteen on määrä valmistua 2026 aikana.
Vuokraan lisätään alv + kulut
Tiesitkö, että tilan hakijalle palvelumme on maksuton?
Ota yhteyttä ja kysy lisää!
www.blanctoimitilat.fi
Harri Laisto, Toimitila-asiantuntija, Yrittäjä, LKV, Kaupanvahvistaja
+358 40 536 5590
harri.laisto@blanckiinteisto.com

Blanc Toimitilat
Harri Laisto
Toimitila-asiantuntija, CEO, Kaupanvahvistaja, LKV
Näytä puhelinnumero
+358405365590