Vuokrataan toimistotilat - Lahti
Askonkatu 9, Askonalue, 15100 Lahti #10832224
Toimistotilaa Askotalossa Lahdessa.
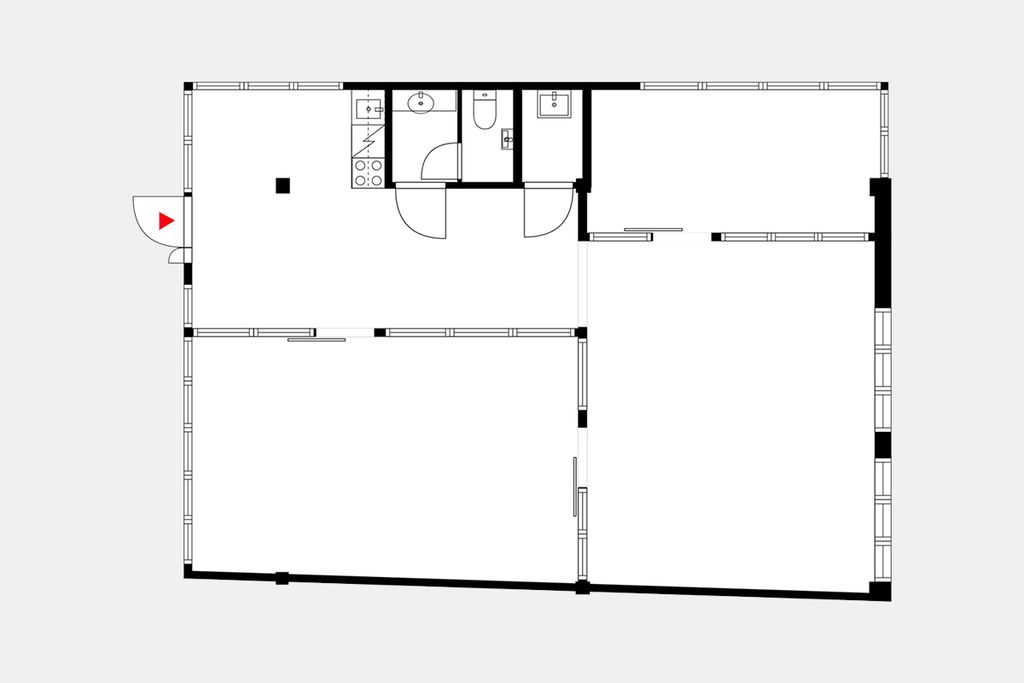
Kyseinen 112 m² toimistotila sijaitsee kiinteistön 4. kerroksessa. Toimistossa on toimistohuone, avotoimistotilaa sekä neuvottelutila, keittiö ja omat wc-tilat.
Askontalo sijaitsee Lahdessa, Askonalueella. Aikaisemmin teollisuustoiminnassa ollut rakennus on saneerattu toimistokiinteistöksi, jossa toimiii paljon mm. muotoilu- ja palveluyrityksiä sekä asiantuntijaorganisaatioita. Kiinteistö sijaitsee hyvällä paikalla, vain kävelymatkan päässä Matkakeskuksesta ja Lahden keskustasta. Kiinteistössä on lounasravintola ja vuokrattavia neuvottelutiloja.
Kysy lisää numerosta 044 723 4700 tai info@bref.fi. Palvelumme on tilanhakijoille ilmainen.
Bureau Real Estate Finland Oy
Lars Sonckin kaari 16, 02600 Espoo
Näytä puhelinnumero
0447234700
Bureau Real Estate Finland Oy
https://www.bref.fi