Vuokrataan toimistotilat - Oulu
Paulaharjuntie 20, Välivainio, 90530 Oulu #10832219
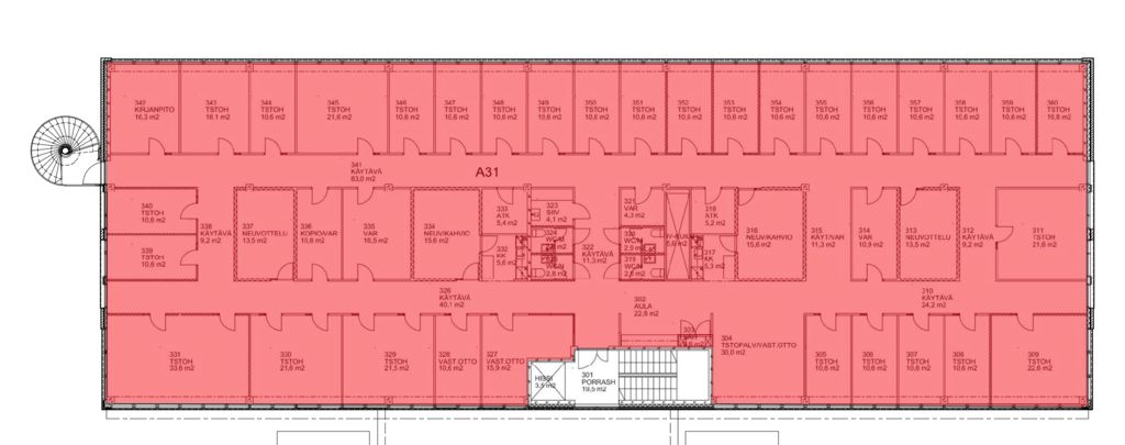
Toimistotilaa Oulun Välivainiossa.
Tämä 850 m² toimistotila sijaitsee kiinteistön 3. kerroksessa. Tila on huoneellista, ja siinä on oma keittiö ja wc:t. Vapautuminen 1.11.2025.
Paulaharjuntie on toimistokiinteistö Oulun Välivainiossa, joka sijaitsee hyvien kulkuyhteyksien varrella nelostien läheisyydessä. Oulun keskustan palvelut sijaitsevat alle 10 minuutin ajomatkan päässä. Lähellä on useita lounasravintoloita ja päivittäistavarakauppa.
Kysy lisää numerosta 044 723 4700 tai info@bref.fi. Palvelumme on tilanhakijoille ilmainen.
Bureau Real Estate Finland Oy
Lars Sonckin kaari 16, 02600 Espoo
Näytä puhelinnumero
0447234700
Bureau Real Estate Finland Oy
https://www.bref.fi