Vuokrataan toimistotilat - Espoo
Sinimäentie 10, Sinimäki, 02630 Espoo #10832202
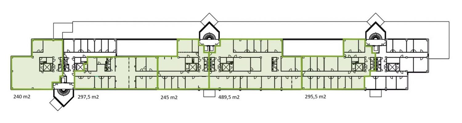
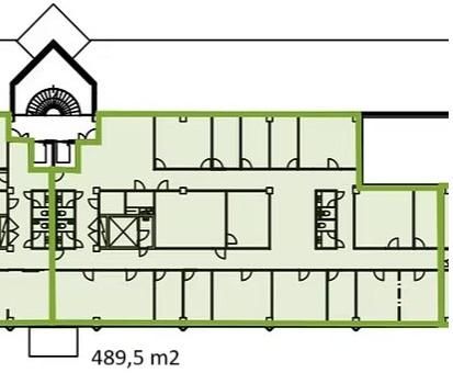
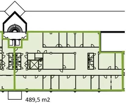
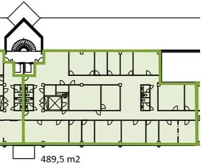
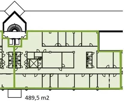
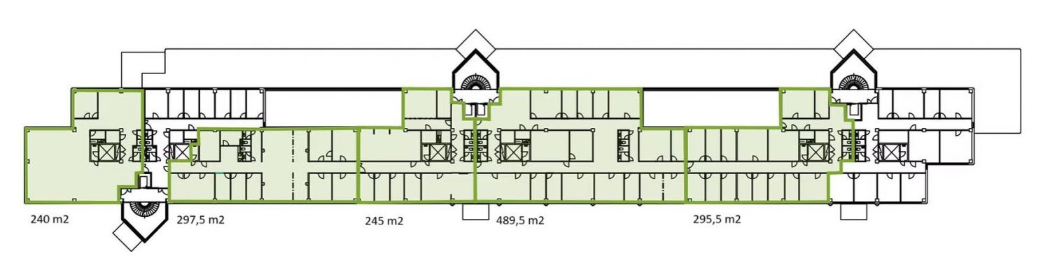
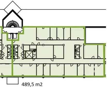
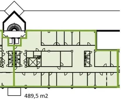
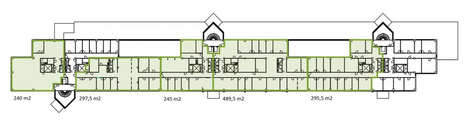
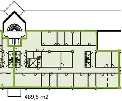
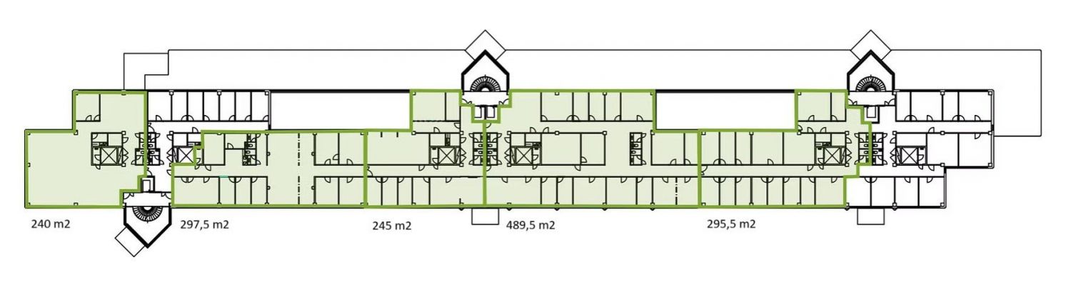
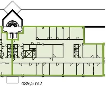
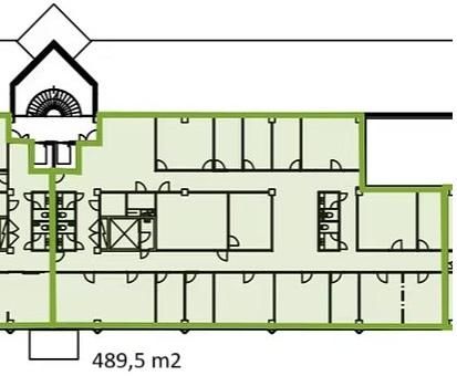
Kide 10 - Toimisto 489,5 m²
Osoite
Sinimäentie 10, 02630 Espoo
Tilatyyppi
Toimistotilaa
490 m2
Pohjapiirros
Vuokra
15-16 €/m2/kk + alv + sähkö
Kiinteistö
Monipuolinen ja tilava toimistotila
Tämä 489,5 m²:n toimistotila sijaitsee 4. kerroksessa B-rapussa ja tarjoaa erinomaiset puitteet suuremmallekin tiimille. Tilassa on 16–17 erikokoista työhuonetta, jotka soveltuvat monenlaisiin työskentelytarpeisiin yksilötyöstä tiimipalavereihin. Lisäksi tilassa on hieman avointa tilaa, joka tuo joustavuutta tilankäyttöön.
Tilassa on keittiö, neljä WC:tä sekä erillinen pieni varastohuone, jotka tukevat sujuvaa työpäivää ja lisäävät käyttömukavuutta. Pohjaratkaisu mahdollistaa tehokkaan tilankäytön ja tarvittaessa muunneltavuutta yrityksen tarpeiden mukaan.
Ikkunoista avautuvat vehreät näkymät sisäpihalle sekä avarat maisemat Turunväylän suuntaan, jotka tuovat tilaan runsaasti luonnonvaloa ja avaruuden tuntua.
Tämä toimitila on ihanteellinen valinta yritykselle, joka etsii edullista, toimivaa ja viihtyisää työympäristöä hyvällä sijainnilla.
Toimistojen vuokrat alkaen 8 €/m²/kk + alv + sähkö.
Kide10 - Toimistokiinteistö Espoon Sinimäessä näkyvällä paikalla
Erinomainen sijainti
Kide10 sijaitsee näkyvällä paikalla Espoon Sinimäen alueella, Turun moottoritien varrella Kehä I:n ja Kehä II:n välissä. Tämä arkkitehtuuriltaan näyttävä toimistokiinteistö tarjoaa erinomaiset liikenneyhteydet eri puolille pääkaupunkiseutua. Bussipysäkki on vain 200 metrin päässä, Turunväylälle ja Kehä II:lle pääsee kahdessa minuutissa, Keran juna-asema on 3,7 kilometrin päässä ja lentokentälle on matkaa 21,4 kilometriä.
Monipuoliset palvelut ja ilmaiset parkkipaikat
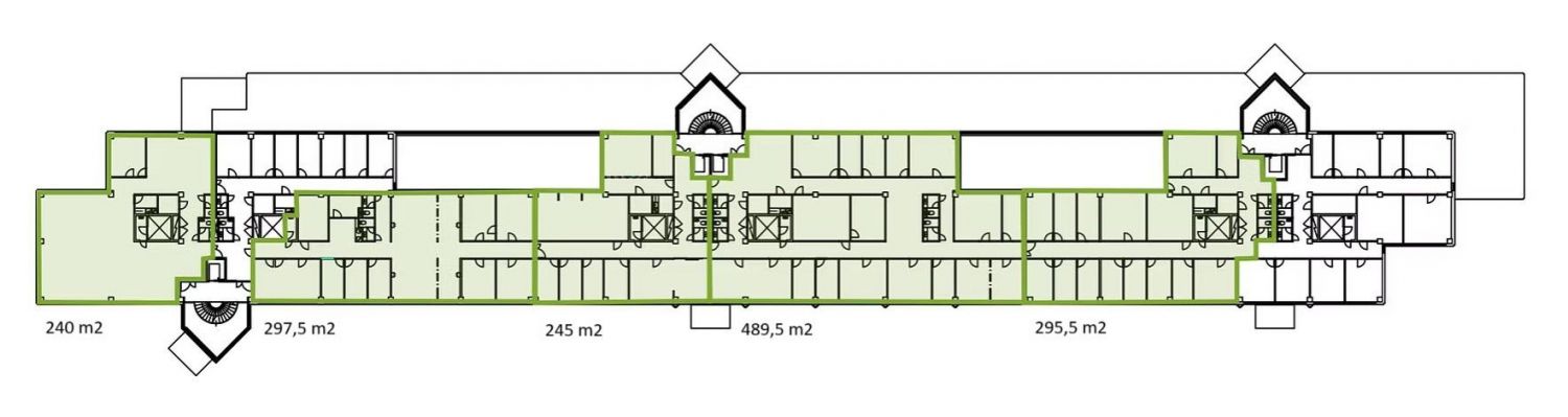
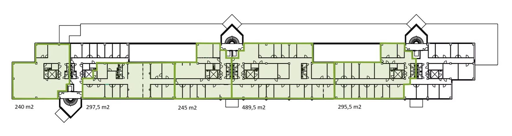
Kide10 tarjoaa monipuolisia toimitiloja niin pienille kuin suurillekin toimijoille kokoluokassa 15–6750 m². Kide10:n yhteisössä toimii useita yrityksiä, ja se tarjoaa käyttäjilleen työarjessa tarvittavat palvelut: henkilöstöravintolan, kuntosalin, ja vuokrattavia neuvotteluhuoneita. Juuri valmistuneessa kokousmaailmassa järjestät helposti asiakastapaamiset ja -kokoukset. Syksyllä 2025 Kide10:n palvelutarjonta laajeni entisestään, kun kiinteistöön avattiin golf-simulaattori, joka tarjoaa vuokralaisille mahdollisuuden virkistäytyä ja harjoitella golftaitojaan sisätiloissa. Lisäksi edustussaunatilat on uudistettu kokonaisuudessaan.
Kide10:ssä on runsaasti pysäköintipaikkoja, jotka ovat vuokralaisten käytössä veloituksetta. Työmatkapyöräilijöitä varten löytyy lukittava pyörävarasto ja suihkutilat. Alueella on myös monipuolinen palvelutarjonta, joka tekee arjesta sujuvaa ja mukavaa.
Inspiroiva ympäristö
Kide10 on toimitila, joka on osa Espoon Sinimäen aluetta, merkittävää liiketoiminta-aluetta. Vuonna 1988 valmistunut Kide10 rakennettiin alun perin Nokia Oyj:n tutkimuskeskuksen käyttöön. Nykyisin rakennuksessa toimii useita yrityksiä, ja se tarjoaa monipuolisia toimitiloja niin pienille kuin suurillekin toimijoille. Alueen monipuolinen palvelutarjonta tekee sijainnista suositun erityisesti erikoiskaupan ja toimistotilojen tarpeisiin.
Ota yhteyttä
Kiinnostuitko? Ota yhteyttä ja tule tutustumaan tiloihin!
Toimitilavälityspalvelumme on tilanhakijalle maksuton.
Tämä 489,5 m²:n toimistotila sijaitsee 4. kerroksessa B-rapussa ja tarjoaa erinomaiset puitteet suuremmallekin tiimille. Tilassa on 16–17 erikokoista työhuonetta, jotka soveltuvat monenlaisiin työskentelytarpeisiin yksilötyöstä tiimipalavereihin. Lisäksi tilassa on hieman avointa tilaa, joka tuo joustavuutta tilankäyttöön.
Tilassa on keittiö, neljä WC:tä sekä erillinen pieni varastohuone, jotka tukevat sujuvaa työpäivää ja lisäävät käyttömukavuutta. Pohjaratkaisu mahdollistaa tehokkaan tilankäytön ja tarvittaessa muunneltavuutta yrityksen tarpeiden mukaan.
Ikkunoista avautuvat vehreät näkymät sisäpihalle sekä avarat maisemat Turunväylän suuntaan, jotka tuovat tilaan runsaasti luonnonvaloa ja avaruuden tuntua.
Tämä toimitila on ihanteellinen valinta yritykselle, joka etsii edullista, toimivaa ja viihtyisää työympäristöä hyvällä sijainnilla.
Toimistojen vuokrat alkaen 8 €/m²/kk + alv + sähkö.
Kide10 - Toimistokiinteistö Espoon Sinimäessä näkyvällä paikalla
Erinomainen sijainti
Kide10 sijaitsee näkyvällä paikalla Espoon Sinimäen alueella, Turun moottoritien varrella Kehä I:n ja Kehä II:n välissä. Tämä arkkitehtuuriltaan näyttävä toimistokiinteistö tarjoaa erinomaiset liikenneyhteydet eri puolille pääkaupunkiseutua. Bussipysäkki on vain 200 metrin päässä, Turunväylälle ja Kehä II:lle pääsee kahdessa minuutissa, Keran juna-asema on 3,7 kilometrin päässä ja lentokentälle on matkaa 21,4 kilometriä.
Monipuoliset palvelut ja ilmaiset parkkipaikat
Kide10 tarjoaa monipuolisia toimitiloja niin pienille kuin suurillekin toimijoille kokoluokassa 15–6750 m². Kide10:n yhteisössä toimii useita yrityksiä, ja se tarjoaa käyttäjilleen työarjessa tarvittavat palvelut: henkilöstöravintolan, kuntosalin, ja vuokrattavia neuvotteluhuoneita. Juuri valmistuneessa kokousmaailmassa järjestät helposti asiakastapaamiset ja -kokoukset. Syksyllä 2025 Kide10:n palvelutarjonta laajeni entisestään, kun kiinteistöön avattiin golf-simulaattori, joka tarjoaa vuokralaisille mahdollisuuden virkistäytyä ja harjoitella golftaitojaan sisätiloissa. Lisäksi edustussaunatilat on uudistettu kokonaisuudessaan.
Kide10:ssä on runsaasti pysäköintipaikkoja, jotka ovat vuokralaisten käytössä veloituksetta. Työmatkapyöräilijöitä varten löytyy lukittava pyörävarasto ja suihkutilat. Alueella on myös monipuolinen palvelutarjonta, joka tekee arjesta sujuvaa ja mukavaa.
Inspiroiva ympäristö
Kide10 on toimitila, joka on osa Espoon Sinimäen aluetta, merkittävää liiketoiminta-aluetta. Vuonna 1988 valmistunut Kide10 rakennettiin alun perin Nokia Oyj:n tutkimuskeskuksen käyttöön. Nykyisin rakennuksessa toimii useita yrityksiä, ja se tarjoaa monipuolisia toimitiloja niin pienille kuin suurillekin toimijoille. Alueen monipuolinen palvelutarjonta tekee sijainnista suositun erityisesti erikoiskaupan ja toimistotilojen tarpeisiin.
Ota yhteyttä
Kiinnostuitko? Ota yhteyttä ja tule tutustumaan tiloihin!
Toimitilavälityspalvelumme on tilanhakijalle maksuton.
Vapautuu
Kysy
Kerros
4
Ota yhteyttä
Logistila Oy
Kylätie 11-13, 00320 HELSINKI
Karoliina Turppo
Näytä puhelinnumero
050 345 3258
Pyydä lisätietoa
