Vuokrataan toimistotilat - Espoo
Sinimäentie 10, Sinimäki, 02630 Espoo #10832200
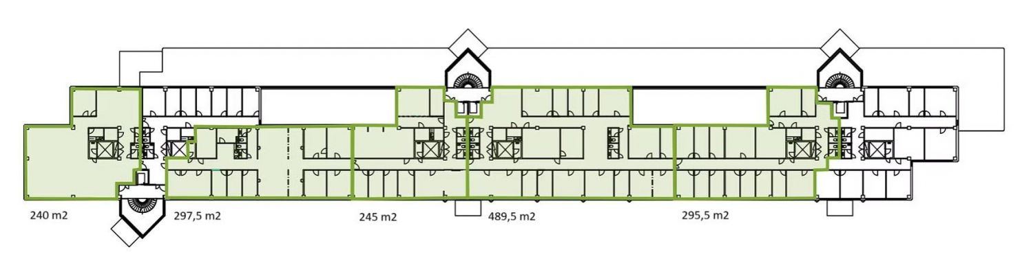
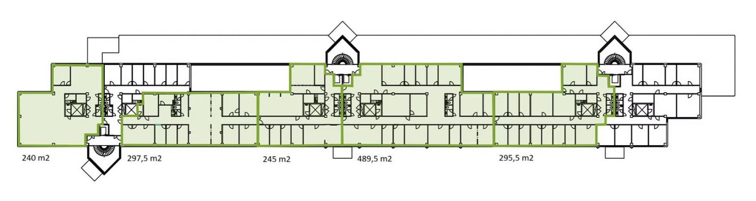
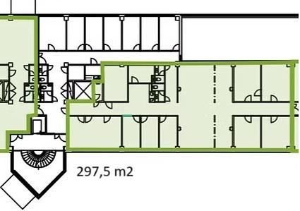
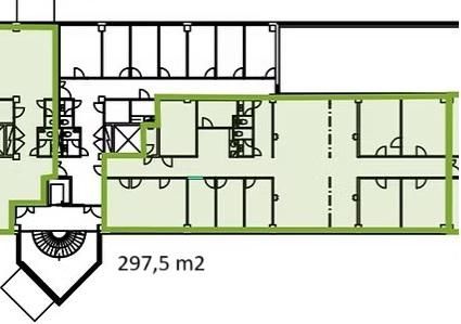
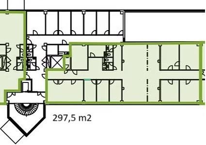
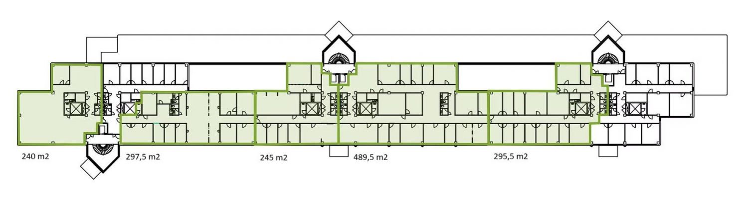
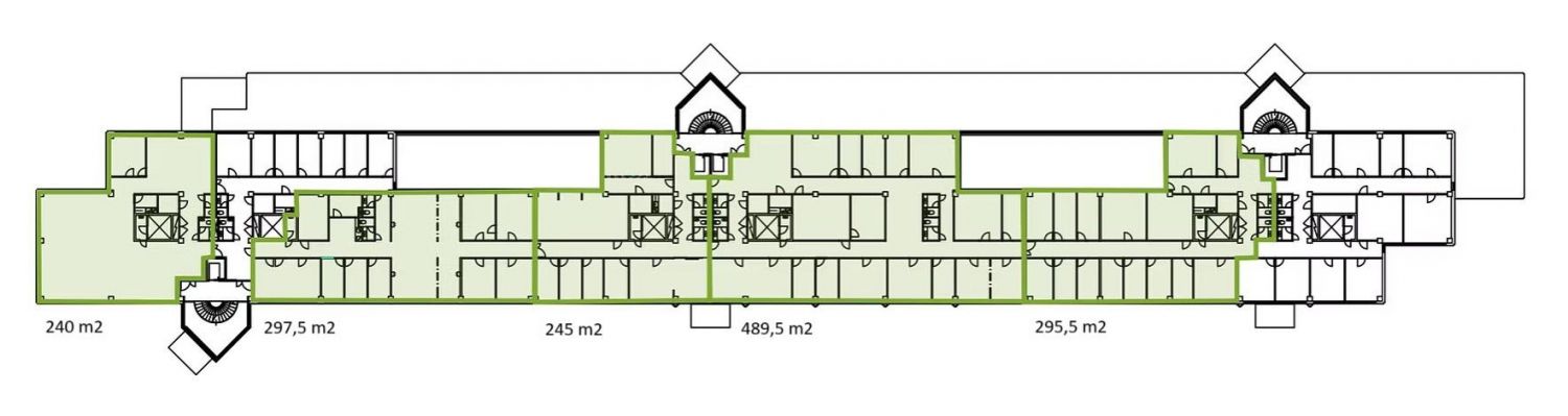
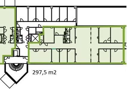
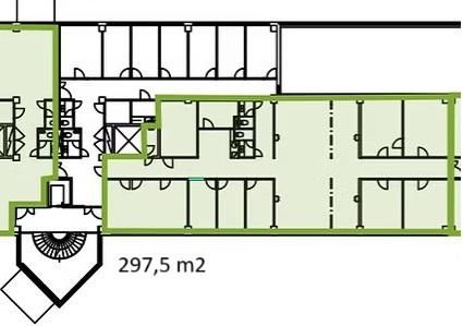
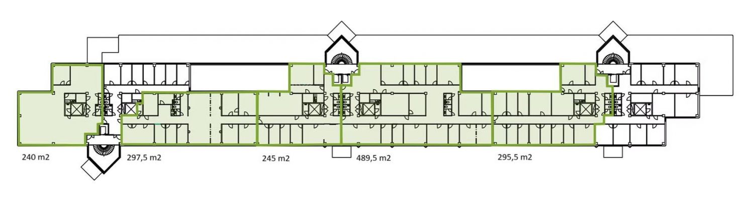
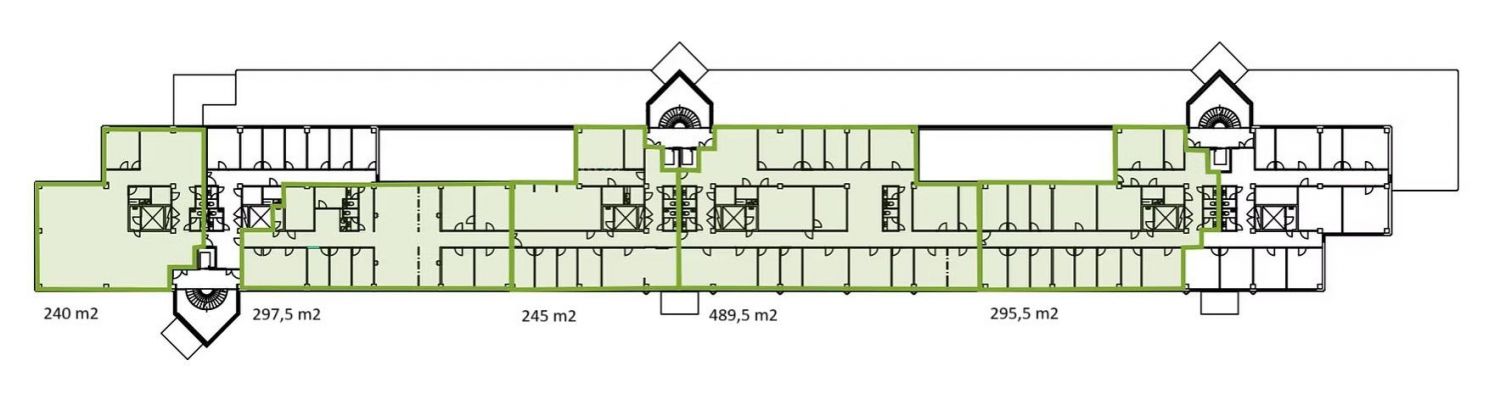
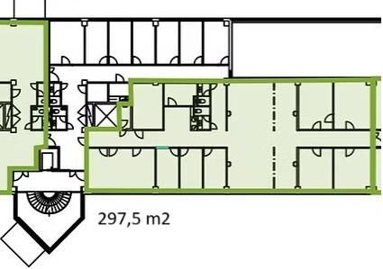
Kide 10 - Toimisto 297,5 m²
Osoite
Sinimäentie 10, 02630 Espoo
Tilatyyppi
Toimistotilaa
298 m2
Pohjapiirros
Vuokra
15-16 €/m2/kk + alv + sähkö
Kiinteistö
Monipuolinen toimistotila
Tämä 4. kerroksessa A-rapussa sijaitseva toimistotila 297,5 m² tarjoaa erinomaiset puitteet tehokkaaseen ja viihtyisään työskentelyyn. Tilassa on yhteensä yhdeksän erikokoista huonetta sekä avointa tilaa, jotka mahdollistavat joustavan tilankäytön erilaisiin tarpeisiin – olipa kyseessä tiimityö, keskittymistä vaativat tehtävät tai asiakastapaamiset.
Käytännöllinen keittiö ja kaksi WC-tilaa lisäävät arjen sujuvuutta, ja tilan selkeä pohjaratkaisu tukee sekä toiminnallisuutta että mukavuutta.
Tämä huonetoimisto sopii erinomaisesti yritykselle, joka arvostaa muunneltavaa, kustannustehokasta ja viihtyisää työympäristöä.
Toimistojen vuokrat alkaen 8 €/m²/kk + alv + sähkö.
Kide10 - Toimistokiinteistö Espoon Sinimäessä näkyvällä paikalla
Erinomainen sijainti
Kide10 sijaitsee näkyvällä paikalla Espoon Sinimäen alueella, Turun moottoritien varrella Kehä I:n ja Kehä II:n välissä. Tämä arkkitehtuuriltaan näyttävä toimistokiinteistö tarjoaa erinomaiset liikenneyhteydet eri puolille pääkaupunkiseutua. Bussipysäkki on vain 200 metrin päässä, Turunväylälle ja Kehä II:lle pääsee kahdessa minuutissa, Keran juna-asema on 3,7 kilometrin päässä ja lentokentälle on matkaa 21,4 kilometriä.
Monipuoliset palvelut ja ilmaiset parkkipaikat
Kide10 tarjoaa monipuolisia toimitiloja niin pienille kuin suurillekin toimijoille kokoluokassa 15–6750 m². Kide10:n yhteisössä toimii useita yrityksiä, ja se tarjoaa käyttäjilleen työarjessa tarvittavat palvelut: henkilöstöravintolan, kuntosalin, ja vuokrattavia neuvotteluhuoneita. Juuri valmistuneessa kokousmaailmassa järjestät helposti asiakastapaamiset ja -kokoukset. Syksyllä 2025 Kide10:n palvelutarjonta laajeni entisestään, kun kiinteistöön avattiin golf-simulaattori, joka tarjoaa vuokralaisille mahdollisuuden virkistäytyä ja harjoitella golftaitojaan sisätiloissa. Lisäksi edustussaunatilat on uudistettu kokonaisuudessaan.
Kide10:ssä on runsaasti pysäköintipaikkoja, jotka ovat vuokralaisten käytössä veloituksetta. Työmatkapyöräilijöitä varten löytyy lukittava pyörävarasto ja suihkutilat. Alueella on myös monipuolinen palvelutarjonta, joka tekee arjesta sujuvaa ja mukavaa.
Inspiroiva ympäristö
Kide10 on toimitila, joka on osa Espoon Sinimäen aluetta, merkittävää liiketoiminta-aluetta. Vuonna 1988 valmistunut Kide10 rakennettiin alun perin Nokia Oyj:n tutkimuskeskuksen käyttöön. Nykyisin rakennuksessa toimii useita yrityksiä, ja se tarjoaa monipuolisia toimitiloja niin pienille kuin suurillekin toimijoille. Alueen monipuolinen palvelutarjonta tekee sijainnista suositun erityisesti erikoiskaupan ja toimistotilojen tarpeisiin.
Ota yhteyttä
Kiinnostuitko? Ota yhteyttä ja tule tutustumaan tiloihin!
Toimitilavälityspalvelumme on tilanhakijalle maksuton.
Tämä 4. kerroksessa A-rapussa sijaitseva toimistotila 297,5 m² tarjoaa erinomaiset puitteet tehokkaaseen ja viihtyisään työskentelyyn. Tilassa on yhteensä yhdeksän erikokoista huonetta sekä avointa tilaa, jotka mahdollistavat joustavan tilankäytön erilaisiin tarpeisiin – olipa kyseessä tiimityö, keskittymistä vaativat tehtävät tai asiakastapaamiset.
Käytännöllinen keittiö ja kaksi WC-tilaa lisäävät arjen sujuvuutta, ja tilan selkeä pohjaratkaisu tukee sekä toiminnallisuutta että mukavuutta.
Tämä huonetoimisto sopii erinomaisesti yritykselle, joka arvostaa muunneltavaa, kustannustehokasta ja viihtyisää työympäristöä.
Toimistojen vuokrat alkaen 8 €/m²/kk + alv + sähkö.
Kide10 - Toimistokiinteistö Espoon Sinimäessä näkyvällä paikalla
Erinomainen sijainti
Kide10 sijaitsee näkyvällä paikalla Espoon Sinimäen alueella, Turun moottoritien varrella Kehä I:n ja Kehä II:n välissä. Tämä arkkitehtuuriltaan näyttävä toimistokiinteistö tarjoaa erinomaiset liikenneyhteydet eri puolille pääkaupunkiseutua. Bussipysäkki on vain 200 metrin päässä, Turunväylälle ja Kehä II:lle pääsee kahdessa minuutissa, Keran juna-asema on 3,7 kilometrin päässä ja lentokentälle on matkaa 21,4 kilometriä.
Monipuoliset palvelut ja ilmaiset parkkipaikat
Kide10 tarjoaa monipuolisia toimitiloja niin pienille kuin suurillekin toimijoille kokoluokassa 15–6750 m². Kide10:n yhteisössä toimii useita yrityksiä, ja se tarjoaa käyttäjilleen työarjessa tarvittavat palvelut: henkilöstöravintolan, kuntosalin, ja vuokrattavia neuvotteluhuoneita. Juuri valmistuneessa kokousmaailmassa järjestät helposti asiakastapaamiset ja -kokoukset. Syksyllä 2025 Kide10:n palvelutarjonta laajeni entisestään, kun kiinteistöön avattiin golf-simulaattori, joka tarjoaa vuokralaisille mahdollisuuden virkistäytyä ja harjoitella golftaitojaan sisätiloissa. Lisäksi edustussaunatilat on uudistettu kokonaisuudessaan.
Kide10:ssä on runsaasti pysäköintipaikkoja, jotka ovat vuokralaisten käytössä veloituksetta. Työmatkapyöräilijöitä varten löytyy lukittava pyörävarasto ja suihkutilat. Alueella on myös monipuolinen palvelutarjonta, joka tekee arjesta sujuvaa ja mukavaa.
Inspiroiva ympäristö
Kide10 on toimitila, joka on osa Espoon Sinimäen aluetta, merkittävää liiketoiminta-aluetta. Vuonna 1988 valmistunut Kide10 rakennettiin alun perin Nokia Oyj:n tutkimuskeskuksen käyttöön. Nykyisin rakennuksessa toimii useita yrityksiä, ja se tarjoaa monipuolisia toimitiloja niin pienille kuin suurillekin toimijoille. Alueen monipuolinen palvelutarjonta tekee sijainnista suositun erityisesti erikoiskaupan ja toimistotilojen tarpeisiin.
Ota yhteyttä
Kiinnostuitko? Ota yhteyttä ja tule tutustumaan tiloihin!
Toimitilavälityspalvelumme on tilanhakijalle maksuton.
Vapautuu
Kysy
Kerros
4
Ota yhteyttä
Logistila Oy
Kylätie 11-13, 00320 HELSINKI
Karoliina Turppo
Näytä puhelinnumero
050 345 3258
Pyydä lisätietoa
