Vuokrataan toimistotilat - Lahti
Askonkatu 9, 15100 Lahti #10832140
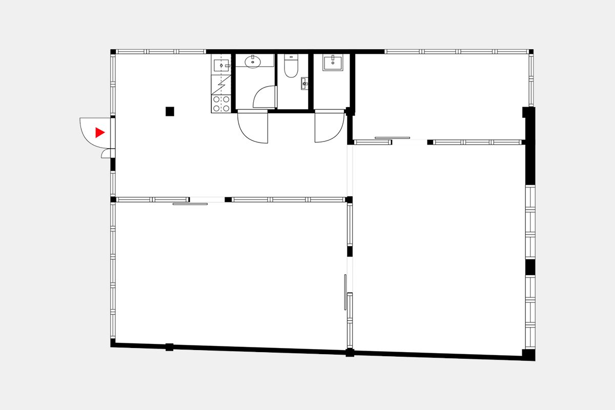
Vuokrattavana 4. kerroksen valoisaa ja viihtyisää toimistotilaa.
Osoite
Askonkatu 9, 15100 Lahti
Tilatyyppi
Toimistotilaa
112 m2
Kiinteistö
Vuokrattavana 4. kerroksen valoisaa ja viihtyisää toimistotilaa. Tilassa on pieni keittiö, toimistohuone, avotoimistotilaa sekä neuvottelutila.
Sijainti
Lahden keskusta-alueella
Pysäköinti
Kiinteistön lähistöllä on useita pysäköintialueita.
Palvelut
-Lounasravintola
-Vuokrattavia neuvottelutiloja
-Vuokrattavia neuvottelutiloja
Kulkuyhteydet
-Bussi
-Oma auto
-Oma auto
Vapautuu
Heti
Kerros
4
Energiatehokkuusluokka
Ei lain edellyttämää energiatodistusta
Näkyvällä paikalla
Hissi
Ota yhteyttä
REALIUM OY LKV
Tammasaarenkatu 1, 00180 Helsinki
Vaihde:
Näytä puhelinnumero
010 326 346
Tuomo Mäkelä
tuomo.makela@realium.fi
p.
Näytä puhelinnumero
044 050 1158
Joel Keto
joel.keto@realium.fi
p.
Näytä puhelinnumero
045 317 0330
KAIKKI TILAVAIHTOEHDOT KERRALLA!
SOITA - MEILAA JA TILAA NÄYTTÖ!
Ilmainen palvelu tilanhakijoille.
Kartoitamme parhaat tilavaihtoehdot.
Kaikki kohteet eivät ole netissä.
Pyydä lisätietoa
