Vuokrataan liiketilat - Helsinki
Paciuksenkatu 27, Meilahti, 00270 Helsinki #10832126
TILAT
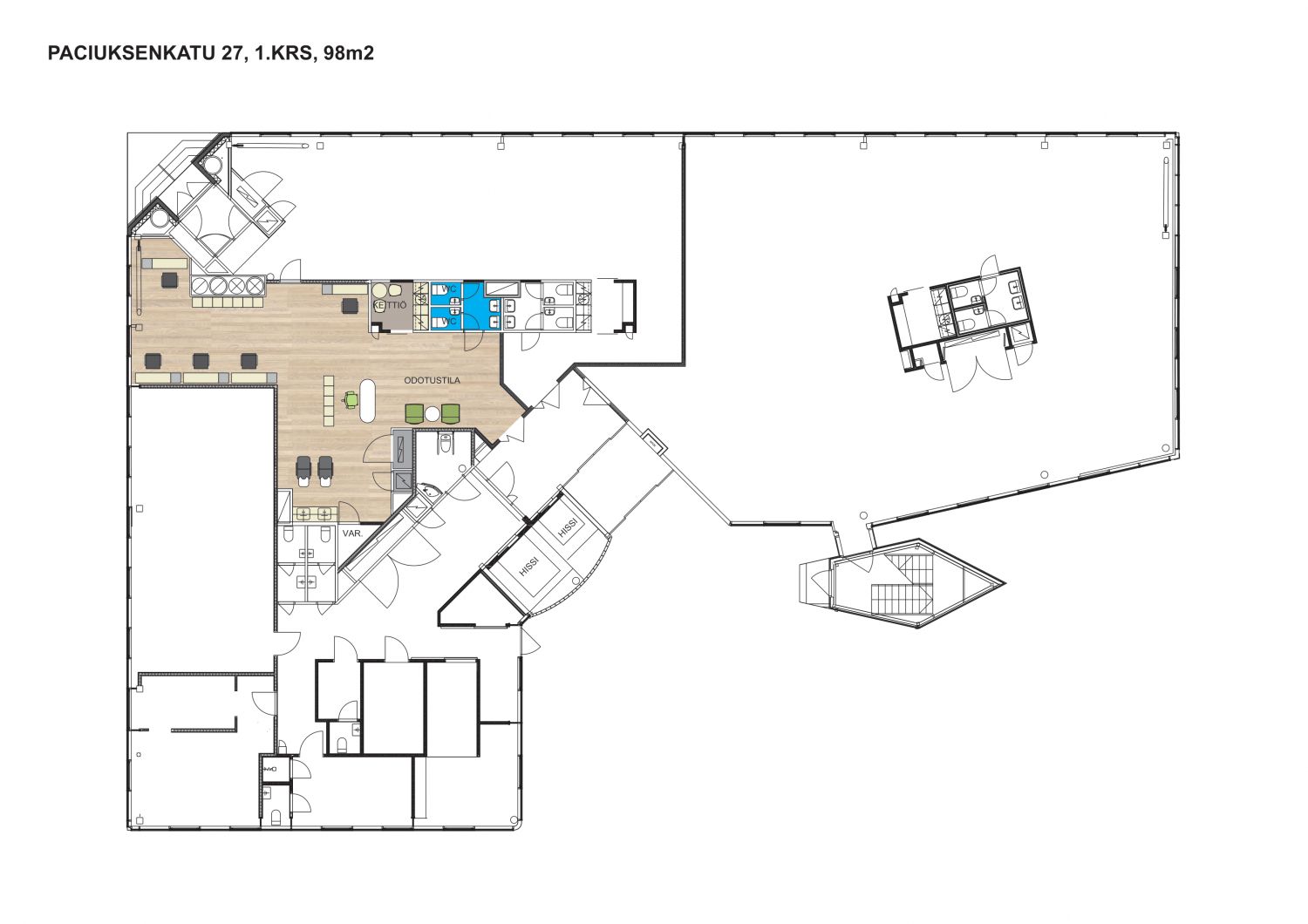
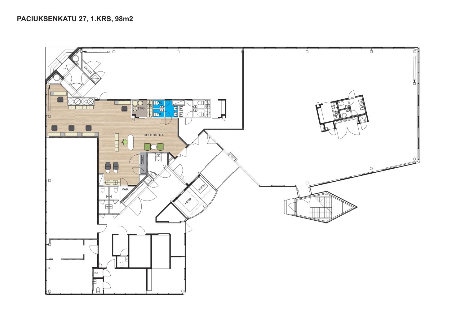
Meilahden Paciuksenkadulta on vapautumassa katutasosta 98 m² liiketilaa, joka soveltuu mainiosti esimerkiksi fysioterapiakäyttöön, hierojalle tai vaikkapa kauneushoitolaksi. Liiketila joustaa pienemmän tai isomman toimijan käyttöön, sillä kyseistä tilaa on mahdollista yhdistää myös viereisten tilojen kanssa jopa 523 m² kokonaisuudeksi. Tilat remontoidaan vuokralaisen tarpeiden mukaan.
KIINTEISTÖ
Paciuksenkatu 27 on näyttävän näköinen ja helposti saavutettava kiinteistö Meilahdessa. Kiinteistö on aiemmin palvellut toimistokäytössä, mutta rakennuksen ylempiä kerroksia konvertoidaan parhaillaan hoivakäyttöön. Mehiläisen ikääntyneiden palveluja tarjoava Mainiokodit ja vammaispalvelujen Onnikodit avaavat korjaustöiden jälkeen uudet asumispalveluyksiköt kiinteistöön. Rakennustöiden on määrä valmistua alkuvuodesta 2026.
LIIKENNEYHTEYDET JA LÄHIALUEEN PALVELUT
Kiinteistöön on sujuvat kulkuyhteydet niin julkisilla kulkuvälineillä kuin autolla. Muun muassa raitiovaunu 4 ja useat bussit pysähtyvät ihan viereen, ja saavutettavuus autolla esimerkiksi Espoosta päin on nopea - ilman keskustan ruuhkia! Pysäköintitilaa on autohallissa. Viereisissä kiinteistöissä toimii kolme erilaista lounasravintolaa ja päivittäistavarakauppa sijaitsee vastapäätä.
