Vuokrataan toimistotilat - Helsinki
Insinöörinkatu 12, Herttoniemi, 00880 Helsinki #10832048
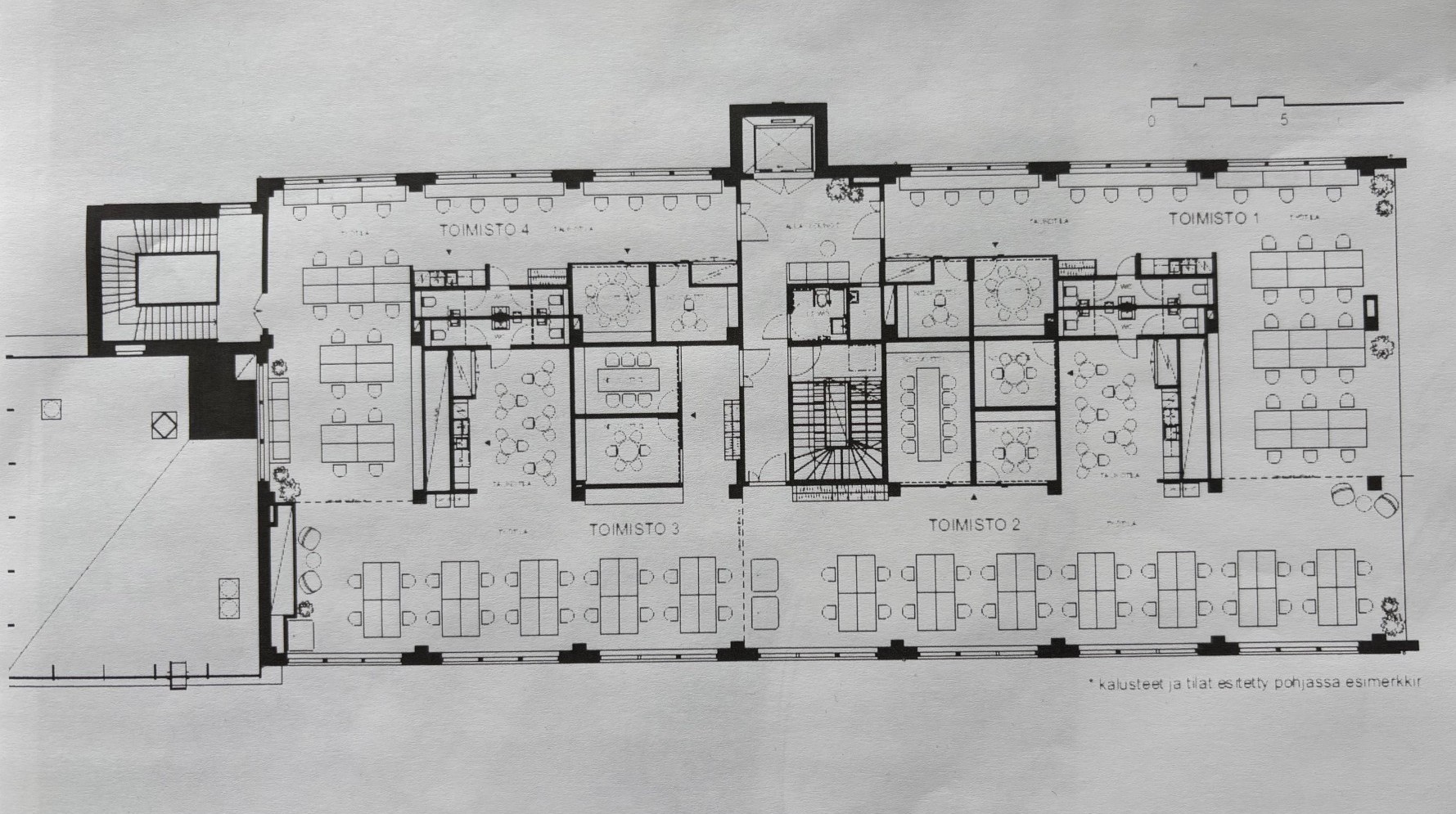
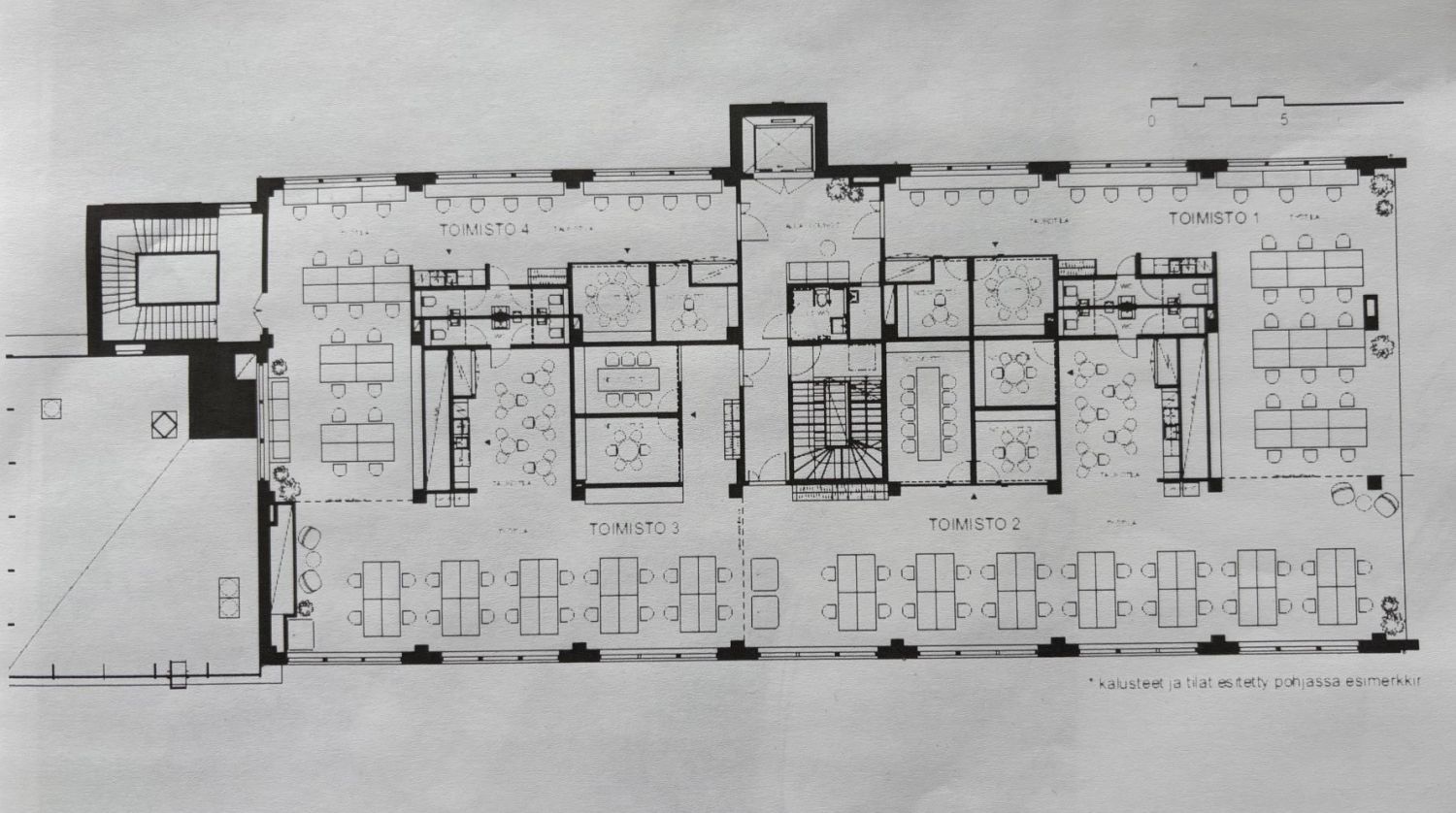
Tarjolla juuri valmistunutta, tyylikästä ja korkeaa toimistotilaa Herttoniemessä historiallisessa tehdasrakennuksessa. Ylimmän kerroksen pinta-ala on noin 722 m2, jonka voi tarvittaessa jakaa kahdelle, kolmelle tai neljälle käyttäjälle. Kohde sopii erinomaisesti luovaan työhön tai yritykselle, joka arvostaa uniikkia ympäristöä ja toimivia tilaratkaisuja. Ota yhteyttä ja sovi esittely - Kaius Kilpinen 050 556 7472
Osoite
Insinöörinkatu 12, 00880 Helsinki
Tilatyyppi
Toimistotilaa
149 - 722 m2
Tilajako
Jaettavissa
Toimisto 1 - 166m2
Toimisto 2 - 229,1 m2
Toimisto 3 - 178,1 m2
Toimisto 4 - 148,6 m2
Pohjapiirros
Sijainti
Herttoniemi
Pysäköinti
Kadunvarsipaikkoja sekä talon vieressä on pysäköintihalli, josta on vuokrattavissa autopaikkoja.
Palvelut
Vieressä Hertsi kauppakeskus, Noli Studios sekä lounasravintoloita.
Kulkuyhteydet
Herttoniemen metro-asema kävelymatkan päässä.
Vapautuu
Heti
Kerros
3 / 3
Jaettavissa
Hissi
Ota yhteyttä
Senaatin Notariaatti Oy LKV
Lämmittäjänkatu 4 A
FIN-00880 Helsinki
Tel:
Näytä puhelinnumero
+358 9 7745 100
Pyydä lisätietoa
