Myydään/sijoituskohde liiketilat, tuotantotilat, varastotilat, työtilat - Joensuu
Helinintie 2 B, Joensuu, 80130 Joensuu #10831990
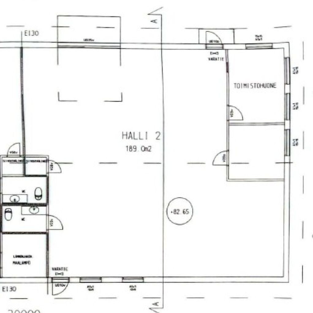
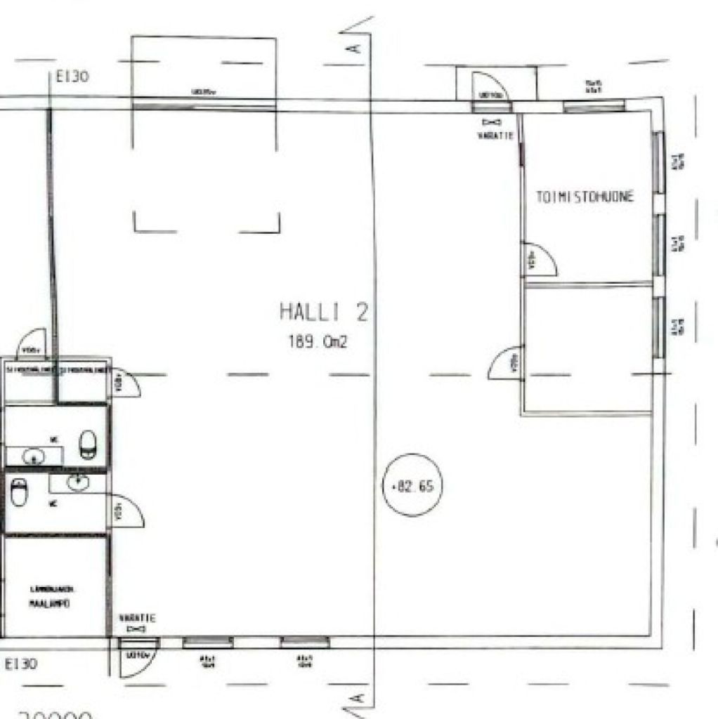
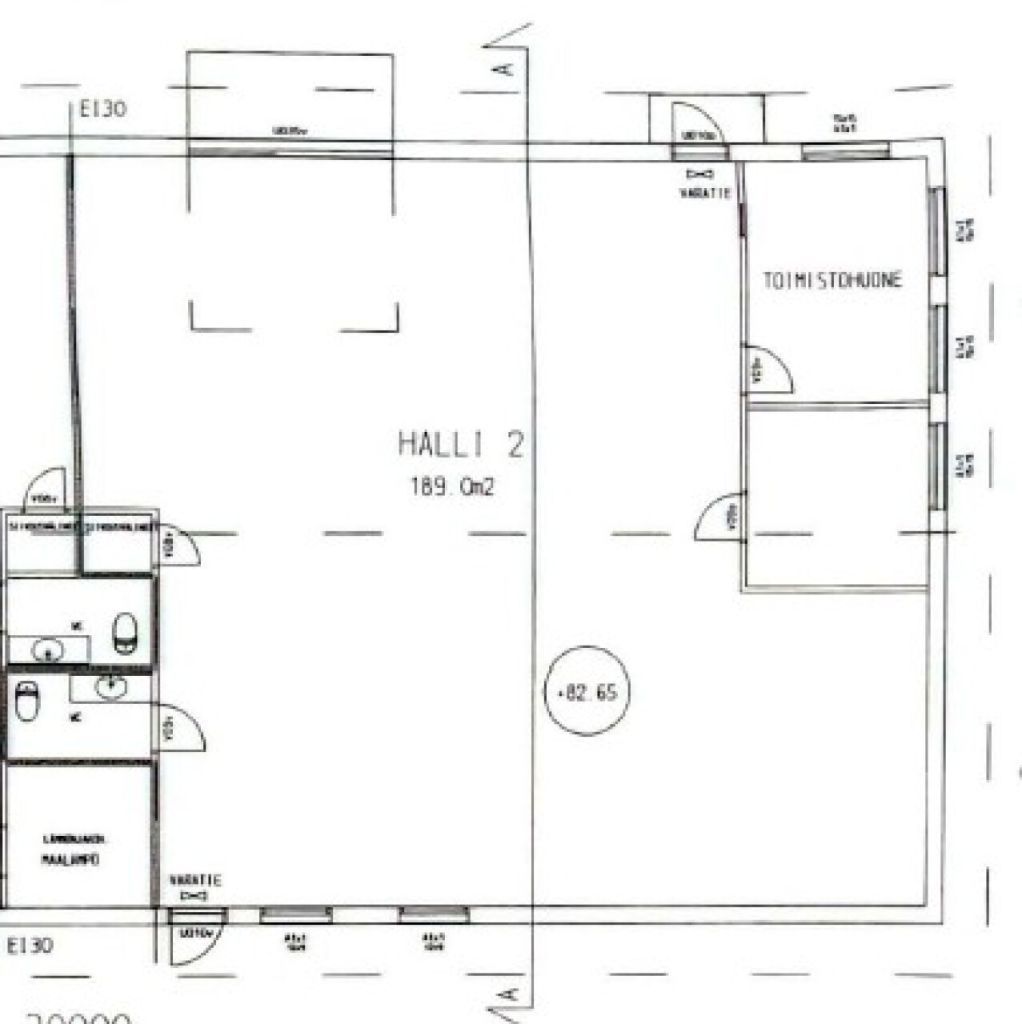
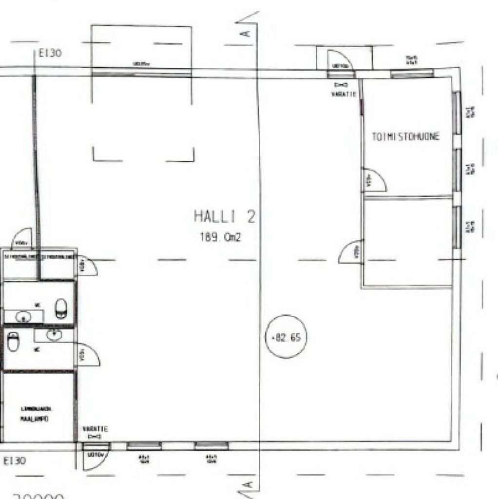
Teollisuushalli Käpykankaalla
Kerroksia rakennuksessa on 1.
Lämmitysmuoto on maalämpö.
Habita Finland Oy
Torikatu 29 A , 80100 Joensuu
Näytä puhelinnumero
0105855750
Jani Nevalainen
Näytä puhelinnumero
+358 50 4200757
## Myytävät asunnot Joensuussa, Kontiolahdella, Liperissä ja koko Pohjois-Karjalassa
Tervetuloa keskustelemaan kaikista kodin vaihtamiseen liittyvistä asioista asiantuntevien ja osaavien välittäjiemme kanssa. Katsotaan yhdessä kuinka voit saada avullamme asunnostasi parhaan mahdollisen hinnan. Meille tärkeää on tehdä asiat ensitapaamisesta alkaen oikein ja tarjota asiakkaillemme laadukasta ja tehokasta palvelua on kyseessä sitten kiinteistön, huoneiston, loma-asunnon tai toimitilan myynti, osto tai vuokraus.
## Kokeneet kiinteistönvälittäjät
Meillä on kokemusta ja osaamista alkaen pienimmistä asunnoista ja mökeistä aina suuriin kiinteistökokonaisuuksiin, toimitiloihin sekä uudistuotantoon.
## Asunnon hinta-arviointi
Saat meiltä ilmaisen hinta-arvion myytävästä kiinteistöstä sekä ammattitaitoisen kiinteistönvälittäjän avuksi kiinteistönvälitykseen.
## Asunnon myynti tehokkaasti
Habitan välittäjät kautta koko Suomen - ja myös kansainvälisesti - toimivat yhteistyössä mainostaen myytäviä asuntoja potentiaalisille ostajille. Habita markkinoi myytäviä asuntoja myös kattavan asiakasrekisterinsä kautta, jossa tuhannet etsivät uutta asuntoa.
Takaamme asunnon tehokkaan markkinoinnin sekä aktiivisen kiinteistön esittelyn. Kiinteistönvälittäjät hoitavat myös kaikki tarvittavat dokumentit asuntokauppaa varten.
