Vuokrataan toimistotilat - Helsinki
Runeberginkatu 5, Kamppi, 00100 Helsinki #10831984
Suosittu kohde erinomaisella sijainnilla Helsingin Kampissa.
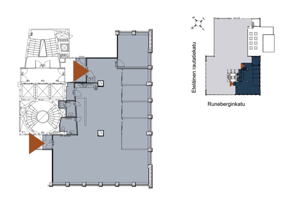
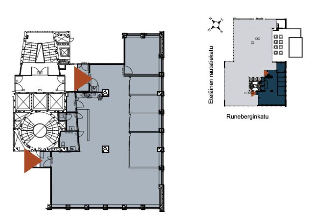
Kyseinen toimistotila on kooltaan 209,5 m² ja se sijaitsee kiinteistön 4. kerroksessa. Toimistossa on huoneita, avotilaa sekä omat keittiö- ja wc-tilat. Vapautuminen 1.4.2026.
Runeberginkatu 5 eli Runskivuori sijaitsee loistavalla paikalla Helsingin Kampissa. Julkisivu ja yleiset tilat ovat kunnostettu kunnioittaen kiinteistön arkkitehtuuria. Kiinteistöstä löytyy autohalli sekä pyöräparkki ja suihkutilat. Tilat ovat jäähdytetty puhallinkonvektoreilla. Vuokrattavia tiloja on mahdollista muunnella vuokralaisen tarpeiden mukaan.
Kysy lisää numerosta 044 723 4700 tai info@bref.fi. Palvelumme on tilanhakijoille ilmainen.
Hissi
Bureau Real Estate Finland Oy
Lars Sonckin kaari 16, 02600 Espoo
Näytä puhelinnumero
0447234700
Bureau Real Estate Finland Oy
https://www.bref.fi