Vuokrataan toimistotilat - Oulu
Konetie 33, Rusko, 90630 Oulu #10831971
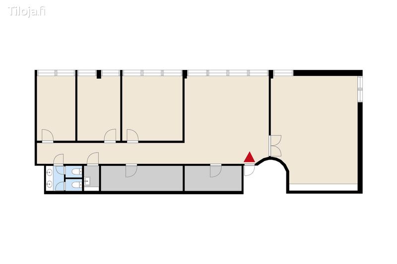
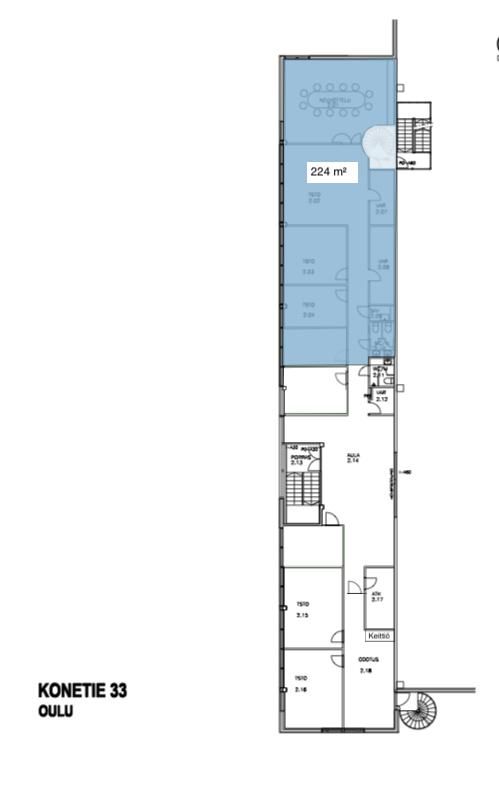
224 m2 toimistotilaa Ruskossa
Osoite
Konetie 33, 90630 Oulu
Tilatyyppi
Toimistotilaa
224 m2
Pohjapiirros
Kiinteistö
Vuokrattavana
Heti vapaa valoisa 224 m2:n toimistotila Ruskon Konetiellä. Tilassa on minikeittiö + sosiaalitilat.
Tila soveltuu moneen käyttöön, kuten osittaiseksi avotoimistotilaksi tai hyvinvointialan yrittäjälle.
Tilojen jäähdytyksen ansiosta lämpötila pysyy myös kesähelteillä miellyttävän viileänä.
Autopaikkoja on hyvin tarjolla sekä työntekijöille että asiakkaille.
Sijainti
Konetie 33 sijaitsee Ruskon teollisuusalueella noin yhdeksän kilometriä Oulun keskustasta koilliseen. Liikenteellisesti kohteen sijainti on erinomainen läheisen moottoritien ansiosta. Ruskon pääväylä yhdistyy nelikaistaiseen Valtatie 20:een, Kuusamon ja koko Koillismaan sekä Oulun väliseen moottoritiehen. Liikkuminen on helppoa niin keskustan suuntaan kuin kaupungista poispäin. Oulun lentokenttä sijaitsee n. 20 km päässä ja rautatieasema Oulun keskustassa noin 8 km päässä.
Helppo saavutettavuus Kuusamontien läheisyydessä.
Lähialueella myös useita lounasruokaloita.
Ole yhteydessä, niin sovitaan tapaaminen tilojen esittelyä varten.
Heti vapaa valoisa 224 m2:n toimistotila Ruskon Konetiellä. Tilassa on minikeittiö + sosiaalitilat.
Tila soveltuu moneen käyttöön, kuten osittaiseksi avotoimistotilaksi tai hyvinvointialan yrittäjälle.
Tilojen jäähdytyksen ansiosta lämpötila pysyy myös kesähelteillä miellyttävän viileänä.
Autopaikkoja on hyvin tarjolla sekä työntekijöille että asiakkaille.
Sijainti
Konetie 33 sijaitsee Ruskon teollisuusalueella noin yhdeksän kilometriä Oulun keskustasta koilliseen. Liikenteellisesti kohteen sijainti on erinomainen läheisen moottoritien ansiosta. Ruskon pääväylä yhdistyy nelikaistaiseen Valtatie 20:een, Kuusamon ja koko Koillismaan sekä Oulun väliseen moottoritiehen. Liikkuminen on helppoa niin keskustan suuntaan kuin kaupungista poispäin. Oulun lentokenttä sijaitsee n. 20 km päässä ja rautatieasema Oulun keskustassa noin 8 km päässä.
Helppo saavutettavuus Kuusamontien läheisyydessä.
Lähialueella myös useita lounasruokaloita.
Ole yhteydessä, niin sovitaan tapaaminen tilojen esittelyä varten.
Vapautuu
Kysy
Kerros
2
Ota yhteyttä
Logistila Oy
Kiilakiventie 1, 90250 OULU
Sami Karppinen
Näytä puhelinnumero
+358401994722
Pyydä lisätietoa
