Vuokrataan toimistotilat - Espoo
Keilasatama 5, Keilaranta, 02150 Espoo #10831965
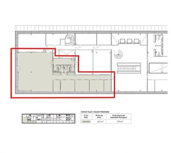
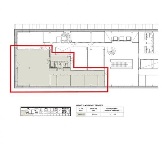
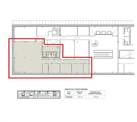
Tilasta löytyy niin avotyötilaa, kuin myös työ- ja neuvotteluhuoneita sekä siistit wc-tilat.
Keilasatama on ikoninen maamerkki Espoon Keilaniemessä. Tyylikäs ja palveluiltaan laadukas toimistotalo sijaitsee Keilaniemen parhaalla paikalla metroaseman läheisyydessä.
Keilasatamassa on laajat ja monipuoliset palvelut. Vuokralaisten käytössä on kuntosali ja erillisveloituksella personal trainer -palvelut. Työntekijöitä ja kokoustajia palvelee monipuolinen ravintola ja kahvila. Talon toisessa kerroksessa on laaja neuvotteluhuonekeskus, jossa on yhteensä 21 neuvottelutilaa 8:n–200:n henkilön tilaisuuksiin. Yleiset tilat on uudistettu vuoden 2022 alussa.
Me Croisettella autamme teitä löytämään teille parhaat tilat! Olemme puolueettomia asiantuntijoita ja tunnemme toimitilamarkkinat, talot sekä tilat vankalla kokemuksella. Meillä on välityksessä kaikki toimitilat ja tiedämme niiden alustavat vuokratasot.
Tehtävämme on tehdä toimitilahaustanne onnistunut ja helppo. Saamme palkkiomme kiinteistönomistajalta, joten sinulle palvelumme on täysin maksuton.
Croisette Real Estate Partner
Erottajankatu 5 A 6, 00130 Helsinki
Näytä puhelinnumero
+358 400 585 857
Croisette Vuokraus
Näytä puhelinnumero
+358400585857
