Vuokrataan toimistotilat - Helsinki
Itämerenkatu 1, Ruoholahti, 00180 Helsinki #10831964
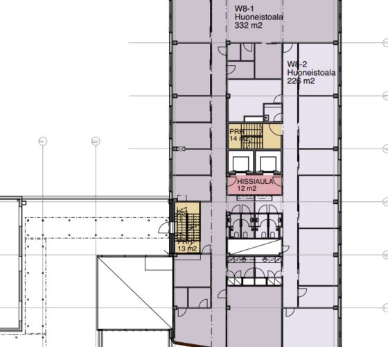
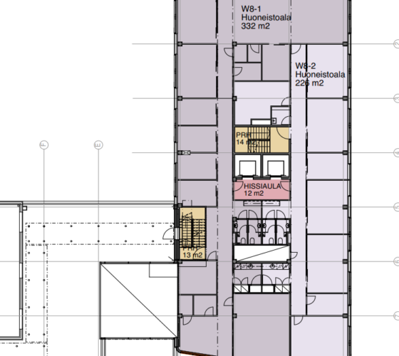
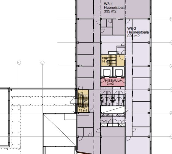
Nyt vuokrattavissa toimisto kaikella oleellisella. Tila sijaitsee kahdeksannessa kerroksessa ja koostuu niin avotilasta, kuin työ- ja neuvotteluhuoneista. Lisäksi tilasta löytyy kaksi keittiötä ja siistit wc-tilat.
Ruoholahden Westport sijaitsee erinomaisella paikalla, vilkkaan Länsisataman läheisyydessä. Tämä vuonna 1998 valmistunut moderni liikerakennus toimii Helsingin läntisenä porttina maailmalle ja tarjoaa nykyaikaiset tilat ja palvelut. Valoisat toimistotilat muuntautuvat joustavasti käyttäjän tarpeisiin, olipa kyseessä avotoimisto tai yksityisyyttä tarjoavat työhuoneet.
Westportissa toimii ravintola Gresa, josta voi napata lounaan mukaan tai tilata tarjoilut kokouksiin. Rakennuksessa on useita neuvotteluhuoneita, uusi 20 hengen studio sekä avarat kokoustilat. Lisäksi vuokralaisia palvelevat kuntosali ja viihtyisät saunatilat.
Me Croisettella autamme teitä löytämään teille parhaat tilat! Olemme puolueettomia asiantuntijoita ja tunnemme toimitilamarkkinat, talot sekä tilat vankalla kokemuksella. Meillä on välityksessä kaikki toimitilat ja tiedämme niiden alustavat vuokratasot.
Tehtävämme on tehdä toimitilahaustanne onnistunut ja helppo. Saamme palkkiomme kiinteistönomistajalta, joten sinulle palvelumme on täysin maksuton.
Croisette Real Estate Partner
Erottajankatu 5 A 6, 00130 Helsinki
Näytä puhelinnumero
+358 400 585 857
Croisette Vuokraus
Näytä puhelinnumero
+358400585857
