Vuokrataan toimistotilat - Helsinki
Lintulahdenkatu 10, Sörnäinen, 00500 Helsinki #10831951
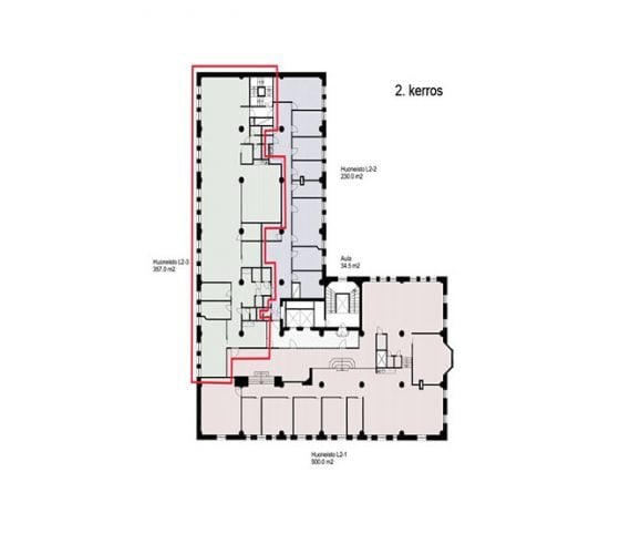
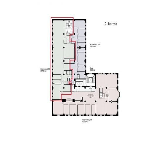
Nyt vuokrattavissa toimisto kaikella oleellisella. Tilasta löytyy monipuolisesti työ- ja neuovtteluhuoneita kuin myös suurta avotilaa. Lisäksi tilasta löytyy keittiö ja siisti wc-tila.
Lintulahdenkulma on rakennushistoriallisesti arvokas kiinteistö ja Sörnäisten maamerkki. Yli satavuotias kiinteistö on muutettu toimistoksi peruskorjauksen yhteydessä 90-luvulla ja sitä on vaalittu rakkaudella sen jälkeen. Lounasravintola tarjoaa maittavan lounaan lisäksi cateringpalvelut, ja kotiin ostettavat herkut. Kiinteistön toimistotiloja täydentävät vuokrattavat neuvotteluhuoneet sekä ylimmän kerroksen viihtyisä saunatila.
Me Croisettella autamme teitä löytämään teille parhaat tilat! Olemme puolueettomia asiantuntijoita ja tunnemme toimitilamarkkinat, talot sekä tilat vankalla kokemuksella. Meillä on välityksessä kaikki toimitilat ja tiedämme niiden alustavat vuokratasot.
Tehtävämme on tehdä toimitilahaustanne onnistunut ja helppo. Saamme palkkiomme kiinteistönomistajalta, joten sinulle palvelumme on täysin maksuton.
Croisette Real Estate Partner
Erottajankatu 5 A 6, 00130 Helsinki
Näytä puhelinnumero
+358 400 585 857
Croisette Vuokraus
Näytä puhelinnumero
+358400585857
