Uudiskohde
Vuokrataan/myydään tuotantotilat - Tuusula
Talliomax Rajalinna, Hanslankarinkuja 5, 04500 Tuusula #10831943
Kellokosken Rajalinnan alueella uudiskohde.
Osoite
Hanslankarinkuja 5, 04500 Tuusula
Tilatyyppi
Tuotantotilaa
39 - 92 m2
Tilajako
Jaettavissa
Tiloja vapaana joustavasti 39-92 m2
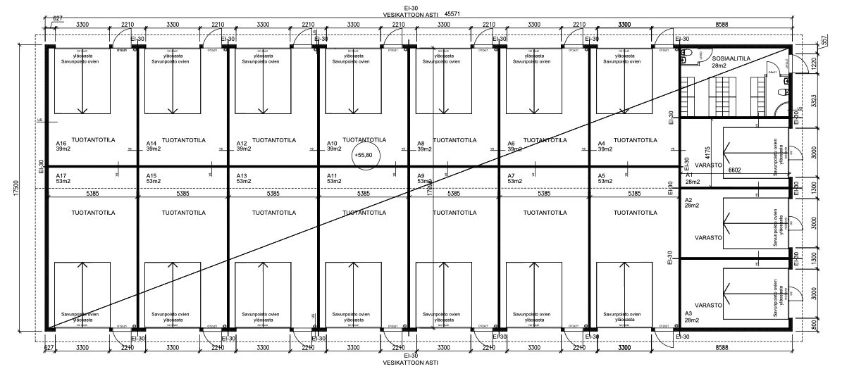
Pohjapiirros
Tila soveltuu
Studio/ateljé, autokorjaamo, popup, tulityötila, elintarviketila
Vuokra
Alkaen 10 eur/m2
Myyntihinta
23950
Kiinteistö
Tiloja joustavasti 39-92 m2. Tiloissa vakiona 5,4 m sisäkorkeus, hiekan- ja öljynerotuskaivo, vesipiste ja wc-varaus. Nosto-oven korkeus 4 m ja erillinen käyntiovi. Halliyhtiössä on yhteiskäyttöiset sosiaalitilat osakkaiden käytössä.
Kiinteistöyhtiö on omalla tontilla.
Kiinteistöyhtiö on omalla tontilla.
Muuta
Tilojen hinnat alkaen 23950 euroa (39 m2). Vuokra alkaen 10 eur/m2 + alv. Kysy myös eri rahoitusvaihtoehtoja.
Vapautuu
Heti
Rakennusvuosi
2026 (uudiskohde)
Kerros
1 / 1
Energiatehokkuusluokka
A2018
Uudiskohde
Katutasossa
Jaettavissa
Ota yhteyttä
Antila Invest Oy
Lentojätkäntie 2 A
45360 Kouvola
Näytä puhelinnumero
0400441414
Talliomax -hallien tilat ovat muunneltavissa ja yhdisteltävissä tarpeidesi mukaan. Voit helposti luoda monikäyttöisen tilan, joka muuntuu elämäntilanteesi mukana.
https://www.talliomax.fiPyydä lisätietoa
