Vuokrataan toimistotilat - Helsinki
Työpajankatu 13, Kalasatama, 0580 Helsinki #10831935
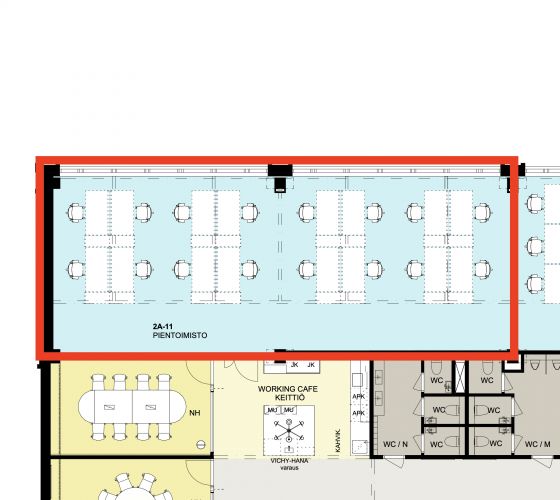
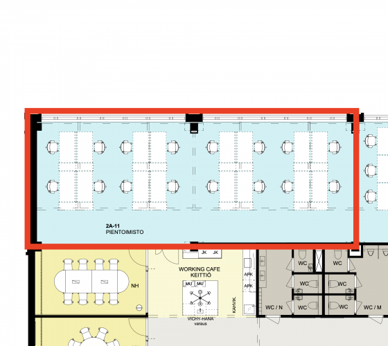
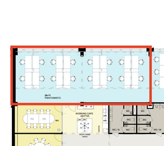
Nyt vuokrattavissa avotoimisto erinomaisella sijainnilla. Tässä modernissa työympäristössä yhdistyvät nykyaikaiset toimitilat, monipuoliset palvelut ja erinomainen sijainti. Yhteiskäyttöiset neuvottelutilat, auditorio, kuntosali, liikuntatila ja ravintola on suunniteltu työntekijöiden tarpeita ajatellen. Kiinteistön ajanmukaisuudesta kertoo vuonna 2018 myönnetty LEED Gold -vastuullisuussertifikaatti.
Työpajan ravintolapalvelut tarjoavat terveellistä ja maukasta ruokaa arkeen, juhliin ja catering-tarpeisiin. Tapahtumia voi järjestää ravintolassa, neuvottelutiloissa, kattoterassilla tai lämpiössä. Hyvinvointia tukevat palloiluhalli, kuntosali ja viihtyisät saunatilat, jotka tarjoavat paikan rentoutumiseen.
Kiinteistö sijaitsee loistavalla paikalla Kalasataman kehittyvällä alueella. Metroasemalle on vain muutama sata metriä, ja bussiyhteydet kulkevat kaikkiin suuntiin. Työpajan omien palveluiden lisäksi lähikortteleista löytyy runsaasti vaihtoehtoja. Vieressä sijaitsee Teurastamon alue, jossa on useita ravintoloita, pientuottajia ja monipuolisia tapahtumia. Lisäksi muutaman minuutin kävelymatkan päässä on kauppakeskus REDI, joka tarjoaa laajan valikoiman ravintoloita, kahviloita ja arkea helpottavia palveluita.
Me Croisettella autamme teitä löytämään teille parhaat tilat! Olemme puolueettomia asiantuntijoita ja tunnemme toimitilamarkkinat, talot sekä tilat vankalla kokemuksella. Meillä on välityksessä kaikki toimitilat ja tiedämme niiden alustavat vuokratasot.
Tehtävämme on tehdä toimitilahaustanne onnistunut ja helppo. Saamme palkkiomme kiinteistönomistajalta, joten sinulle palvelumme on täysin maksuton.
Croisette Real Estate Partner
Erottajankatu 5 A 6, 00130 Helsinki
Näytä puhelinnumero
+358 400 585 857
Croisette Vuokraus
Näytä puhelinnumero
+358400585857
