Vuokrataan toimistotilat - Helsinki
Urho Kekkosen katu 3-7, Kamppi, 00100 Helsinki #10831921
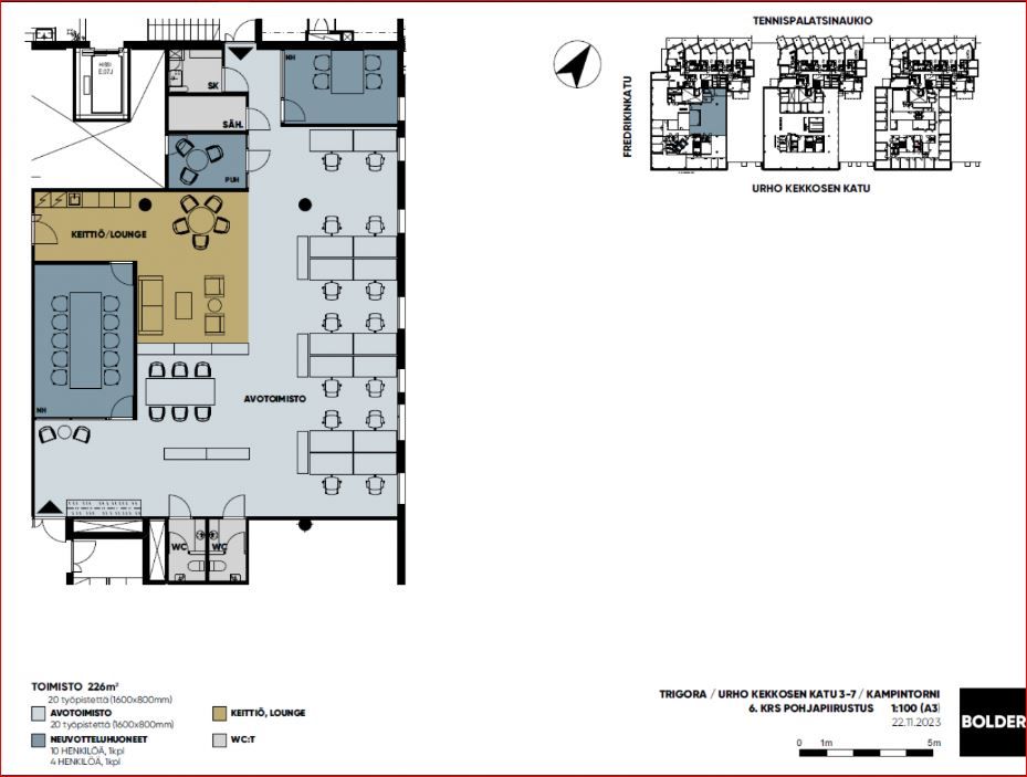
Keskustan tehokas toimisto 226 m2
Näyttävä 226 m2 toimisto paraatipaikalla aivan Kampin ytimessä. Tila sijaitsee Kampintornin 6. kerroksessa.
Kampintorni on osa Kampin kauppakeskuksen yhteydessä sijaitsevaa toimistorakennuskokonaisuutta Trigoraa. Trigora on rakennettu 2005, toimistotilaa kolmessa tornissa on yhteensä 12 000 m² ja kokonaisuuden on suunnitellut Pekka Helin. Torneista on suora yhteys kauppakeskukseen, joten kattavat palvelut, ravintolamaailma, kaupat, julkiset kulkuvälineet ja parkkihallit välittömässä läheisyydessä.
Urhontorni on osa Kampin kauppakeskuksen yhteydessä sijaitsevaa toimistorakennuskokonaisuutta Trigoraa. Trigora on rakennettu 2005, toimistotilaa kolmessa tornissa on yhteensä 12 000 m². Torneista on suora yhteys kauppakeskukseen, joten kattavat palvelut, ravintolamaailma, kaupat, julkiset kulkuvälineet ja parkkihallit välittömässä läheisyydessä.
Osoite: Urho Kekkosen katu 3-7
Kaupunginosa: Kamppi
Tilatyyppi: Toimistotila
Pinta-ala: 226m²
Kerros: 6
Vapautuminen: Vapaa
Max. henkilömäärä: 20
Ympäristösertifikaatit: BREEAM - Very Good
Rakennusvuosi: 2005
Palvelut: Tietoliikenne, Lounasravintola
Vuokrataso on kohtuullinen.
Kysy lisätietoja kohteesta:
Juselius Harry KTM, LKV, Kjs
0400 208 419
harry.juselius@toimitilapalvelu.fi
Kaartinen Pentti Ekonomi
050 337 8148
pentti.kaartinen@toimitilapalvelu.fi
Aarno Toffer Merkonomi
044 978 1393
aarno.toffer@toimitilapalvelu.fi
Hissi
Toimitilapalvelu FNTC LKV
Käenkuja 8 A 45, 00500 Helsinki
Tehokasta toimitilavälitystä pääkaupunkiseudulla hyviä ja kohtuuhintaisia toimitilavuokrakohteita.
http://www.toimitilapalvelu.fi