Vuokrataan liiketilat - Tampere
Kuokkamaantie 4 A, 33800 Tampere #10831918
Nekalan Liiketalosta vapautuu toimitilaa katutasosta, sisäänkäynti sisäpihan puolelta. Tilat soveltuvat mm. myymälä- ja toimistokäyttöön. Pysäköintimahdollisuus toimitilan edessä. Vapautuvat tilat ovat räätälöitävissä yrityksesi tarpeisiin sopiviksi.
Osoite
Kuokkamaantie 4 A, 33800 Tampere
Tilatyyppi
Liiketilaa
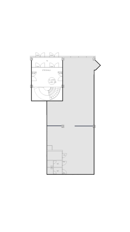
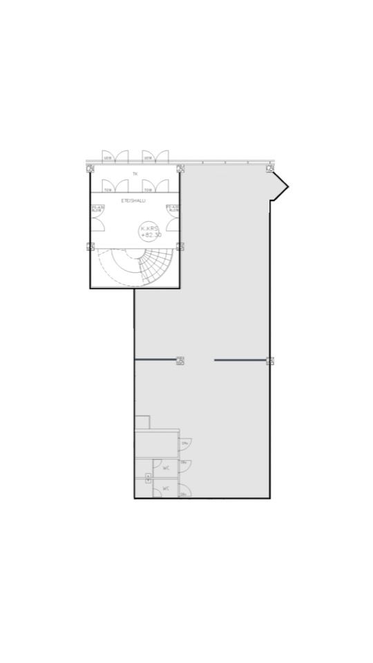
170 m2
Pohjapiirros
Kiinteistö
Nekalan Liiketalo on uudistunut liikerakennus, erinomaisten kulkuyhteyksien varrella Tampereen keskustan tuntumassa, Tampere – Helsinki moottoritien välittömässä läheisyydessä.
Kiinteistön palvelut
Asiakaspysäköinti, Edustustila, Kiinteistöpalvelut, Kokoustilat, Lastauslaituri, Oleskelutila, Piha, Pyöräparkki, Ravintola, Siivouspalvelu, Tavarahissi, Turvapalvelut
Sijainti
Kiinteistön keskeinen sijainti keskustan välittömässä läheisyydessä (5 minuutin ajomatka Tampereen keskustaan) ja valtaväylien varrella takaa hyvät yhteydet yrityksesi henkilökunnalle ja asiakkaille.
Ympäristö
Nekalan kehittyvällä alueella mm. paljon tukkuliikkeitä (kuten Stark, Ahlsell, Dahl, Onninen) sekä liikuntatoimijoita (Tampereen kiipeilykeskus, Rush Tampere, CrossFit 33100, Liikuntakeskus Polte, The Grip).
Pysäköinti
Kiinteistöllä vuokrattavissa autopaikkoja, lisäksi asiakkaille asiakaspysäköinti sekä alueella ilmainen kadunvarsipysäköinti.
Palvelut
Kiinteistössä toimii suosittu lounasravintola Nekalan Patakunkku, joka tilojen uudistumisen myötä on saanut modernit, uudet tilat avaraan ala-aulaan. Ravintolasta on mahdollista vuokrata kabinetti kokouskäyttöön. Ravintola mahdollistaa myös yrityksellesi räätälöidyt catering-palvelut ja kokoustarjoilut. Lisäksi alueella myös runsaasti muita lounasravintoloita.
Kulkuyhteydet
Bussilinjat 9 kpl, esim. bussilinja 5.
Vapautuu
Vapautuminen heti
Kerros
1 / 3
Katutasossa
Hissi
Lastauslaituri
Ota yhteyttä
Pyydä lisätietoa
