Vuokrataan toimistotilat - Helsinki
Hiilikatu 3, 00180 Helsinki #10831916
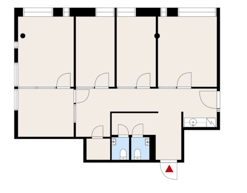
Vuokrattavana on ensimmäisessä kerroksessa sijaitseva muuttovalmis toimitila, joka tarjoaa erinomaiset puitteet yrityksen käyttöön. Tilassa on useita erillisiä huoneita sekä oma keittiö ja wc-tilat, mikä mahdollistaa joustavan ja toimivan työskentely-ympäristön.
Toimitila sijaitsee Technopolis Ruoholahdessa, vain noin 10 minuutin matkan päässä Helsingin keskustasta Länsiväylän varrella. Alue on helposti saavutettavissa niin omalla autolla kuin julkisilla kulkuvälineillä. Kiinteistön pysäköintihallista on saatavilla pysäköintipaikkoja.
Technopolis Ruoholahti tarjoaa vuokralaisille kattavat palvelut, jotka tukevat päivittäistä työskentelyä ja tekevät arjesta sujuvaa. Kiinteistössä on aulapalvelu, kahvila ja lounasravintola sekä pukeutumis- ja pesutilat. Lisäksi tarjolla on siivous-, tietoliikenne- ja toimistopalveluita sekä mahdollisuus vuokrata neuvottelutiloja tarpeen mukaan. Myös catering- ja facility management -palvelut ovat käytettävissä.
Tämä toimitila on erinomainen valinta yritykselle, joka arvostaa laadukkaita tiloja, monipuolisia palveluita ja keskeistä sijaintia.
Ota yhteyttä ja tule tutustumaan!
www.blanctoimitilat.fi
Joonas Nuutinen, toimitila-asiantuntija
+358 40 754 5408
joonas.nuutinen@blanckiinteisto.com
HUOM! Tilan hakijalle palvelumme on maksuton!
