Vuokrataan toimistotilat - Helsinki
Kasarmikatu 23, Kaartinkaupunki, 00130 Helsinki #10831903
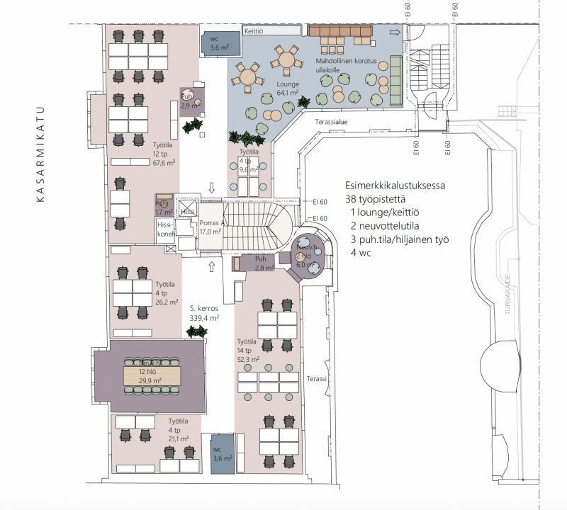
Upea ylimmän kerroksen 339 m² toimistotila terassilla ja upealla kattokorkeudella!
Osoite
Kasarmikatu 23, 00130 Helsinki
Tilatyyppi
Toimistotilaa
339,4 m2
Kiinteistö
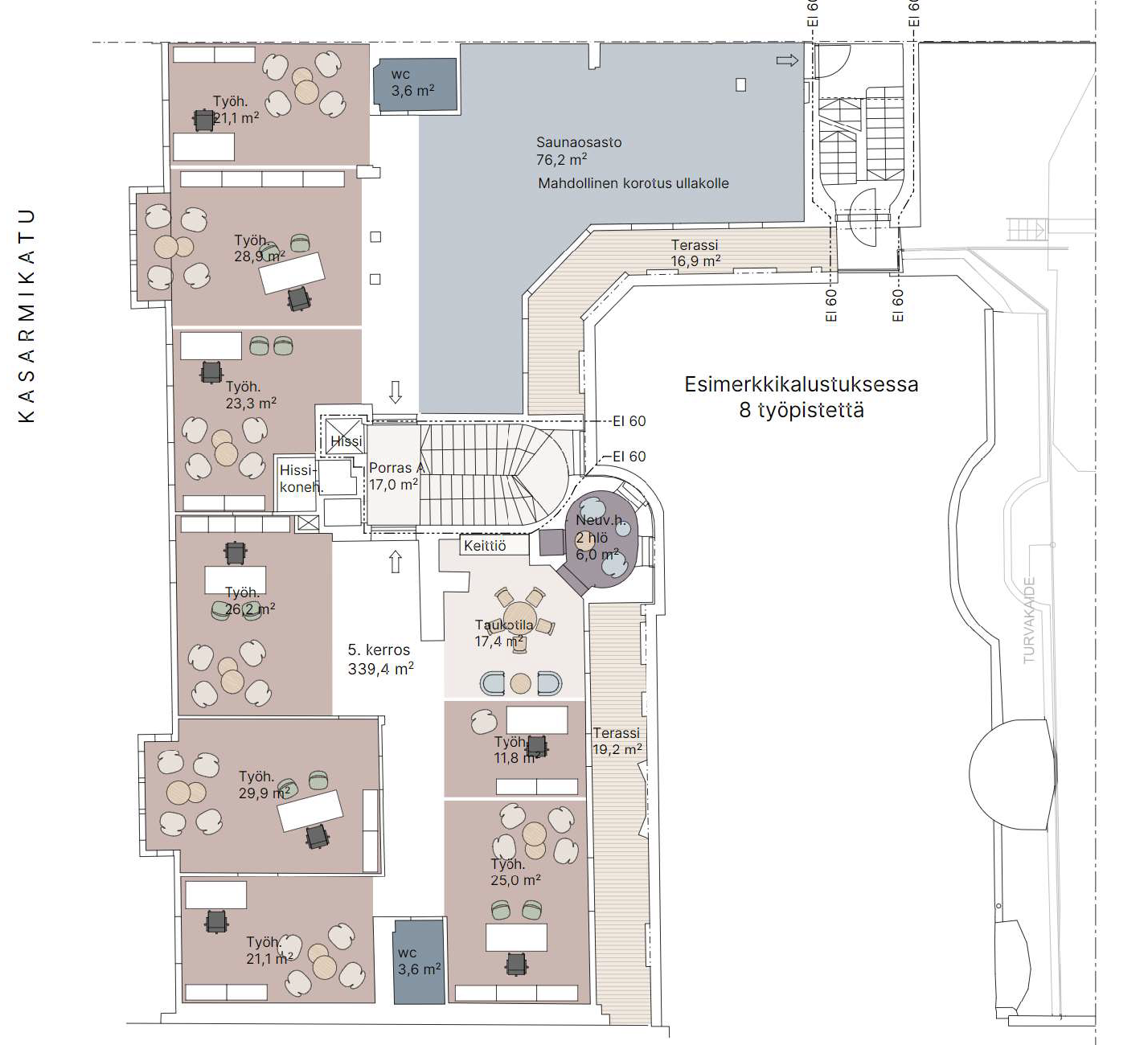
Joustava pohja mahdollistaa ratkaisuja jotka sopivat teille. Miten olisi esimerkiksi oma sauna?
Tämä toimisto on keskeisellä sijainnilla aivan Esplanadin vieressä ja muiden huippuyrityksien keskellä. Uniikki 1908 rakennettu jugend rakennus erottuu positiivisella tavalla.
Huonekorkeus 3,4 m.
Jugend-rakennus jonka on suunnitellut von Essen, Kallio & Ikäläinen rakennettiin vuonna 1908 ja sitä laajennettiin vuonna 1920.
Ainutlaatuinen julkisivu ja torni erottuvat alueella.
Viisi kerrosta tarjoaa moderneja ja edustavia, käyttötarkoitukseensa sopivia toimistotiloja.
Sisäpihan ravintola täydentää palveluita loistavalla ruolla ja vuokrattavilla kokoustiloilla
Tämä toimisto on keskeisellä sijainnilla aivan Esplanadin vieressä ja muiden huippuyrityksien keskellä. Uniikki 1908 rakennettu jugend rakennus erottuu positiivisella tavalla.
Huonekorkeus 3,4 m.
Jugend-rakennus jonka on suunnitellut von Essen, Kallio & Ikäläinen rakennettiin vuonna 1908 ja sitä laajennettiin vuonna 1920.
Ainutlaatuinen julkisivu ja torni erottuvat alueella.
Viisi kerrosta tarjoaa moderneja ja edustavia, käyttötarkoitukseensa sopivia toimistotiloja.
Sisäpihan ravintola täydentää palveluita loistavalla ruolla ja vuokrattavilla kokoustiloilla
Vapautuu
Heti
Kerros
5 / 5
Energiatehokkuusluokka
H (ei luokitusta)
Hissi
Ota yhteyttä
ScanReal Oy LKV
Opus Business Park
Hitsaajankatu 24
00810 Helsinki
info@scanreal.fi
Puh:
Näytä puhelinnumero
020 730 8830
Sopivat toimitilat yhdellä otolla!
Kartoitamme toimitilatarpeesi ja etsimme yrityksellesi parhaiten sopivat vapaat toimitilat. Koska vuokranantajat maksavat palvelumme, on tämä yrityksellesi veloituksetonta.
OTA YHTEYTTÄ - SOVI NÄYTTÖ!
Kaikki kohteemme eivät ole netissä, kerro tilatarpeesi niin kartoitamme vaihtoehdot.
Palvelumme on tilanhakijalle ilmainen
Pyydä lisätietoa
