Vuokrataan toimistotilat - Helsinki
Kasarmikatu 23, Kaartinkaupunki, 00130 Helsinki #10831902
Uniikki 160 m² toimisto hyvällä sijainnilla Esplanadin puiston kupeessa.
Osoite
Kasarmikatu 23, 00130 Helsinki
Tilatyyppi
Toimistotilaa
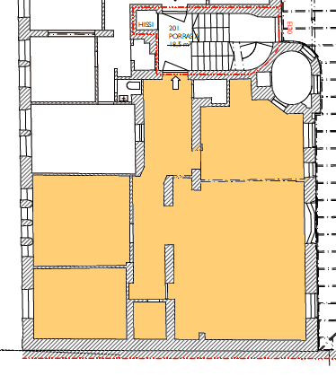
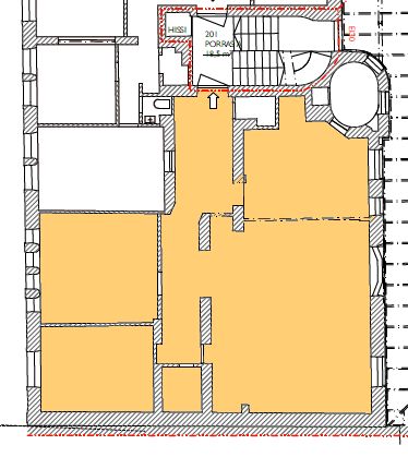
160 m2
Pohjapiirros
Kiinteistö
Uniikki valmis ja tarvittaessa kalustettu toimisto ydinkeskustassa. Tilassa on oma suihku ja sauna.
Tämä toimisto on keskeisellä sijainnilla aivan Esplanadin vieressä ja muiden huippuyrityksien keskellä. Uniikki 1908 rakennettu jugend rakennus erottuu positiivisella tavalla.
Huonekorkeus 3,4 m.
Jugend-rakennus jonka on suunnitellut von Essen, Kallio & Ikäläinen rakennettiin vuonna 1908 ja sitä laajennettiin vuonna 1920.
Ainutlaatuinen julkisivu ja torni erottuvat alueella.
Viisi kerrosta tarjoaa moderneja ja edustavia, käyttötarkoitukseensa sopivia toimistotiloja.
Sisäpihan ravintola täydentää palveluita loistavalla ruolla ja vuokrattavilla kokoustiloilla
Tämä toimisto on keskeisellä sijainnilla aivan Esplanadin vieressä ja muiden huippuyrityksien keskellä. Uniikki 1908 rakennettu jugend rakennus erottuu positiivisella tavalla.
Huonekorkeus 3,4 m.
Jugend-rakennus jonka on suunnitellut von Essen, Kallio & Ikäläinen rakennettiin vuonna 1908 ja sitä laajennettiin vuonna 1920.
Ainutlaatuinen julkisivu ja torni erottuvat alueella.
Viisi kerrosta tarjoaa moderneja ja edustavia, käyttötarkoitukseensa sopivia toimistotiloja.
Sisäpihan ravintola täydentää palveluita loistavalla ruolla ja vuokrattavilla kokoustiloilla
Vapautuu
Heti
Kerros
2 / 5
Energiatehokkuusluokka
Ei lain edellyttämää energiatodistusta
Hissi
Ota yhteyttä
ScanReal Oy LKV
Opus Business Park
Hitsaajankatu 24
00810 Helsinki
info@scanreal.fi
Puh:
Näytä puhelinnumero
020 730 8830
Sopivat toimitilat yhdellä otolla!
Kartoitamme toimitilatarpeesi ja etsimme yrityksellesi parhaiten sopivat vapaat toimitilat. Koska vuokranantajat maksavat palvelumme, on tämä yrityksellesi veloituksetonta.
OTA YHTEYTTÄ - SOVI NÄYTTÖ!
Kaikki kohteemme eivät ole netissä, kerro tilatarpeesi niin kartoitamme vaihtoehdot.
Palvelumme on tilanhakijalle ilmainen
Pyydä lisätietoa
