Myydään liiketilat - Jyväskylä
Sammonkatu 4 Lh 1, Keskusta, 40100 Jyväskylä #10831898
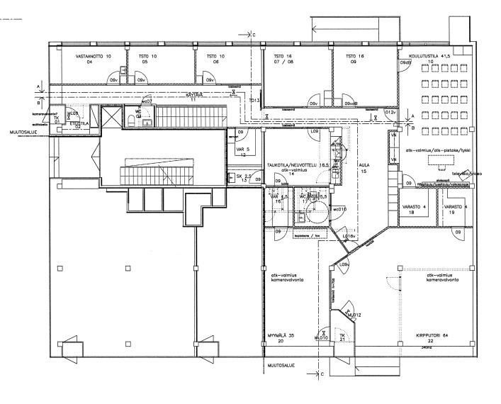
Keskustassa hyvällä paikalla katutason liiketilakokonaisuus myytävänä. Katutasossa saman osakesarjan alla, mutta erillisinä huoneistoina 50m2, 92 m2 ja 325 m2 liiketilat. Näistä suurin soveltuu erinomaisen hyvin myös koulutustilaksi. Kellarikerroksessa lisäksi omana osakkeenaan 110 m2 tila, jossa myös wc ja minik ja oma lastausovi. Sovi esittely!
Osoite
Sammonkatu 4 Lh 1, 40100 Jyväskylä
Tilatyyppi
Liiketilaa
467 m2
Myyntihinta
100000.00 , velaton myyntihinta 230000.00
Muuta
Muut tilat:
Lh1 koostuu katutason 92 m2, 50 m2 ja 325 m2 liiketiloista eli 467 m2, lisäksi K1 varasto 110 m2
Lh1 koostuu katutason 92 m2, 50 m2 ja 325 m2 liiketiloista eli 467 m2, lisäksi K1 varasto 110 m2
Lisätietoa saneerauksista
yhtiössä tehty runsaasti perusparannuksia, mm käyttövesi, ikkunat ja parvekeovet
Vapautuu
Sopimuksen mukaan
Ota yhteyttä
OP Koti Keski-Suomi Oy LKV
Kauppakatu
Kauppakatu 22
40100 JYVÄSKYLÄ
ma - pe 10.00-17.00
Janne Kotamäki
Myyntipäällikkö, LKV, YKV / Toimitilat
Näytä puhelinnumero
050 550 8945
Pyydä lisätietoa
