Vuokrataan toimistotilat - Helsinki
Huopalahdentie 24, Munkkivuori, 00350 Helsinki #10831872
Siistiä ja nykyaikaista toimistotilaa Munkkivuoren Huudista.
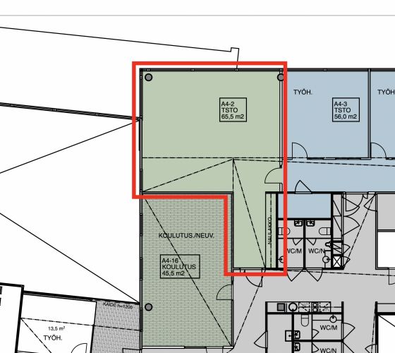
Kyseinen 192 m² toimistotila sijaitsee A-talon 4. kerroksessa. Toimistossa on huoneita ja avotilaa. Wc- ja keittiötilat ovat vuokralaisten yhteiskäytössä. Kuvat ovat yleiskuvia kiinteistön tiloista.
Huudi on kahdesta rakennuksesta koostuva yrityspuistokokonaisuus. Kiinteistö tarjoaa yrityksille viihtyisät tilat ja ajanmukaiset palvelut sekä loistavan sijainnin Munkkivuoren ostoskeskuksen läheisyydessä. Kiinteistö sijaitsee hyvien liikenneyhteyksien varrella, lähellä Vihdintietä ja Turunväylää. Viihtyisässä kiinteistössä on aulapalvelu, lounasravintola, kahvila, kuntosali sekä vuokrattavia neuvottelutiloja ja saunatilat.
Kysy lisää numerosta 044 723 4700 tai info@bref.fi. Palvelumme on tilanhakijoille ilmainen.
Hissi
Bureau Real Estate Finland Oy
Lars Sonckin kaari 16, 02600 Espoo
Näytä puhelinnumero
0447234700
Bureau Real Estate Finland Oy
https://www.bref.fi