Vuokrataan toimistotilat - Lahti
Askonkatu 9, Askonalue, 15100 Lahti #10831844
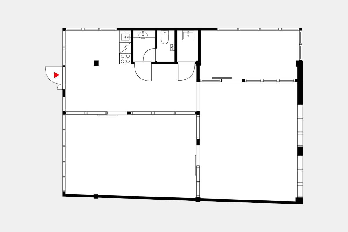
Vuokrataan neljännen kerroksen ilmastoitu ja muuttovalmis 112 m² toimistotila Lahden Askonalueelta. Tässä tilassa on pieni keittiö, toimistohuone, avotoimistotilaa sekä neuvottelutila. Tämä toimistotila sijaitsee Askotalossa, jonka alakerrassa on lounasravintola, kahvila sekä vuokrattavia kokoustiloja.
Lahden Askotalo sijaitsee kilometrin päässä rautatieasemalta ja keskustasta. Kiinteistön palvelut ovat kattavat mm. lounasravintola, kahvila, catering, pukeutumis- ja pesutilat, pyörävarasto sekä Market 24/7 -automaatti. Kiinteistöllä on hyvät pysäköintialueet sekä yhteydet saapua julkisilla, sillä Askotalo sijaitsee Lahden Matkakeskuksen vieressä. Ympäristövastuullisuus on tärkeässä asemassa tällä kiinteistöllä, Askotalolle on myönnetty BREEAM In-Use -ympäristösertifikaatti sekä rakennuksen että teknisen ylläpidon osalta.
Lahden Askonalue on vireä yrityskeskittymä, jossa toimii useita asiantuntija- ja palveluyrityksiä, logistiikka- ja varastokäyttäjiä, tuotantoyrityksiä ja lounasravintoloita. Askotalon korkeat ja valoisat entiset teollisuustilat ovat helposti muunneltavissa ja niistä saa mukavasti räätälöityä persoonallisia työympäristöjä. Kiinteistö tarjoaa myös monipuolisesti lisäpalveluita yrityksille.
Kysy lisätietoja tai sovitaan käynti kohteelle jo tänään!
Näkyvällä paikalla
Hissi
Hausala Oy
Erkkilänkatu 11, 33100 Tampere
Näytä puhelinnumero
050 472 7077
Tero Ala-Hannula
Näytä puhelinnumero
040 508 1351
Mika Savikko
Näytä puhelinnumero
050 472 7077
