Myydään tuotantotilat - Lappeenranta
Maijankatu 14, Hakali, 53300 Lappeenranta #10831821
Kiinteistö sijaitsee hyvässa paikassa, omalla tontilla. Tällä hetkellä kiinteistö on rakennusyrityksen käytössä, mutta vapautuu sopimuksen mukaan. Hintaan kuuluvat koneet ja laitteet (sovittava tarkemmin omistajan kanssa), pl. ajoneuvot.
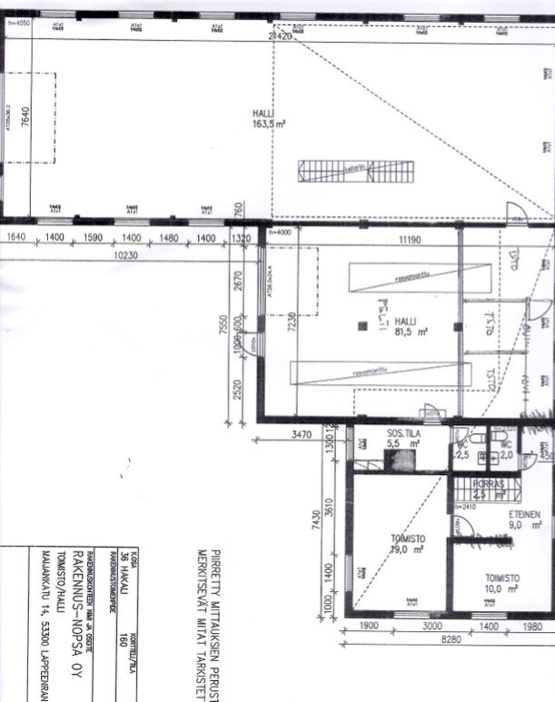
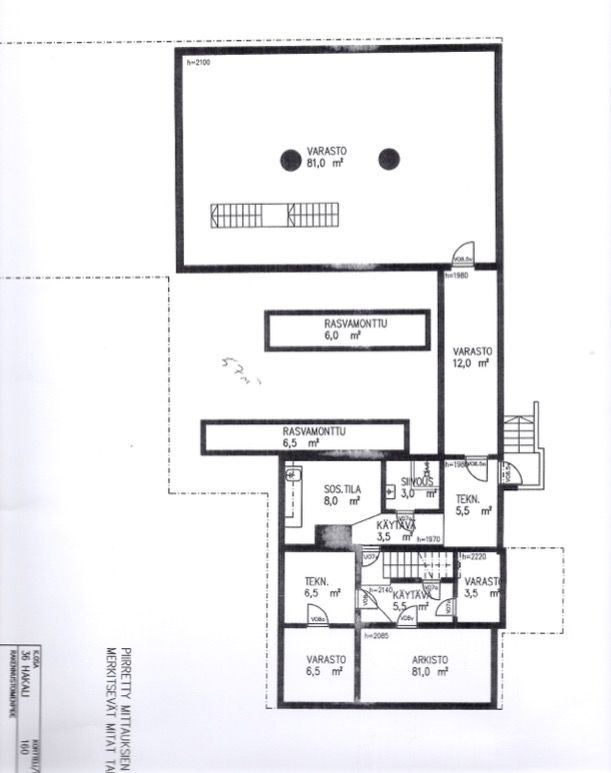
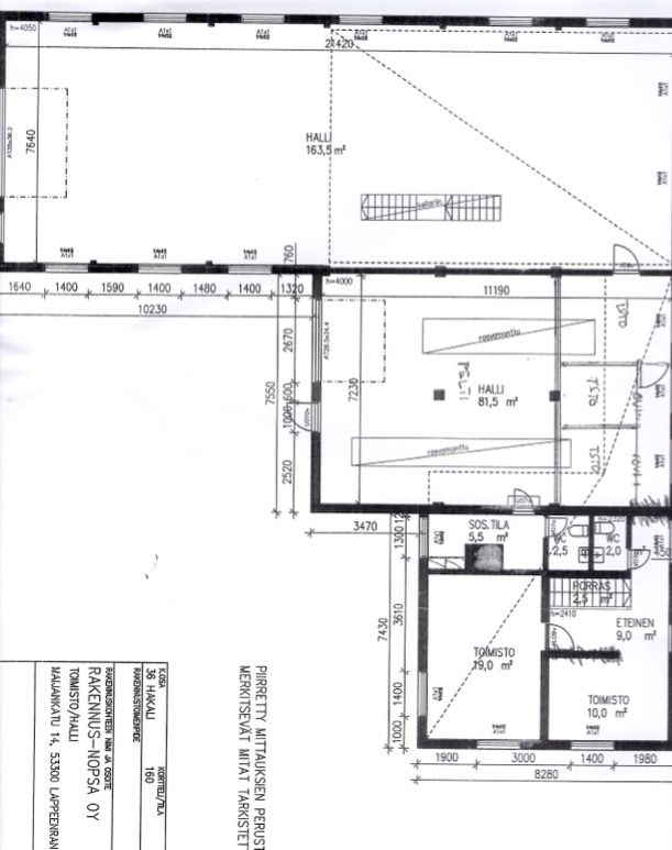
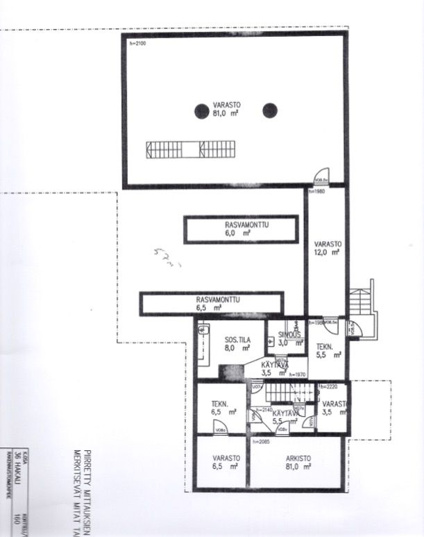
Kiinteistössä on toimistotila, varastotilaa, tuotantotilaa ja reilun kokoinen, aidattu ja asfaltoitu piha-alue. Sosiaalitilat kellarikerroksessa.
Osoite
Maijankatu 14, 53300 Lappeenranta
Tilatyyppi
Tuotantotilaa
380 m2
Vapautuu
Kysy
Rakennusvuosi
1965
Ota yhteyttä

In and Out Oy
Ensio Pulkkinen
kiinteistönvälittäjä LVV, LKV, yrittäjä
Näytä puhelinnumero
+358505051304
Pyydä lisätietoa