Vuokrataan liiketilat - Helsinki
Tyynenmerenkatu 3, Jätkäsaari, 00220 Helsinki #10831734
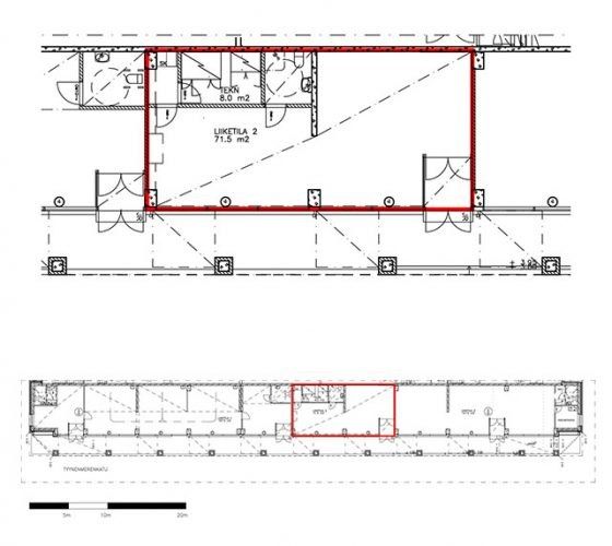
Liiketilaa Jätkäsaaresta
Osoite
Tyynenmerenkatu 3, 00220 Helsinki
Tilatyyppi
Liiketilaa
71 m2
Muuta
Vuokrattavana 71,5 m² liiketilaa Jätkäsaaressa. Tila sijaitsee katutasossa vuonna 2014 valmistuneessa nykyaikaisessa kahdeksankerroksisessa asuin- ja liikekiinteistössä. Kaikki liiketilat sijaitsevat rakennuksen ensimmäisessä kerroksessa, mikä mahdollistaa näkyvyyden ja helpon saavutettavuuden.
Jätkäsaaren alue tarjoaa hyvät edellytykset liiketoiminnalle. Palvelutarjonta on jo laaja ja kehittyy edelleen aktiivisesti. Lähistöltä löytyy ravintoloita, kahviloita sekä muita liikkeitä. Lisäksi Ruoholahden kauppakeskus, Hietalahden tori ja sen kauppahalli ovat vain lyhyen kävelymatkan päässä.
Tila on heti vapaa.
Tervetuloa tutustumaan, varaathan välittäjältä oman esittelyaikasi. Voit kysyä meiltä myös muita sopivia vaihtoehtoja, kauttamme löydät juuri Teidän tarpeisiinne sopivat tilat. Palvelumme on tilanhakijalle veloitukseton!
Jätkäsaaren alue tarjoaa hyvät edellytykset liiketoiminnalle. Palvelutarjonta on jo laaja ja kehittyy edelleen aktiivisesti. Lähistöltä löytyy ravintoloita, kahviloita sekä muita liikkeitä. Lisäksi Ruoholahden kauppakeskus, Hietalahden tori ja sen kauppahalli ovat vain lyhyen kävelymatkan päässä.
Tila on heti vapaa.
Tervetuloa tutustumaan, varaathan välittäjältä oman esittelyaikasi. Voit kysyä meiltä myös muita sopivia vaihtoehtoja, kauttamme löydät juuri Teidän tarpeisiinne sopivat tilat. Palvelumme on tilanhakijalle veloitukseton!
Vapautuu
Kysy
Kerros
katutaso
Ota yhteyttä
Tuloskiinteistöt Oy
Rikhardinkatu 2 B 5, 00130 Helsinki
Näytä puhelinnumero
(09) 6841 620
Jorma Ryynänen
Commercial Real Estate Advisor LKV, LVV
Näytä puhelinnumero
+358 40 708 4064
Nina Meyke
Commercial Real Estate Advisor
Näytä puhelinnumero
+358 50 466 1519
Pyydä lisätietoa
