Vuokrataan toimistotilat, varastotilat, muut tilat - Helsinki
Ruosilantie 14, Konala, 00390 Helsinki #10831720
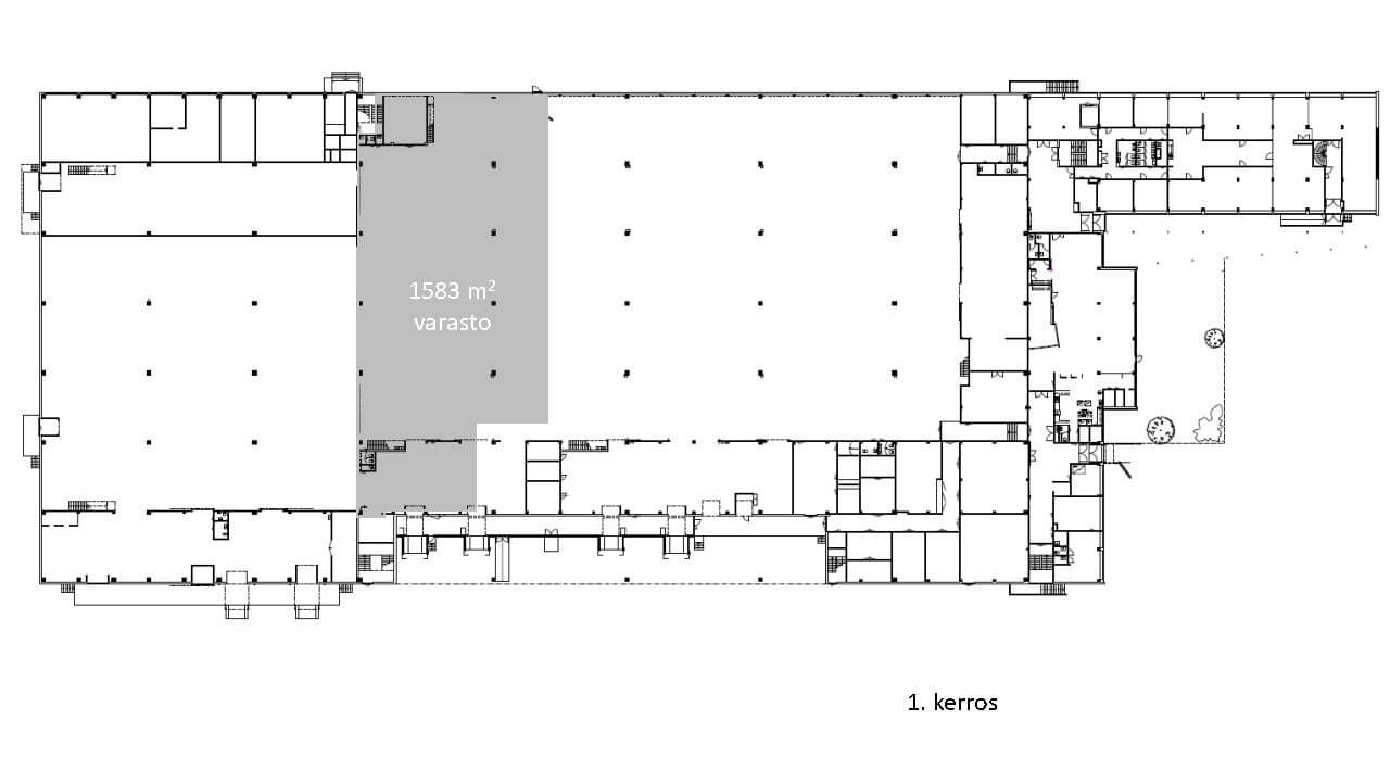
Vuokrattavana selkeä lastauslaiturillista korkeaa varastotilaa 1583 m², siistiä ja kompaktia parvivarastoa 422 m² sekä toimistoa 218 m².
- Lähijuna
- Oma auto
Katutasossa
Näkyvällä paikalla
Lastauslaituri
REALIUM OY LKV
Tammasaarenkatu 1, 00180 Helsinki
Vaihde:
Näytä puhelinnumero
010 326 346
Tuomo Mäkelä
tuomo.makela@realium.fi
p.
Näytä puhelinnumero
044 050 1158
Joel Keto
joel.keto@realium.fi
p.
Näytä puhelinnumero
045 317 0330
KAIKKI TILAVAIHTOEHDOT KERRALLA!
SOITA - MEILAA JA TILAA NÄYTTÖ!
Ilmainen palvelu tilanhakijoille.
Kartoitamme parhaat tilavaihtoehdot.
Kaikki kohteet eivät ole netissä.
