Vuokrataan/myydään toimistotilat, liiketilat, näyttelytilat, työtilat, muut tilat - Jyväskylä
Hjalmarinraitti, Kankaanaukion Kulma, 40100 Jyväskylä #10831719
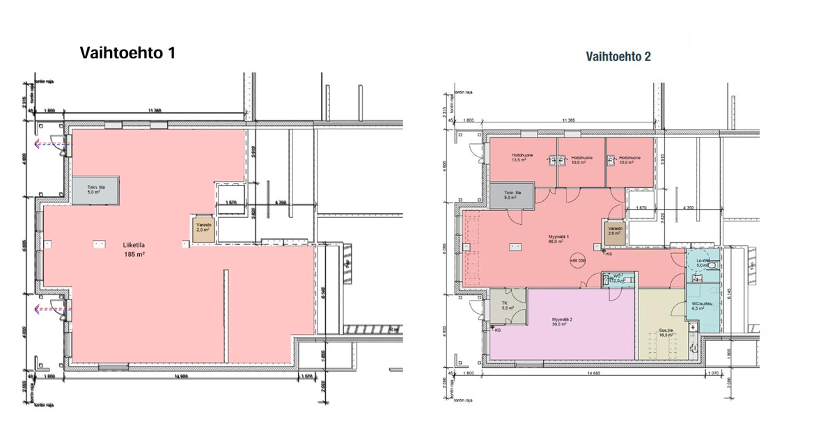
Nyt vuokrattavana ja myytävänä uusi as Oy Hjalmarinraitin kivijalassa sijaitseva monikäyttöinen, n. 185m2 liiketila.
Liiketila on sisätiloiltaan vielä rakentamatta, joten se on mahdollista toteuttaa asiakkaan toiveiden ja tarpeiden mukaan. Rakennusaika kohteen sisätilojen rakentamiselle on n. 3 kuukautta. Tila soveltuu esimerkiksi toimistoksi, kahvilaksi, myymälätilaksi tai palveluliiketoiminnan liiketilaksi. Tila sijaitsee Kankaanaukiolla, jossa mm. K-kauppa. Näkyvä ja hyvä sijainti asuin- ja toimistorakennusten keskellä.
Kysy kohteesta lisää ja löydä liiketoiminnallesi toiveidesi mukaan toteutettu liiketila näkyvältä paikalta!
Lisätiedot ja näytöt: Henri Kumpulainen, 040 864 3631, henri.kumpulainen@aveon.fi
Uudiskohde
Katutasossa
Näkyvällä paikalla
Aveon Real Estate Oy
Kauppakatu 18 C 26, 40100 Jyväskylä
Henri Kumpulainen
Puh.
Näytä puhelinnumero
040 864 3631
henri.kumpulainen@aveon.fi
Olemme kiinteistöliiketoiminnan asiantuntija, joka toimii yrittäjämäisesti neuvonantajana kiinteistökaupoissa, toimitilavälittämisessä sekä kiinteistökehityksessä.
Asiakkaitamme ovat kotimaiset ja ulkomaiset kiinteistönomistajat, -sijoittajat sekä tilojen käyttäjät kaikkialla Suomessa.
