Myydään tontti - Hailuoto
Etelähaminantie, Marjaniemi, 90480 Hailuoto #10831707
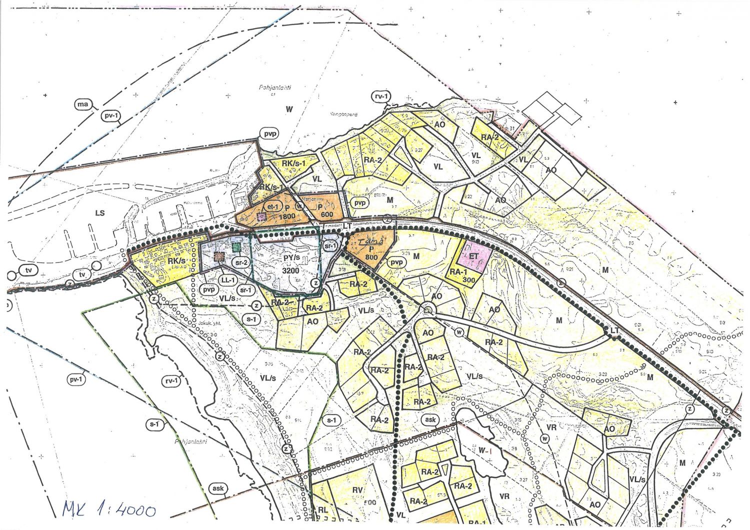
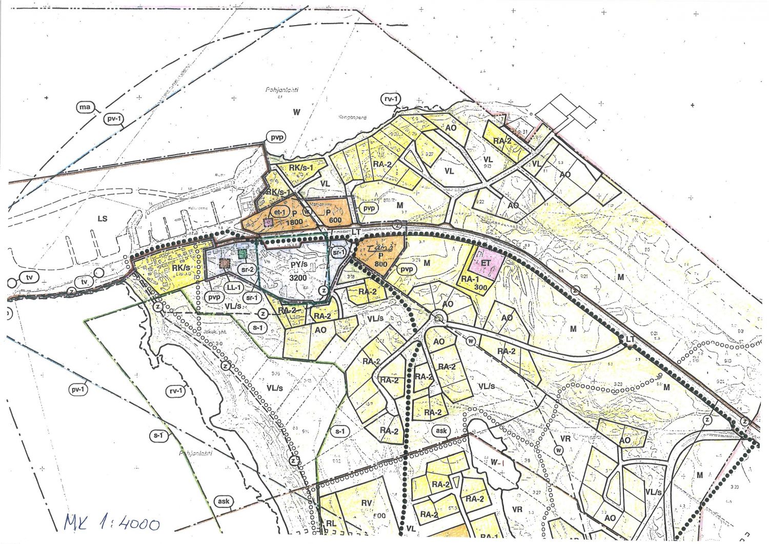
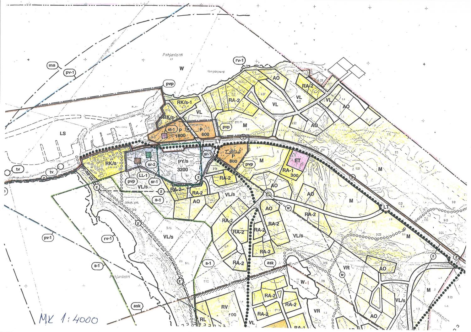
Erinomaisella paikalla Hailuodon Marjaniemessä meren tuntumassa noin 5400 m2:n määräala, joka on varustettu osayleiskaavamerkinnällä P (palvelujen ja hallinnon alue).
Kaava mahdollistaa monipuolisen rakentamisen ja rakennusoikeutta on käytettävissä 800 kem2.
Kiinteä maantieyhteys on rakenteilla Hailuotoon ja tämä kiinteä maantieyhteys parantaa Hailuodon valtakunnallista ja seudullista saavutettavuutta seka Hailuodon yleistä kiinnostavuutta kaikkinensa.
Määräalalle ei tule muita emäkiinteistön osuuksia tai oikeuksia kuin ne tieoikeudet, jotka liittyvät kaupan kohteeseen pääsemiseen.
Tilan maapohja hiekkakangasta ja puusto pääosin mäntyä.
Erinomainen sijaintin Marjaniemen alueella meren tuntumassa.
Kaava mahdollistaa monipuolisista rakentamista kaupan kohteeseen, P merkinnällä varustettu tila (palvelujen ja hallinon alue).
OP Koti Pohjoinen Oy LKV
Oulu
Lekatie 6
90140 OULU
Toimistomme on avoinna arkisin klo 10.00-16.00
Pekka Hamari
Kiinteistönvälittäjä, LKV
Näytä puhelinnumero
0400 680 445
