Vuokrataan toimistotilat - Helsinki
Osmontie 38, Käpylä, 00620 Helsinki #10831670
Modernia toimistotilaa Helsingin Käpylässä, erinomaisten kulkuyhteyksien varrella.
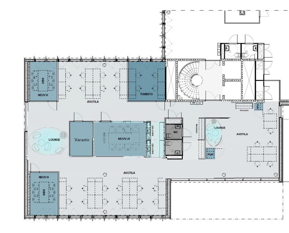
Kyseinen toimisto on kooltaan 706 m², ja se sijaitsee kiinteistön 2. kerroksessa. Tilassa on avotilaa, työ- ja neuvotteluhuoneita sekä omat wc- ja keittiötilat. Tilaan on esteetön kulku. Toimisto on mahdollista jakaa kahdelle käyttäjälle 334 m² ja 371,5 m² kokoisiin osiin.
Osmontie 38 on toimistokiinteistö Helsingin Käpylässä. Sen toimistotilat ovat avaria ja valoisia. Tiloja on mahdollista toteuttaa huoneellisena, avotilana tai niiden yhdistelminä. Suunnittelussa on otettu huomioon energiatehokkaat ratkaisut. Lisäksi läheltä löytyy hyvät peruspalvelut.
Kysy lisää numerosta 044 723 4700 tai info@bref.fi. Palvelumme on tilanhakijoille ilmainen.
Bureau Real Estate Finland Oy
Lars Sonckin kaari 16, 02600 Espoo
Näytä puhelinnumero
0447234700
Bureau Real Estate Finland Oy
https://www.bref.fi