Vuokrataan liiketilat - Salo
Bulevardi 10, Suomusjärvi, 25410 Salo #10831664
Valoisa liiketila Salon Kivihovin liikenneasemalla
Osoite
Bulevardi 10, 25410 Salo
Tilatyyppi
Liiketilaa
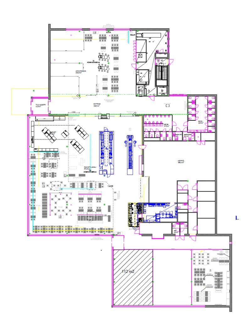
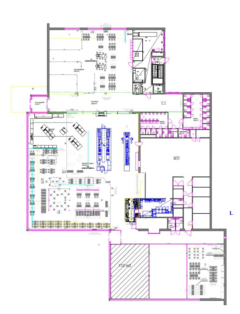
112 m2
Pysäköinti
Pihalla
Muuta
Vuokrattavana heti vapaana olevaa 112 m² liiketilaa Salo Kivihovin liikenneasemalla, näkyvällä paikalla Helsingintien varrella.
Tila sijaitsee aivan sisäänkäynnin vieressä, mikä takaa helpon saavutettavuuden ja erinomaisen näkyvyyden. Tilassa on myös hyvä näyteikkuna, josta avautuu näkymä liikenneaseman pihalle.
Kivihovin liikenneasema on monipuolinen palvelukokonaisuus, jossa toimii muun muassa Hesburger, HeseKebab & Gyros, lounaslinjasto, à la carte -ravintola, kahvio sekä kauppa.
Lisätietoja liikenneaseman palveluista löydät verkkosivuilta www.kivihovi.fi.
Tila sopii hyvin esimerkiksi myymäläksi, asiakaspalvelupisteeksi tai muuhun liiketoimintaan, jossa näkyvyys ja asiakasvirrat ovat tärkeitä. Vapautuminen heti mahdollistaa nopean käyttöönoton.
Tervetuloa tutustumaan, varaathan välittäjältä oman esittelyaikasi.
Voit kysyä meiltä myös muita sopivia vaihtoehtoja, kauttamme löydät juuri Teidän tarpeisiinne sopivat tilat.
Palvelumme on tilanhakijalle veloitukseton!
Tila sijaitsee aivan sisäänkäynnin vieressä, mikä takaa helpon saavutettavuuden ja erinomaisen näkyvyyden. Tilassa on myös hyvä näyteikkuna, josta avautuu näkymä liikenneaseman pihalle.
Kivihovin liikenneasema on monipuolinen palvelukokonaisuus, jossa toimii muun muassa Hesburger, HeseKebab & Gyros, lounaslinjasto, à la carte -ravintola, kahvio sekä kauppa.
Lisätietoja liikenneaseman palveluista löydät verkkosivuilta www.kivihovi.fi.
Tila sopii hyvin esimerkiksi myymäläksi, asiakaspalvelupisteeksi tai muuhun liiketoimintaan, jossa näkyvyys ja asiakasvirrat ovat tärkeitä. Vapautuminen heti mahdollistaa nopean käyttöönoton.
Tervetuloa tutustumaan, varaathan välittäjältä oman esittelyaikasi.
Voit kysyä meiltä myös muita sopivia vaihtoehtoja, kauttamme löydät juuri Teidän tarpeisiinne sopivat tilat.
Palvelumme on tilanhakijalle veloitukseton!
Vapautuu
Kysy
Kerros
1.
Ota yhteyttä
Tuloskiinteistöt Oy
Kauppiaskatu 11 C 23, 20100 Turku
Näytä puhelinnumero
(02) 274 3500
Ritva Nuotio
Commercial Real Estate Advisor LKV, KED
Näytä puhelinnumero
+358 50 5261 744
Karoliina Eklund
Leasing Support Specialist
Näytä puhelinnumero
+358 40 017 8999
Pyydä lisätietoa
