Vuokrataan toimistotilat - Jyväskylä
Lutakonaukio 7, Lutakko, 40100 Jyväskylä #10831649
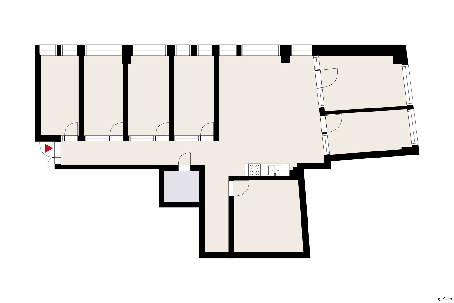
Vapautumassa kompakti ja tyylikäs toimistotila Jyväskylän Lutakossa, aivan tapahtumien ytimessä. Tämä neljännen kerroksen tila tarjoaa sopivassa suhteessa avotilaa ja erillisiä työhuoneita, isot ikkunat tuovat valoa ja näkymät avautuvat kaupungin suuntaan. Tila on käyttövalmis sellaisenaan tai muokattavissa tarvittaessa täysin asiakkaiden toiveiden ja brändin mukaiseksi.
Kiinteistön aulapalvelu toimii talon sydämenä ja tukee kaikissa arjen tarpeissa. Alakerrassa on käytettävissä myös modernit neuvottelutilat eri tarpeisiin. Lähistöllä on ravintoloita, hotelli, päivittäistavarakauppa sekä Jyväskylän matkakeskus. Keskustan palvelut ovat vain lyhyen kävelymatkan päässä.
Kielo
Minna Hämäläinen
Näytä puhelinnumero
040 564 8042
Katja Kröger
Näytä puhelinnumero
050 512 7707
Tarjoamme toimi-, kokous- ja saunatiloja niin isoille kuin pienillekin yrityksille!
https://kielotoimitilat.fi/